Выберите валюту для сайта:
BYN
Подать БЕСПЛАТНО

Купить офис в Бресте, 89000USD, код 8085

111.9 м2 Ленинский район / Центр
264 909 р.
Офис
Город Брест
Район Ленинский район
Микрорайон Центр
Адрес Брест
Площадь 111.9 м2

Описание

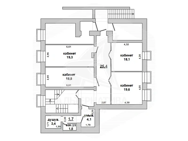
Административное помещение в собственность в центральной части города Бреста общей площадью 111,9 кв.м. Изолированное помещение с отдельным входом расположено в цокольном этаже жилого дома. Требуется ремонт помещения. Состоит из 4 (четырех) кабинетов разной площади (18,8 + 19,3 + 18,1 + 19,6 кв.м) и коридора (25,4 кв.м). Отдельный санузел (1,5 кв.м), подсобное помещение, душевая. Высота потолков - 2,45 м. Технические характеристики помещения: полы - плитка, стены оштукатурены, окрашены, потолок - армстронг, окна, двери - ПВХ. Оборудована пожарная сигнализация, установлены индивидуальные приборы учета элетроэнергии и водоснабжения. Рассматриваются все варианты. Лот - 242010. Смотреть подробнее.

Здесь можно подписаться на рассылку новых предложений и снижения цен по КОММЕРЧЕСКОЙ НЕДВИЖИМОСТИ в Брестском регионе прямо Вам в Viber или Telegram ЗАО «АЛЬТЕРНАТИВА Брест». УНП 291427570 Лицензия № 02240/303 от 02.02.2016г. Договор номер 2010/1 от 24.09.2024
Код объекта: 8085 Договор с собственником: 24.09.2024 №2010/1 Опубликовано: 10.01.2025 Обновлено: 28.02.2026
Динамика цен за кв. метрДинамика цен
Похожие объекты
Адрес
Комнат
Площадь
Этаж
Цена за м2
Цена
Офис в Бресте
2005.3 м2
2 664 р. за м2
Офис в Бресте
162.2 м2
4 из
3 422 р. за м2
Офис в Бресте
230.3 м2
2 973 р. за м2
Офис в Бресте
153 м2
1 из
3 502 р. за м2
Офис в Бресте
172.6 м2
1 из 1
7 760 р. за м2

Вы просматривали

264 909 р. 2 367 р. за м2
Ленинский р-н
1 488 250 р. 3 865 р. за м2
Московский р-н
Офис, 111.9 м2
Брест
264 909 р.
2 367 р. за м2
Ярмоцик Андрей Петрович
Пожалуйста, скажите, что нашли этот объект на Domovita.by
+
Фильтр сохранен