Выберите валюту для сайта:
BYN
Подать БЕСПЛАТНО

Купить торговое помещение в Бресте, 89000USD, код 998455

44.1 м2 1 этаж из 6 Московский район / Ковалево
259 782 р.
Торговый объект
Город Брест
Район Московский район
Микрорайон Ковалево
Адрес Брест
Год постройки 2025 г.
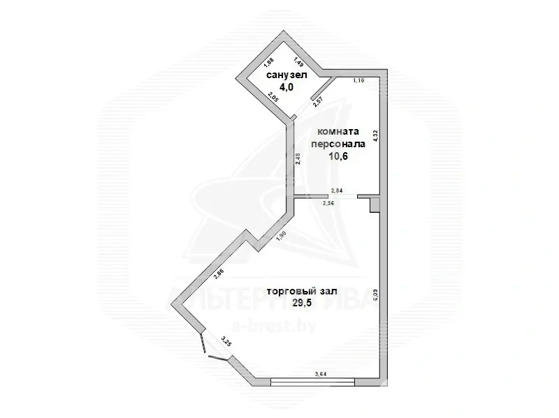
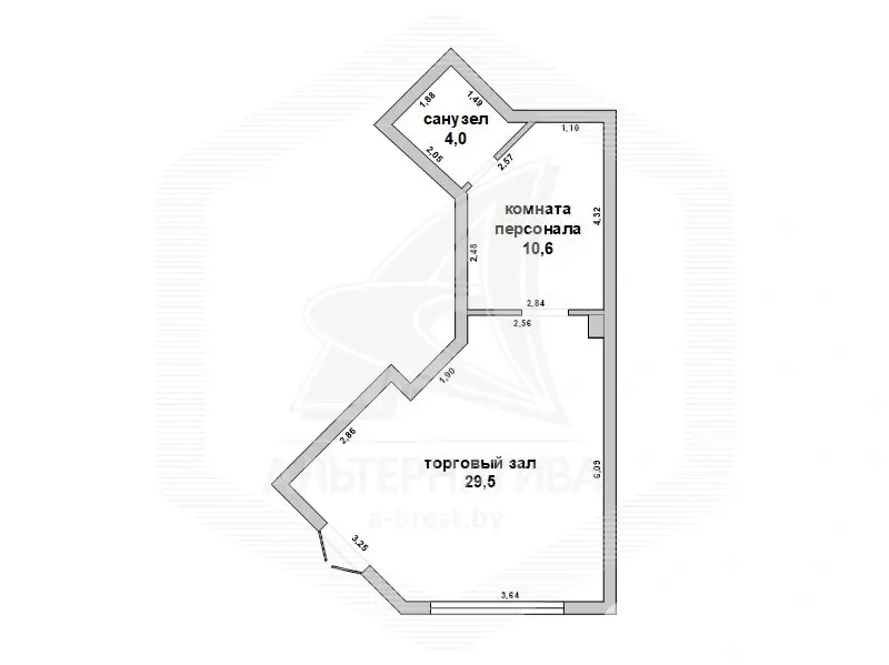
Площадь 44.1 м2
Этаж 1

Описание

Торговое помещение в собственность в жилом комплексе "Малиновка" в микрорайоне Красный Двор города Бреста общей площадью 44,1 кв.м. Изолированное помещение с отдельным входом расположено на 1 (первом) этаже жилого дома 2025 года постройки. Без внутренней отделки. Состоит из торгового зала площадью 29,5 кв.м, комнаты персонала (10,6 кв.м), отдельного санузла (4 кв.м). Установлена пожарная сигнализация, индивидуальные приборы учета электричества, водоснабжения и тепла. Парковка перед помещением. Рассматриваются все варианты. Лот - 252239. Смотреть подробнее.

Здесь можно подписаться на рассылку новых предложений и снижения цен по КОММЕРЧЕСКОЙ НЕДВИЖИМОСТИ в Брестском регионе прямо Вам в Viber или Telegram ЗАО «АЛЬТЕРНАТИВА Брест». УНП 291427570 Лицензия № 02240/303 от 02.02.2016г. Договор номер 2239/1 от 19.12.2025
Код объекта: 998455 Договор с собственником: 19.12.2025 №2239/1 Опубликовано: 23.12.2025 Обновлено: 24.02.2026
0 / 0 / 0
Динамика цен за кв. метрДинамика цен
Похожие объекты
Адрес
Комнат
Площадь
Этаж
Цена за м2
Цена
Торговое помещение в Бресте
69.4 м2
1 из 3
5 888 р. за м2
Торговое помещение в Бресте
25.9 м2
2 из
1 803 р. за м2
Торговое помещение в Бресте
8 м2
1 из 1
2 919 р. за м2
1364.2 м2
1 из 1
3 935 р. за м2
Торговое помещение в Бресте
50 м2
1 из 1
2 277 р. за м2

Вы просматривали

259 782 р. 5 891 р. за м2
Московский р-н
Торговый объект, 44.1 м2
Брест
259 782 р.
5 891 р. за м2
Ярмоцик Андрей Петрович
Пожалуйста, скажите, что нашли этот объект на Domovita.by
+
Фильтр сохранен