Аренда офисов в Минском районе

5 622 р./мес.
≈ 2 058 $/мес.
9 $/м2
220.8м23 этаж из 32013г.

Помещение общей площадью 220,8 кв.м. расположено на 3-м этаже в оживленном многофункциональном комплексе и подойдет как для размещения офиса, так и для организации пункта торговли.   На объекте проведены коммуникации: - электроснабжение - отопление...

18.05.2026
4 224 р./мес.
≈ 1 546 $/мес.
11 $/м2
156.3м214 этаж из 152014г.

Комфортный светлый офис кабинетного формата с отличным ремонтом.   - 14 Этаж – общая площадь 156,3 м2 включает 7 кабинетов, подсобное помещение и собственный с/у. Из офиса открывается панорамный вид на город.   В помещении проведены коммуникации: - пожарная...

18.05.2026
6 168 р./мес.
≈ 2 258 $/мес.
6 $/м2
376.4м22 этаж из 22013г.

Аренда склада с офисом в Боровлянах ул.Первомайская 25Б Двухэтажное капитальное строение с офисами на втором этаже и складами на первом. Офис кабинетного типа 184м2 8 кабинетов, санузел Склады тёплые 2 по 95м2 высота потолков 3м подъёмные ворота площадь...

18.05.2026
22 232 р./мес.
≈ 8 139 $/мес.
12 $/м2
700м2

Сдается в аренду помещение площадью 30-700 м2, 3 этажа+ подвал, с хорошим ремонтом и мебелью. Расположено сразу за МКАД. Въезд оборудован автоматическими воротами. Имеется большая территория для парковки. На территории есть шикарная зона отдыха с прудом...

18.05.2026
5 717 р./мес.
≈ 2 093 $/мес.
11 $/м2
200м21 этаж из 3

Офисы на 3 этаже премиум класса вход с центрального входа в отличном состоянии приёмная, кабинет руководителя, переговорная, просторные кабинеты для сотрудников, зона для картотеки, кухня санузлы…  Расположение 1 км. от МКАД Рядом – республиканская...

18.05.2026
6 600 р./мес.
≈ 2 416 $/мес.
7 $/м2
659.4м210 этаж из 11

Офис в новом Бизнес-центре «Team Building»!   Офис «Open Space» формата, общей площадью - 659,4 м2.Офис может быть разделен на кабинеты меньшей площади.  Располагается на 10-м этаже в новом Бизнес-центре «Team Building», по адресу Минская обл., Минский р-н, Новодворский...

18.05.2026
314 р./мес.
≈ 115 $/мес.
7 $/м2
191.3м22 этаж из 2

Сдаются в аренду офисы площадью от 16м2 до 22м2, на втором этаже отдельно стоящего здания в аг. Оцерцо.При необходимости офисы можно объединить между собой.Здание находится в 2х км от МКАД и также имеет хорошие подъездные пути Рядом расположена парковка...

18.05.2026
Офис, Колодищи, д. 179
Колодищи (4 км от Королев Стана)
34 682 р./мес.
≈ 12 697 $/мес.
9 $/м2
1365м21 этаж из 3

Сдается в аренду  помещение площадью 30-1365 м2, 3 этажа .  Имеется большая территория для парковки.   Кабинетный формат; • Естественное освещение; • Система вентиляции; •  Подъездные пути; • Парковка возле здания. Арендатор не оплачивает услуги агентства!...

18.05.2026
Офис в Большом Тростенце, ул. Луговая
Большой Тростенец (2 км от Большого Стиклево)
18 055 р./мес.
≈ 6 564 $/мес.
10 $/м2
656.4м2Помещений: 61 этаж из 2

Готовый объект для бизнеса – всё продумано до мелочей!❤️ Аренда торгово-складского здания с офисными помещениями в деревне Большой Тростенец.Адрес: д. Большой Тростенец, ул. Луговая, д. 14В.- Предлагается в аренду современное двухэтажное здание,...

15.05.2026
550 р./мес.
≈ 200 $/мес.
7 $/м2
30м2Помещений: 14 этаж из 4

15.05.2026
250 р./мес.
≈ 92 $/мес.
4 $/м2
20.9м21 этаж из 1

Аренда офисного помещенияСтатус объекта - офисАдрес: а. г. МихановичиПлощадь: 20,9 м2Сдается в аренду офисное помещение в а.г. Михановичи.Преимущества:· хорошие подъездные пути· все условия для работы· огороженная территория· подробная информация...

15.05.2026
310 р./мес.
≈ 113 $/мес.
5 $/м2
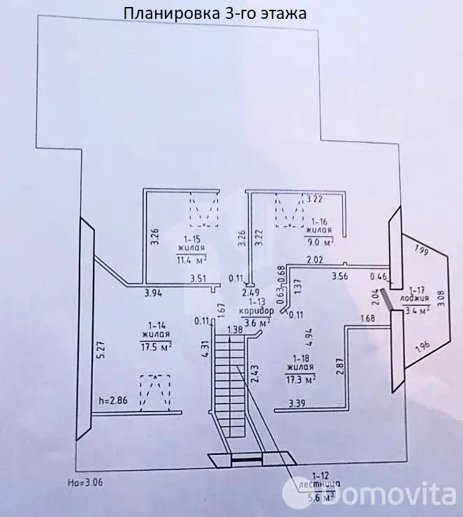
181.3м21 этаж из 32006г.

Офисные + складские (производственные) помещения с лоджией, находящиеся в отдельном здании с собственной территорией. Полностью готовы к эксплуатации— хороший ремонт, мебель предоставляется.    Офис: 1-й этаж: 46,1 м2 + 13,8 м2 3-й этаж: 17,3 м2 + лоджия 3,4...

05.05.2026
310 р./мес.
≈ 113 $/мес.
5 $/м2
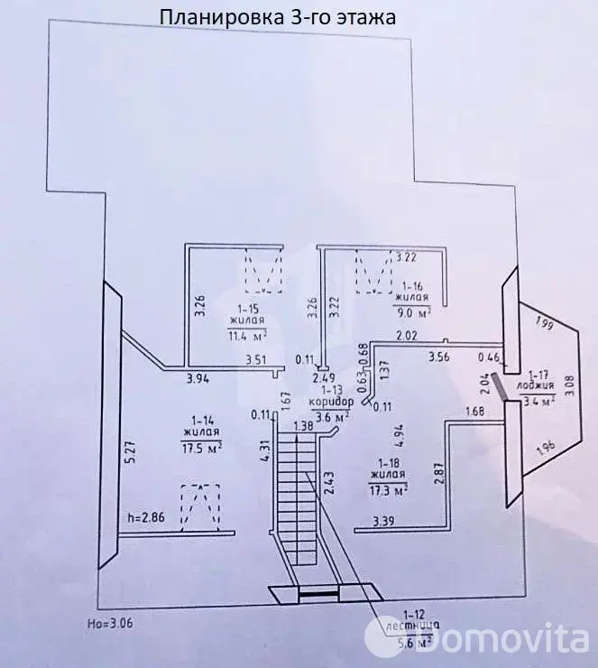
181.3м21 этаж из 32006г.

  Офисные + складские (производственные) помещения с лоджией, находящиеся в отдельном здании с собственной территорией. Полностью готовы к эксплуатации— хороший ремонт, мебель предоставляется.    Офис: 1-й этаж: 46,1 м2 + 13,8 м2 3-й этаж: 17,3 м2 + лоджия...

05.05.2026
60 940 р./мес.
≈ 22 310 $/мес.
9 $/м2
2437.6м21 этаж из 1

Аренда отапливаемого склада рядом с МКАД (2км), в деревне Большое Стиклево 30/2Предлагается в аренду склад общей площадью - 2440м2.ТЦ "Яркий" в 2 минутах пешей ходьбыИнформация по объекту:- Рампа для фур и погрузочно-разгрузочный пандус.- Общая прилегающая...

02.05.2026
53 180 р./мес.
≈ 19 469 $/мес.
12 $/м2
1611.5м21 этаж из 22014г.

Предлагаем в аренду современный действующий склад в том числе под фармацевтику. Потолки 9 м. Офисные помещения. Трое ворот с рампой. 1200м2 склад. 400 м2 офис. Адрес: Папернянский с/с,50/1. 3 км от кольцевой. Остановка общественного транспорта. Выезды на...

30.04.2026
2 655 р./мес.
≈ 972 $/мес.
8 $/м2
121.5м23 этаж из 32018г.

Офис 121,5м2, по адресу аг. Ждановичи, ул. Заречная 6А (Есть возможность аренды со складом 368,7м2) Преимущества:-Нейтральный хороший ремонт;-Много естественного света;-Удобная большая парковка;-Доступ 24\7;-Отличная транспортная доступность: всего 2 мин....

29.04.2026
377 р./мес.
≈ 137 $/мес.
6 $/м2
22.2м2Помещений: 19 этаж из 11

Офис от собственника в Боровлянах. Площадь 22,2 м2, 9 этаж. Помещение подойдёт для услуг в сфере красоты, массажного кабинета, помещения для творчества, детской комнаты, а также для обычного офиса и т.д. В офисе есть кондиционер. Спокойное, тихое место,...

23.04.2026
6 352 р./мес.
≈ 2 325 $/мес.
5 $/м2
417.8м22012г.

Аренда административных помещений в отдельном зданииАдрес: Минская обл., Минский р-н, Сеницкий с/с, аг. Сеница, ул. Цветочная, 11Площадь общая: 417,8 м2Помещения расположены в отдельном трехэтажном кирпичном здании 1995 года постройки, с пристройками,...

18.05.2026
4 828 р./мес.
≈ 1 768 $/мес.
9 $/м2
190м29 этаж из 142014г.

В БЦ «S-Union», который располагается непосредственно за МКАД по Партизанскому проспекту (Большое Стиклево), сдаются в аренду административные помещения от 75 до 115 м.кв. Расстояние от ст.м. «Могилевская» 300 м. Есть в наличии:   75 м.кв. офисный блок 9 этаж;...

12.05.2026
1 909 р./мес.
≈ 694 $/мес.
8 $/м2
85.4м210 этаж из 11

Предлагаем вашему вниманию помещение 85 м2, расположенное по адресу д. Боровляны, ул. 40 лет Победы 23А. - Удобный подъезд - Большая парковка - Два современных лифта - Пункт охраны, видеонаблюдение - Магазины рядом и в здании есть кафе с обеденным меню...

26.04.2026
icon
Рассылка новых объявлений
Получайте уведомления о новых объектах по вашему фильтру: Аренда офисов в Минском районе
icon
Подбор недвижимости в долгосрочную аренду
Сдать/снять квартиру по факту

Подпишитесь на новые объявления с выбранными параметрами

Ваш email:
+
Фильтр сохранен