О квартире
О доме
Описание
Предлагаем к продаже 2х комнатную квартиру в тихом центре города.
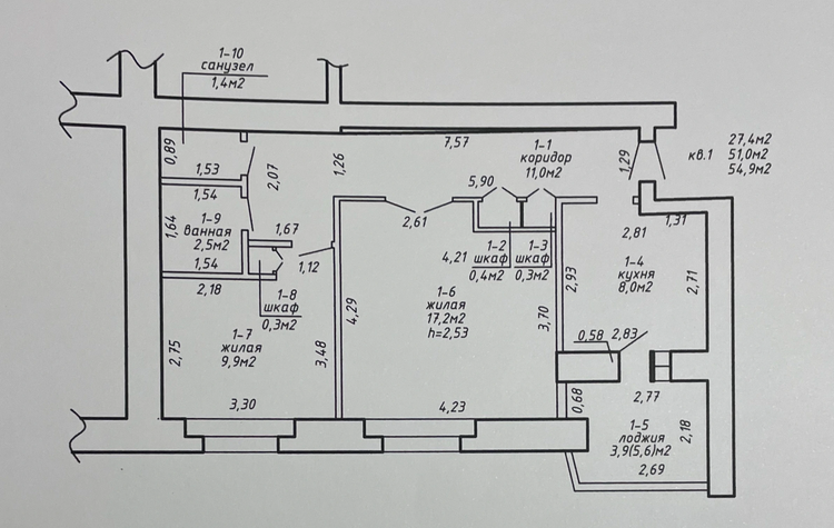
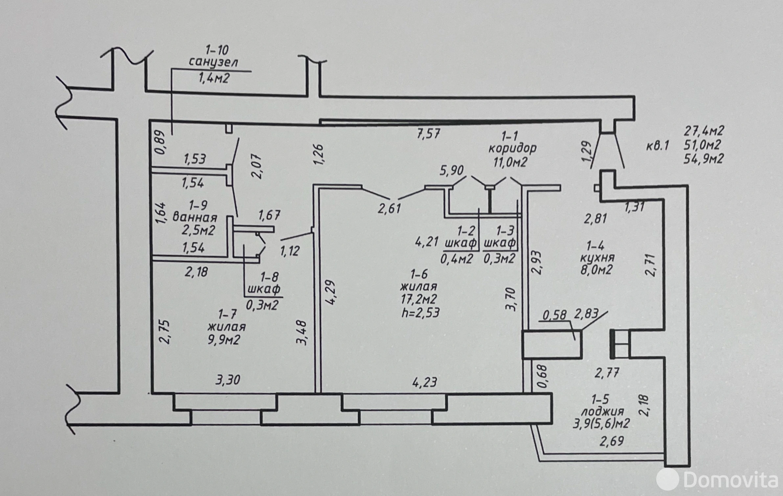
Технические параметры: одна из лучших планировок двухкомнатных квартир, две изолированные жилые комнаты 17.2 и 10 кв.м, кухня 8 кв м, огромная прихожая 11 м.кв., позволяющая обустроить многочисленные места хранения вне жилых комнат. Раздельный санузел также решает определенные житейские проблемы, большая застекленная лоджия размером 5.6 м.кв. после утепления может использоваться будущими хозяевами как комната любого назначения. Входная дверь двойная, металлическая. Квартира теплая, светлая, без посторонних запахов. Вся имеющаяся мебель входит в стоимость квартиры. В подъезде всегда чисто и светло, жильцы спокойные и доброжелательные. Расположение квартиры на лестничной площадке позволяет обустроить обособленный достаточно большой тамбур (см. последнее фото). И в целом технические характеристики квартиры позволяют произвести современную перепланировку, воплотив самые смелые решения.
Дом удачно расположен вне шумных магистральных улиц. В самой близкой доступности школа, детские сады, медучреждения, популярные сетевые обьекты торговли « Соседи» «2 Гуся», «Дионис», рынок «Привокзальный» универмаг «Гомель», да и все объекты торговли, общественного питания и услуг по ул. Победы. Удачная транспортная развязка городского транспорта, ж.д и автовокзал в 5 -ти минутах ходьбы. Придомовая территория с двух сторон жилого дома позволяет без особых проблем парковать личный транспорт. Возможен вывод квартиры из жилого фонда.
В квартире никто не проживает и не прописан, одна семья является собственником с момента заселения дома. Быстрый выход на сделку. Прямая продажа собственником. Обсуждение цены квартиры только после просмотра.
Звоните по указанному телефону, либо пишите или звоните в Вайбер по этому же телефону. Риэлторов прошу не беспокоить.





































