Выберите валюту для сайта:
BYN
Подать БЕСПЛАТНО

Купить офис на ул. Советская, д. 66/А в Гомеле, 3000000USD, код 10070

1233.5 м2 Центральный район / Набережный
9 026 400 р.
Офис
Город Гомель
Район Центральный район
Микрорайон Набережный
Адрес ул. Советская, д. 66/А
Год постройки 2005 г.
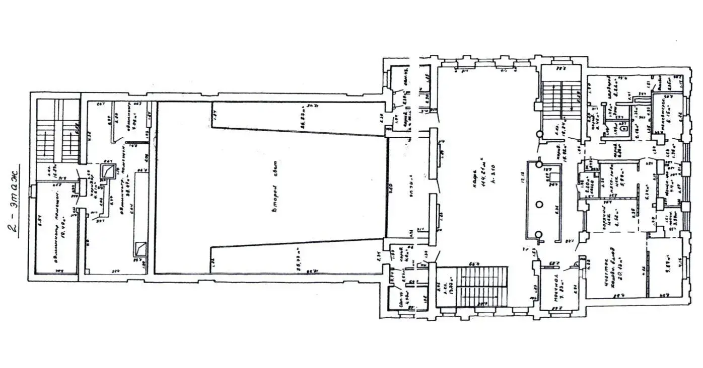
Площадь 1233.5 м2

Описание

Помещения под офисы, сферу услуг, магазин

г. Гомель, ул.Советская, 66А

Площади: 1 233.5 м2

Покупатель не оплачивает услуги риэлтерской организации!

Здание расположено в центре города на одной из главных транспортных артерий города.

Преимущественное местоположение с активным пешеходным трафиком и развитой инфраструктурой способствует эффективному управлению своим временем: рядом находятся отделения банков, ЦУМ, McDonald's, социально значимые объекты. Расположение рядом с перекрестком обеспечивает удобные подъезды. 

Здание располагает своей парковкой.

Ваш агент - Андрей Смолка

Подробнее см. на САЙТЕ  www.silvan7800.by

Договор №6/3 от 12.02.2026 по 11.02.2028

Код объекта: 10070 Договор с собственником: 6/3 от 2026-02-12 Опубликовано: 18.02.2026 Обновлено: 20.03.2026
Динамика цен за кв. метрДинамика цен
Похожие объекты
Адрес
Комнат
Площадь
Этаж
Цена за м2
Цена
836.6 м2
1 511 р. за м2

Вы просматривали

9 026 400 р. 7 318 р. за м2
Центральный р-н
887 596 р. 2 392 р. за м2
Ленинский р-н
Офис, 1233.5 м2
Гомель, ул. Советская, д. 66/А
9 026 400 р.
7 318 р. за м2
Андрей Смолка
Пожалуйста, скажите, что нашли этот объект на Domovita.by
+
Фильтр сохранен