Подать БЕСПЛАТНО

ОБЪЕКТ В АРХИВЕ

Продажа 3-комнатной квартиры в Колодищах, ул. Серебряный Лес, д. 7

Минская область, аг. Колодищи, ул. Серебряный Лес, 7
Показать на карте
382 145 р.
Цена за м2: 5 286 р.
Код объекта: 1194068
3 комнаты
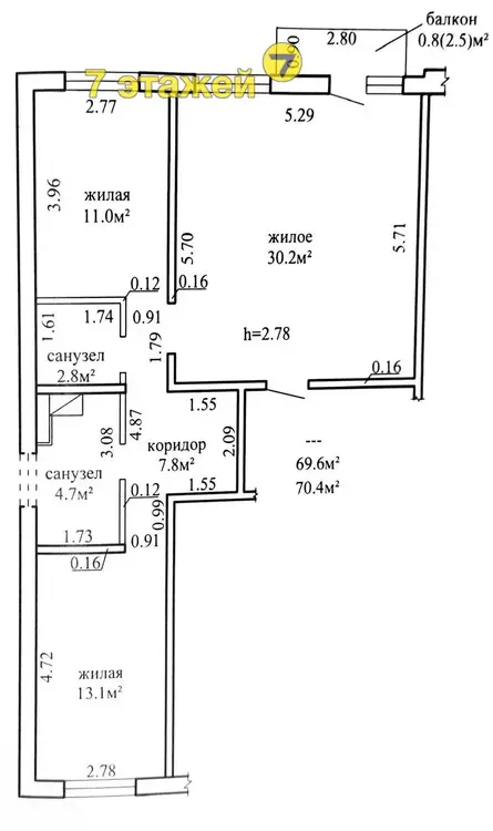
69.6 м2
3 этаж из 5
Обновлено: 29.09.2025
382 145 р.
Цена за м2: 5 286 р.
Предложить свою цену

О квартире

Площадь
69.6 м2
общая
54.3 м2
жилая
Отдельных комнат
2 комнаты
Санузел
2 сан.узла
Балкон
Балкон
Тип ремонта
Без отделки

О доме

Этаж
3 из 5
Материал стен
Панельный
Год постройки
2024

Описание

В продаже евро 3-комнатная квартира в современном ЖК Зеленая гавань с парковочным местом! Квартира расположена на 3-ем этаже 5-этажного дома 2024 года постройки. Дом относится к типу "Ситихаус" - формат многоквартирного дома, доведенного до совершенства и продуманного до мелочей (начиная от стиля застройки в скандинавском минимализме до эстетичных проходных подъездов и мест общего пользования). Большой тамбур на 2 квартиры, просторная зона ожидания лифта. Планировка улучшенного типа: площадь по СНБ 70.4 м2, 2 раздельные жилые комнаты, 2 санузла, просторная кухня-гостиная с входной группой правильной формы площадью 30.2 м2, наличие гардеробной - позволят рационально использовать метры большой семье, выделить места хранения и оставить личное пространство каждому. Окна выходят на разные стороны - каждая из которых открывает эстетичный вид на лаконичный дизайн внутренних двориков. В продуманном ландшафтном дизайне сохранены живые островки с многолетними деревьями - березами и соснами, что вторит лейтмотиву и концепции жилого комплекса. Нельзя не рассказать про преимущества внутреннего двора именно этого дома. Здесь организована зона барбекю, колонка с водой, терраса с настольными играми и зона с проектором для создания ваших уютных семейных пикников. У велобоксов вы сразу же найдете стойку с необходимыми вело атрибутами - насос с базовыми инструментами для самостоятельной починки. Инфраструктура комплекса стремительно развивается: построен детский сад, открываются магазины и кофейни. Рядом с домом остановка общественного транспорта. Обслуживающая организация отлично выполняет свои функции. Комфорт, достойный уровень жизни, ощущение тишины, легкости и спокойствия, а также прекрасное окружение - то, что вы приобретаете бонусом. В стоимость квартиры включено парковочное место на открытом паркинге, рядом с домом. Дизайн-проект квартиры - в подарок! Жилой комплекс находится в непосредственной близости от городской черты, на расстоянии всего 3,5 км от Минска, по соседству с сосновым лесным массивом и гольф-полями международного класса. Приглашаем на просмотр! Продадим Вашу квартиру для покупки этой! Помощь в получении кредита при покупке квартиры.
АгентАгент
9 лет на сайте
Условия сделки:Чистая продажа
Показать почту
Пожаловаться на объявление
Агентство недвижимости
7 этажей

Местоположение

Минская область, аг. Колодищи, ул. Серебряный Лес, 7
Опубликовано: 29.09.2025

Возможно, вам будет интересно

Похожие объекты

На этой улицеВ этом доме
390 247 р.
Цена за м2: 6 799 р.
аг. Колодищи, ул. Серебряный Лес
3-комн. кв
57.4
47.2
м2
2 этаж из 5
821 512 р.
Цена за м2: 8 248 р.
аг. Колодищи, ул. Серебряный Лес
4-комн. кв
99.6
57.2
17.3 м2
1 этаж из 4
297 161 р.
Цена за м2: 4 637 р.
аг. Колодищи, ул. Серебряный Лес
3-комн. кв
61.4
57
м2
1 этаж из 5
297 161 р.
Цена за м2: 4 637 р.
аг. Колодищи, ул. Серебряный Лес
3-комн. кв
61.4
57
м2
1 этаж из 5