Подать БЕСПЛАТНО

Продать 3-этажный коттедж в Минске, Минская область ул. Ермака, д. 9А, 170000USD, код 640969

г. Минск, ул. Ермака,
Показать на карте
495 338 р.
Код объекта: 640969
699.7 м2
11.53 соток
Обновлено: 07.07.2025
495 338 р.
Предложить свою цену

О доме

Площадь общая
699.7 м2
Площадь дома
699.7 м2
Участок
11.53 соток
Вид объекта
Таунхаус
В продаже
Целый дом
Год постройки
2015
Материал стен
блоки

Коммуникации

Электричество: Есть
Канализация: Есть

Описание

ТОРГ!

Эксклюзивное предложение как для физических лиц, также и для юридических лиц!

Уникальный таунхаус по ул. Ермака 9А! Таунхаус находится в черте города!

Отличное предложение для жизни или ведения бизнеса.

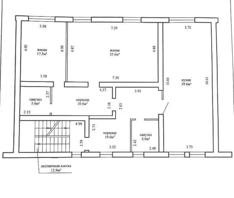
Общая площадь по СНБ 699,7 кв.м., жилая 190,4 кв.м (380,8 кв.м.). Кухня 39,6 кв.м.

ХАРАКТЕРИСТИКИ ДОМА:

На цокольном этаже (374,8 кв.м) располагается гараж (121,2 кв.м.) и много помещений которые можно использовать как под склад (54,5кв.м, 24,1кв.м,175,0кв.м), также и сдавать в аренду. Можно использовать так же под небольшое производство.

Первый этаж: Тамбур (4,2 кв.м) и лестница которая ведет на 2 жилой этаж и цокольный этаж.

Второй этаж: На втором этаже располагается две жилые комнаты (17,5 кв.м) и (35,6 кв.м), два сан.узла (6,0кв.м.) и (5,6 кв.м.), кухня (39,6 кв.м.), коридор (35,6 кв.м) Разведена электрика и сантехника, второй этаж готов к чистовой отделке! Стены оштукатурены, стяжка залита.

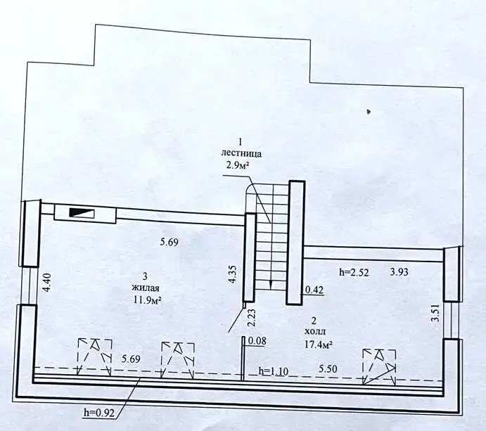
На третьем этаже расположен мансардный этаж под отделку (190,4 кв.м)!

УЧАСТОК: 11,53 сотки, огорожен забором.

Ограждение сплошное. На участок предусмотрен въезд для нескольких машин, также есть просторная стоянка для машин и гараж.

Отличные подъездные пути: асфальт проложен до дома. Остановка общественного транспорта находится в пяти минутах ходьбы от дома.

Идеальное место для жизни, работы и отдыха на свежем воздухе!

Звоните, согласуем удобное для Вас время просмотра, ответим на все интересующие вопросы.

ООО «Риэлти Фокс» УНП 193293123

Лицензия Минюста РБ 02240/381 от 30.08.2019 г.

Договор 108/1 от 16.09.2024 г.

АннаАгент
6 лет на сайте
Показать почту
Пожаловаться на объявление
Агентство недвижимости
ООО «Риэлти Фокс»

Местоположение

г. Минск, ул. Ермака,
Опубликовано: 07.07.2025

Похожие объекты

На этой улицеВ этом районе
1 641 690 р.
Центральный район, ул. Ермака
421
366
16.6 м2
13.28 соток
905 760 р.
Центральный район, ул. Зацень
236.8
85.8
16.5 м2
13.1 соток
1 018 980 р.
Центральный район, ул. Ярошевичская
5-комн. кв
380.3
178.1
15.4 м2
10.69 соток
834 998 р.
Центральный район, Долгиновский тр-т
478.8
344.7
м2
13 соток