Подать БЕСПЛАТНО

Продажа 2-этажного коттеджа в Минске, Минская область ул. Туполева, 174900USD, код 642622

г. Минск, ул. Туполева
Показать на карте
492 246 р.
Код объекта: 642622
365.6 м2
10.51 соток
Обновлено: 02.11.2024
492 246 р.
Предложить свою цену

О доме

Площадь общая
365.6 м2
Площадь дома
365.6 м2
Участок
10.51 соток
В продаже
Целый дом
Готовность дома, %
100
Год постройки
1997
Материал стен
Кирпич

Удобства

Баня
Лес
Гараж
Камин
Бассейн

Коммуникации

Водоснабжение: Центральное
Электричество: Есть
Канализация: Есть

Описание

Коттедж с ремонтом  + баня + бассейн

Описание Коттеджа :

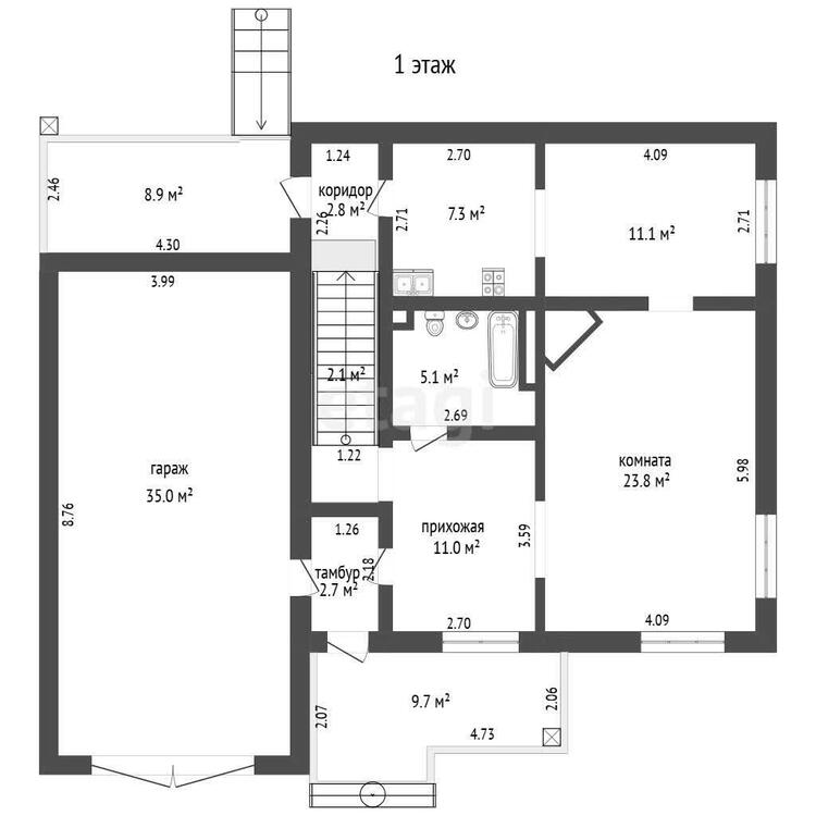
•  Общая площадь  помещений 314м2.  Дом  242 м2+ баня  72,6 м2.

•  Участок: 10,51 сотки

•  Два этажа

•  Цокольный этаж

•  2 санузла

•  Высота потолков 2,86м

•  Гараж ( вход с улицы и из дома)

•  Баня с бассейном и террасой

•  В доме 3  террасы, 2 крытые  + одна не крытая ( 20м2)

•  Дом энергоэффективный, при его строительстве учтены все современные технологии

•  Перед воротами стоянка на 2 машины  выложенная плиткой.

 

.

Первый этаж: 116м2

•  Кухня + столовая  18,4 м2 с брендовой техникой (Холодильник Bosch, индукционная плита maunfeld, вытяжка whirlpool, , духовой шкаф Bosch ) с переходом в гостиную 

•  Гостиная (24м2)

•  Санузел с ванной ( 5,1м2)

•  Большая прихожая (11м2) с   вместительным встроенным  шкафом

•  На полу дубовый паркет

•  Металлическая входная дверь

•  Продуманный свет

•  Предусмотрено два входа в дом с двух крытых террас (9,7м2 и 9м2)

•  Гараж с выходом из  дома27.577938 (35м2)

•  Гараж с секционными воротами 

 

 

 

Второй этаж: 68м2

•  Дубовая лестница, переходящая в просторный коридор (10,2м2)

•  Спальня(13,6м2)  с большим встроенным шкафом

•  Комната\ Спальня просторная и светлая (19,7м2)

•  Комната \ детская \ рабочий кабинет (13м2)

•  Санузел с душевой кабиной (2,7м2)

•  Балкон (6м2)

Цокольный этаж : 59м2

•  Помещение (5м2)

•  Помещение\котельная  (14,7м2)

•  Помещение (22,4м2)

•  Помещение (6,5м2)

•  Помещение (10м2)

•  Высота потолков 2,7м

•   

Участок : 10.51 сотка

•  Ухоженный ровный участок

•  Газон

•  Качели

•  Зона барбекю

•  Калитка
Ворота

•  Плодовые деревья

•  Перед домом уложена тротуарная плитка

Баня комплекс  : 72,6м2

•  Комната отдыха

•  Душевая

•  Парилка

•  Бассейн

•  Печь на дровах

•  Терраса

•  Хоз. помещение

 

 

 

 

Продается уютный коттедж в Соколе по ул. Туполева (Октябрьский район г. Минск).

 З спальни, 2 санузла, меблирован, бытовая техника, камин, гараж, сад, плодовые деревья, газон, веранда, зона барбекю, , баня с бассейном ,хоз.помещение.

. На 1-м этаже дубовый паркет, на 2-м ламинат, натяжные потолки. Дом утеплен, крыша гибкая черепица.

До МКАД 15 минут на машине, 7 минут пешком до автобусной остановки / супермаркета / поликлиники. Рядом лес, развитая инфраструктура. Ходят автобусы и маршрутки.

Дружные соседи.

 

Заезжай и живи и пусть весь мир подождёт.

 

Дополнительную  информация  буду рад дать вам по телефону в любое время

Дом  вашей мечты может купить кто-то другой. Спешите!

Бесплатный подбор оптимального варианта кредитования.

Выгодно помогу с продажей Вашей недвижимости для покупки этой.

 

ООО «ЭТАЖИ юнайтед»

УНП: 193673318

Договор 5243/1 от 01.11.2024

Лицензия на оказание риэлтерских услуг №02240/460 МЮ РБ от 03.04.2023

МаксимАгент
2 года на сайте
Показать почту
Пожаловаться на объявление
Агентство недвижимости
ООО «ЭТАЖИ юнайтед»

Местоположение

г. Минск, ул. Туполева
Опубликовано: 02.11.2024

Похожие объекты

На этой улице
1 245 151 р.
г. Минск, ул. Туполева
736.6
м2
10.24 соток
346 036 р.
г. Минск, ул. Туполева
197.4
79.3
14.4 м2
10 соток