Подать БЕСПЛАТНО

Купить 1-комнатную квартиру в Минске, пр-д Голодеда, д. 15/3

г. Минск, пр-д Голодеда, 15/3
Показать на карте
Заводской район
194 012 р.
Цена за м2: 5 435 р.
Код объекта: 1212493
1 комната
35.7 м2
1 этаж из 9
Обновлено: 27.11.2025
194 012 р.
Цена за м2: 5 435 р.
Предложить свою цену

О квартире

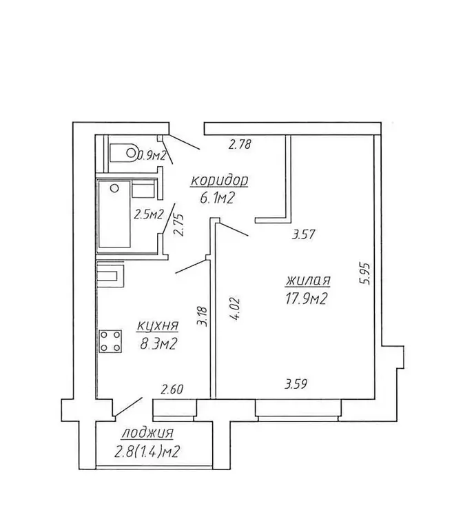
Площадь
35.7 м2
общая
17.9 м2
жилая
8.3 м2
кухня
Отдельных комнат
1 комната
Санузел
раздельный
Балкон
Лоджия

О доме

Этаж
1 из 9
Материал стен
Кирпичный
Год постройки
1997

Описание

Предлагаю купить 1-комнатную квартиру в Чижовке!

1-комнатная квартира в одном из самых зелёных районов города — Заводском районе Минска. Удобное транспортное сообщение, развитая инфраструктура и всё необходимое для комфортного повседневного ритма.

Микрорайон Чижовка давно зарекомендовал себя как практичное место для жизни: рядом магазины, школы, детские сады, медицинские учреждения, много зелёных зон и доступ к Чижовскому водохранилищу.

Двор дома тихий, ухоженный, с достаточным количеством зелени. Рядом — остановки общественного транспорта, магазины.
Дом кирпичный, 1997 года постройки — тёплый, с хорошей звукоизоляцией и интересной планировкой квартир.

Квартира на 1-м этаже, общей площадью 37 м2, жилая комната 17,9 м2, кухня 8,3 м2. Состояние — требуется ремонт, это позволит новому владельцу полностью реализовать своё видение интерьера и не переплачивать за готовые решения.

Отличный вариант для тех, кто ищет жильё в благоустроенном районе с готовой инфраструктурой и возможностью создать квартиру под себя.

Квартира свободна, документы готовы к сделке.

ООО «ЭТАЖИ юнайтед»

УНП: 193673318

Договор № 2569/1 от 25.11.2025

Лицензия на оказание риэлтерских услуг №02240/460 МЮ РБ от 03.04.2023.

ВиталийАгент
2 года на сайте
Условия сделки:продажа
Показать почту
Пожаловаться на объявление
Агентство недвижимости
ООО «ЭТАЖИ юнайтед»

Местоположение

г. Минск, пр-д Голодеда, 15/3
Заводской район
Опубликовано: 27.11.2025

Возможно, вам будет интересно

Похожие объекты

В этом районе
304 049 р.
Цена за м2: 5 528 р.
Заводской район, ул. Корзюки
2-комн. кв
55
29.5
10.1 м2
1 этаж из 9
211 386 р.
Цена за м2: 5 074 р.
Заводской район, ул. Ауэзова
1-комн. кв
42.8
18
9.5 м2
2 этаж из 19
242 081 р.
Цена за м2: 4 047 р.
Заводской район, ул. Голодеда
4-комн. кв
62.9
42.3
7.2 м2
1 этаж из 9