Подать БЕСПЛАТНО

Продажа 2-комнатной квартиры в Минске, ул. Бурдейного, д. 19

г. Минск, ул. Бурдейного, 19
Показать на карте
Фрунзенский район
Кунцевщина
6 мин
256 835 р.
Цена за м2: 5 210 р.
Код объекта: 1237827
2 комнаты
49.3 м2
1 этаж из 9
Обновлено: 10.04.2026
256 835 р.
Цена за м2: 5 210 р.
Предложить свою цену

О квартире

Площадь
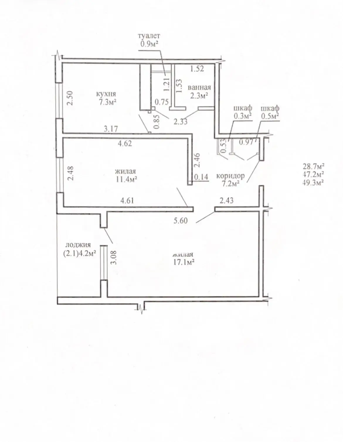
49.3 м2
общая
28.7 м2
жилая
7.3 м2
кухня
Отдельных комнат
1 комната
Санузел
раздельный
Балкон
Лоджия

О доме

Этаж
1 из 9
Материал стен
Панельный
Год постройки
1981

Описание

Продается 2-комнатная квартира на ул. Бурдейного, 19. Идеальный вариант для тех, кто хочет новый ремонт, но не желает тратить месяцы на демонтаж, пыль и замену коммуникаций.

Самое важное — база уже готова:

  • Полный демонтаж: Квартира полностью очищена от старых покрытий, полов и дверей. Вы видите реальное состояние стен и перекрытий — никаких «сюрпризов» под обоями.
  • Новое остекление: Во всей квартире установлены современные качественные стеклопакеты ПВХ.
  • Новая сантехника: Произведена замена труб и сантехнических коммуникаций. Вам осталось только выбрать плитку и санпосуду на свой вкус.
  • Электрика: Установлены новые розетки и выключатели, электропроводка проверена и готова к эксплуатации.
  • Солнечная сторона: Окна выходят на ЮГ. Квартира всегда наполнена естественным светом, что редкость для первых этажей.
  • Высокий 1-й этаж: Удобно для семей с колясками, пожилых людей или тех, кто ценит быстрый вход/выход из дома без ожидания лифта.

О доме и месте:

  • Капремонт (2021г): Дом утеплен, заменены стояки и газовое оборудование. Чистый подъезд и новый лифт.
  • 3 минуты до метро «Кунцевщина»: Самая ликвидная локация в районе. Рядом ТЦ «Алми», рынок «Западный», школы и детские сады прямо во дворе.

Преимущества для покупателя:

  1. Экономия времени и денег: Самые трудозатратные и «грязные» этапы ремонта уже выполнены.
  2. Контроль качества: Вы сами выбираете финальные материалы (ламинат, обои, потолки) и уверены в том, что под ними.
  3. Чистая продажа: Квартира свободна, никто не прописан, ключи в день сделки.

Звоните! Это лучшее предложение в доме для тех, кто ценит свое время и хочет создать интерьер мечты.

Общество с ограниченной ответственностью «ЮГ Хоум»
УНП: 193511758
Лицензия: 02240/412 от 19.03.2021, Министерство юстиции РБ (риэлтерские услуги).

КатеринаАгент
5 лет на сайте
Условия сделки:продажа
Показать почту
Пожаловаться на объявление
Агентство недвижимости
ЮГ Хоум

Местоположение

г. Минск, ул. Бурдейного, 19
Фрунзенский район
Опубликовано: 10.04.2026

Возможно, вам будет интересно

Похожие объекты

На этой улицеВ этом районе
511 385 р.
Цена за м2: 3 574 р.
Фрунзенский район, ул. Бурдейного
Кунцевщина
4 мин
5-комн. кв
143.1
94.7
м2
9 этаж из 10
542 525 р.
Цена за м2: 5 084 р.
Фрунзенский район, ул. Бурдейного
Кунцевщина
4 мин
3-комн. кв
106.2
100.1
м2
2 этаж из 9
685 656 р.
Цена за м2: 4 819 р.
Фрунзенский район, ул. Бурдейного
Кунцевщина
4 мин
5-комн. кв
141.7
78
13.8 м2
10 этаж из 10
333 972 р.
Цена за м2: 6 134 р.
Фрунзенский район, пер. Тимошенко 2-й
Кунцевщина
16 мин
9 мин
2-комн. кв
60.5
31.1
9.5 м2
1 этаж из 19
565 666 р.
Цена за м2: 4 516 р.
Фрунзенский район, ул. Притыцкого
Кунцевщина
3 мин
3-комн. кв
122.1
61.4
17.1 м2
5 этаж из 12
211 125 р.
Цена за м2: 6 298 р.
Фрунзенский район, ул. Якубовского
Кунцевщина
8 мин
4 мин
1-комн. кв
34.7
16.9
7.2 м2
6 этаж из 9