О квартире
Площадь
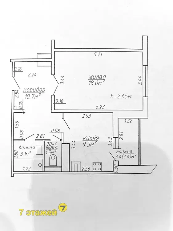
42.8 м2
общая
18 м2
жилая
9.5 м2
кухня
Отдельных комнат
1 комната
Санузел
раздельный
Балкон
Лоджия застеклена
Тип ремонта
Косметический ремонт
О доме
Этаж
11 из 12
Материал стен
Панельный
Год постройки
2012
Описание
Агент — Агент
9 лет на сайте
Условия сделки:Чистая продажа
Показать почту
Пожаловаться на объявление
Агентство недвижимости
7 этажей
УНП: 192361483 Лицензия: от 14.11.2014 № 225
Договор №: 1511/3 от 29.12.2025










































