О квартире
Площадь
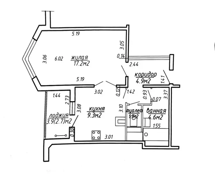
39.8 м2
общая
17.2 м2
жилая
9.3 м2
кухня
Отдельных комнат
1 комната
Санузел
раздельный
Балкон
Лоджия
Тип ремонта
Хороший
О доме
Этаж
5 из 9
Материал стен
Панельный
Год постройки
2010
Описание
Евгений — Агент
год на сайте
Условия сделки:продажа
Показать почту
Пожаловаться на объявление
Агентство недвижимости
"Мираваль"
УНП: 193749806 Лицензия: выдана 18 мая 2024 г
Договор №: 237/1 от 2025-06-27










































