Подать БЕСПЛАТНО

ОБЪЕКТ В АРХИВЕ

Продажа 1-комнатной квартиры в Минске, ул. Осипенко, д. 28

г. Минск, ул. Осипенко, 28
Показать на карте
Центральный район
188 859 р.
Цена за м2: 6 448 р.
Код объекта: 1232034
1 комната
29.28 м2
3 этаж из 5
Обновлено: 27.02.2026
188 859 р.
Цена за м2: 6 448 р.
Предложить свою цену

О квартире

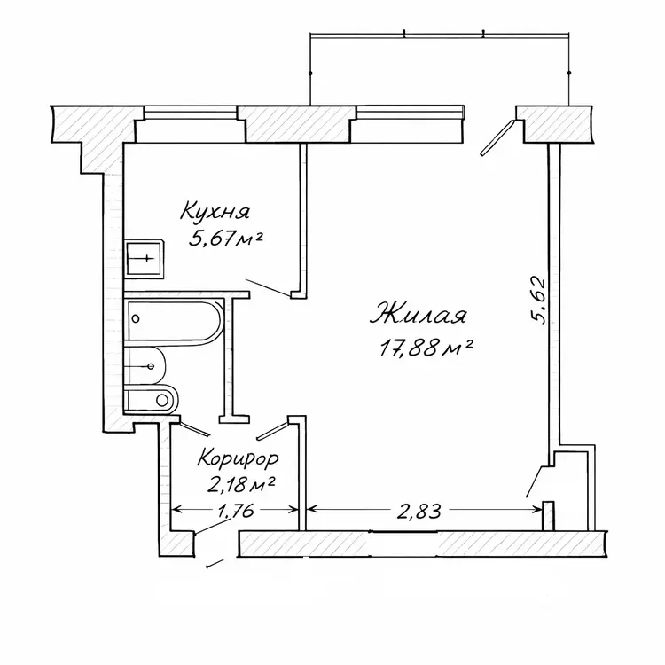
Площадь
29.28 м2
общая
17.88 м2
жилая
5.67 м2
кухня
Отдельных комнат
1 комната
Санузел
Совмещенный
Балкон
Балкон
Тип ремонта
Без отделки

О доме

Этаж
3 из 5
Материал стен
Кирпичный
Год постройки
1960

Описание

Продаётся 1 комнатная квартира в кирпичном доме. Центральный район- один из востребованных в Минске! В квартире частично выполнен ремонт (черновая отделка) • 3 этаж/ 5 этажного дома; • дом кирпичный; • комната 17,88м2; • окна ПВХ (выходят во двор на обе стороны); • капитальный ремонт 2018 год; • рядом остановки общественного (близость к центру); • станция метро «Я. Коласа» в нескольких остановках от дома; • развитая инфраструктура: школы и детские сады, различные магазины и заведения, Комаровский рынок, банки, парки, такие как «Парк Победы» и «Киевский сквер», кинотеатр Киев. и многое другое. Отличное место для спокойной комфортной жизни! Ждем Вас на просмотр! Выгодно продадим вашу недвижимость для покупки этой! Реальность кредитования. Окажем качественную консультацию по ипотекам для приобретения жилья! ООО «Жилой проспект» УНП: 193890816 Договор 46/1 от 26.02.2026 Лицензия Министерства юстиции Республики Беларусь № 02240/518 от 15.08.2025г.

КристинаАгент
8 месяцев на сайте
Условия сделки:Чистая продажа
Пожаловаться на объявление
Агентство недвижимости
Жилой проспект

Местоположение

г. Минск, ул. Осипенко, 28
Центральный район
Опубликовано: 27.02.2026

Возможно, вам будет интересно

Похожие объекты

На этой улицеВ этом районе
242 496 р.
Цена за м2: 5 928 р.
Центральный район, ул. Осипенко
Площадь Якуба Коласа
26 мин
14 мин
2-комн. кв
42.86
26.38
6 м2
4 этаж из 4
242 778 р.
Цена за м2: 7 780 р.
Центральный район, ул. Осипенко
1-комн. кв
31.2
17
5.8 м2
4 этаж из 5
211 725 р.
Цена за м2: 6 658 р.
Центральный район, ул. Осипенко
1-комн. кв
31.8
18
6.3 м2
4 этаж из 5
238 261 р.
Цена за м2: 4 910 р.
Центральный район, ул. Червякова
4-комн. кв
59.79
43.41
5.81 м2
1 этаж из 5
635 175 р.
Цена за м2: 6 555 р.
Центральный район, ул. Кропоткина
Немига
23 мин
12 мин
4-комн. кв
101.2
88.2
м2
11 этаж из 15
239 673 р.
Цена за м2: 6 253 р.
Центральный район, ул. Каховская
2-комн. кв
45.1
32.9
6.3 м2
1 этаж из 5