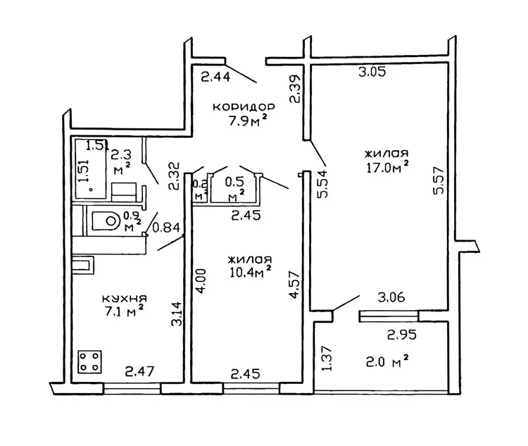
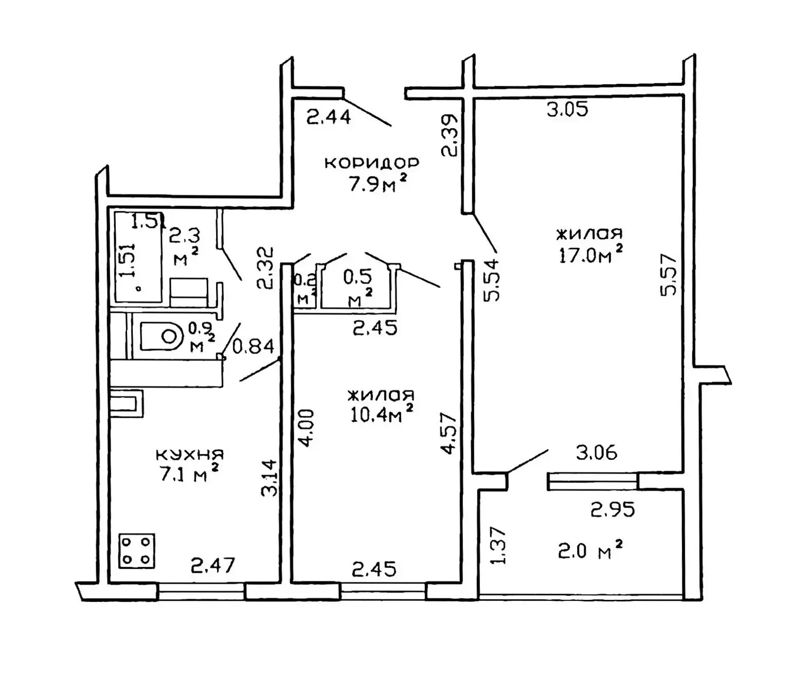
О квартире
Площадь
48.3 м2
общая
27.4 м2
жилая
7.1 м2
кухня
Санузел
раздельный
Балкон
Лоджия
Тип ремонта
Хороший
О доме
Этаж
4 из 9
Материал стен
Панельный
Год постройки
1974
Описание
Екатерина — Агент
7 лет на сайте
Условия сделки:продажа
Показать почту
Пожаловаться на объявление
Агентство недвижимости
Фаттория Плюс
УНП: 193074485 Лицензия: от 31.07.2018 № 159
Договор №: 127/1 от 2026-02-09






































