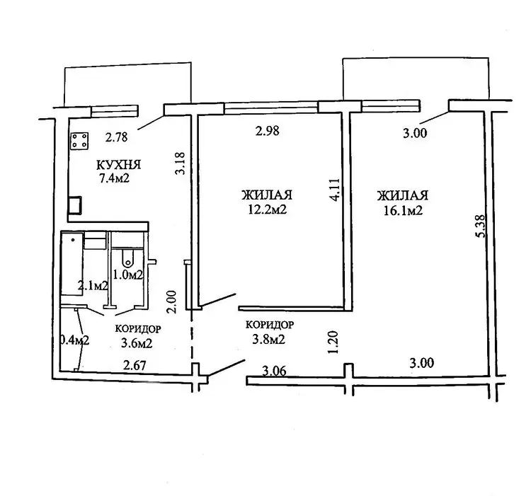
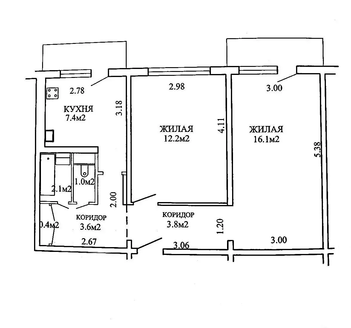
О квартире
Площадь
48 м2
общая
28.3 м2
жилая
7.4 м2
кухня
Санузел
раздельный
Балкон
Балкон
О доме
Этаж
5 из 5
Материал стен
Панельный
Год постройки
1975
Описание
Фаттория — Агент
7 лет на сайте
Условия сделки:продажа
Показать почту
Пожаловаться на объявление
Агентство недвижимости
Фаттория Плюс
УНП: 193074485 Лицензия: от 31.07.2018 № 159
Договор №: 264/1 от 2026-03-06

































