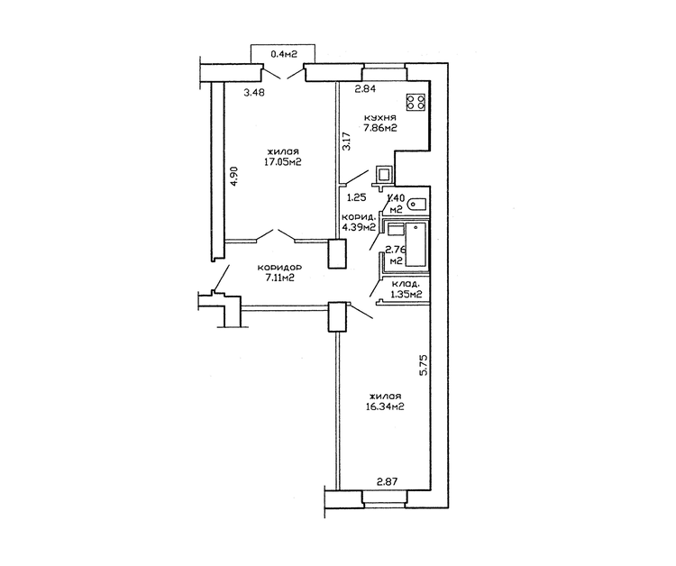
О квартире
Площадь
58.7 м2
общая
33.4 м2
жилая
7.9 м2
кухня
Санузел
раздельный
Балкон
Балкон
О доме
Этаж
3 из 5
Материал стен
Кирпичный
Год постройки
1957
Описание
Павел - NOVIKOV.BY — Агент
3 года на сайте
Условия сделки:продажа
Показать почту
Пожаловаться на объявление
Агентство недвижимости
«Новиков и команда»
УНП: 193641442 Лицензия: №126 от 26.09.2022
Договор №: 40/2 от 2026-03-23

































