Подать БЕСПЛАТНО

Продажа 2-комнатной квартиры в Минске, ул. Аэродромная, д. 22

г. Минск, ул. Аэродромная, 22
Показать на карте
Октябрьский район
Ковальская слобода
11 мин
6 мин
293 296 р.
Цена за м2: 6 094 р.
Код объекта: 1215378
2 комнаты
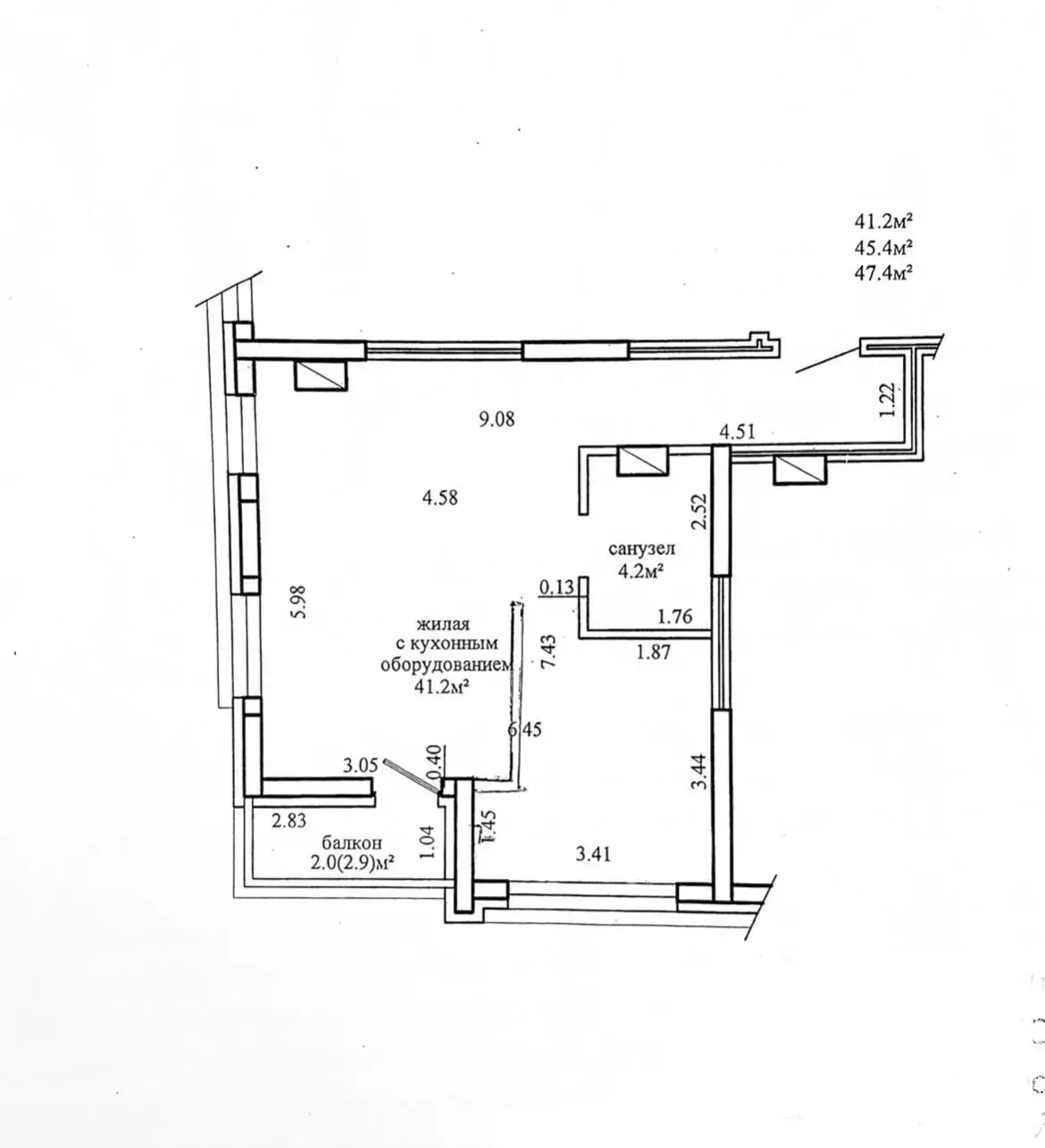
47.4 м2
7 этаж из 25
Обновлено: 16.12.2025
293 296 р.
Цена за м2: 6 094 р.
Предложить свою цену

О квартире

Площадь
47.4 м2
общая
41.2 м2
жилая
Санузел
совмещенный
Балкон
Лоджия
Тип ремонта
С отделкой

О доме

Этаж
7 из 25
Год постройки
2022

Описание

 

 Продается простораня евро2 в Минск Мире!

 

  Площадь по снб 47,4 м.кв.

 

 Квартира находится на комфортном 7 этаже.

Возведена перегородка (проект согласован), стены поштукатурены, в жилой комнате ремонт в стадии под чистовую отделку.

Электрика полностью разведена.

Установлена входная металлическая дверь.

 В студии выполнено максимально комфортное зонирование пространства.

 

4 окна!

 

 Станция метро «Аэродромная» расположена в 5 минутах пешком.

 

  Самый большой ТЦ Беларуси «АВИАМОЛЛ» 5 минут пешком!

 

 Вся социально значимая инфраструктура в шаговой доступности.

Звоните! Покажем в удобное для Вас время.

Продадим Вашу недвижимость для покупки этой.

Марьяна НемудрякинаАгент
3 года на сайте
Условия сделки:продажа
Показать почту
Пожаловаться на объявление
Агентство недвижимости
"Группа компаний Мариэлт"

Местоположение

г. Минск, ул. Аэродромная, 22
Октябрьский район
Опубликовано: 16.12.2025

Возможно, вам будет интересно

Похожие объекты

На этой улицеВ этом домеВ этом районе
335 663 р.
Цена за м2: 5 768 р.
Октябрьский район, ул. Аэродромная
Ковальская слобода
10 мин
5 мин
3-комн. кв
60.2
м2
1 этаж из 25
396 572 р.
Цена за м2: 5 768 р.
Октябрьский район, ул. Аэродромная
Ковальская слобода
10 мин
5 мин
3-комн. кв
69.5
м2
1 этаж из 25
336 506 р.
Цена за м2: 4 835 р.
Октябрьский район, ул. Аэродромная
Аэродромная
11 мин
6 мин
3-комн. кв
76.4
м2
2 этаж из 25
265 384 р.
Цена за м2: 5 837 р.
Октябрьский район, ул. Аэродромная
Аэродромная
11 мин
6 мин
2-комн. кв
53.1
м2
1 этаж из 25
224 650 р.
Цена за м2: 6 010 р.
Октябрьский район, ул. Аэродромная
Аэродромная
11 мин
6 мин
1-комн. кв
43.1
м2
1 этаж из 25
269 496 р.
Цена за м2: 5 837 р.
Октябрьский район, ул. Аэродромная
Аэродромная
11 мин
6 мин
2-комн. кв
53.2
м2
1 этаж из 25
353 724 р.
Цена за м2: 8 625 р.
Октябрьский район, ул. Братская
Ковальская слобода
12 мин
7 мин
2-комн. кв
41.6
36
м2
6 этаж из 22
358 838 р.
Цена за м2: 6 217 р.
Октябрьский район, ул. Николы Теслы
Аэродромная
8 мин
5 мин
3-комн. кв
56.8
м2
1 этаж из 25
447 932 р.
Цена за м2: 6 217 р.
Октябрьский район, ул. Николы Теслы
Аэродромная
8 мин
5 мин
4-комн. кв
71.2
м2
1 этаж из 25