Подать БЕСПЛАТНО

Купить 2-комнатную квартиру в Минске, ул. Ангарская, д. 18/3

г. Минск, ул. Ангарская, 18/3
Показать на карте
Заводской район
Могилевская
10 мин
6 мин
217 178 р.
Цена за м2: 4 520 р.
Код объекта: 1178876
2 комнаты
44.2 м2
5 этаж из 5
Обновлено: 01.07.2025
217 178 р.
Цена за м2: 4 520 р.
Предложить свою цену

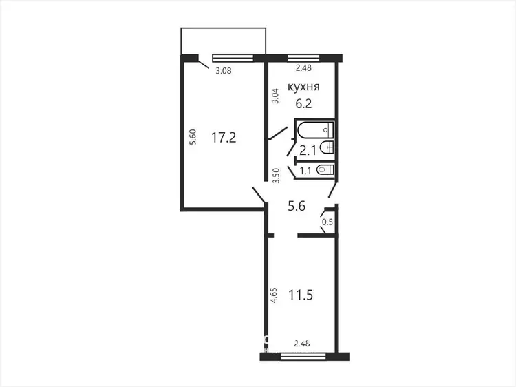
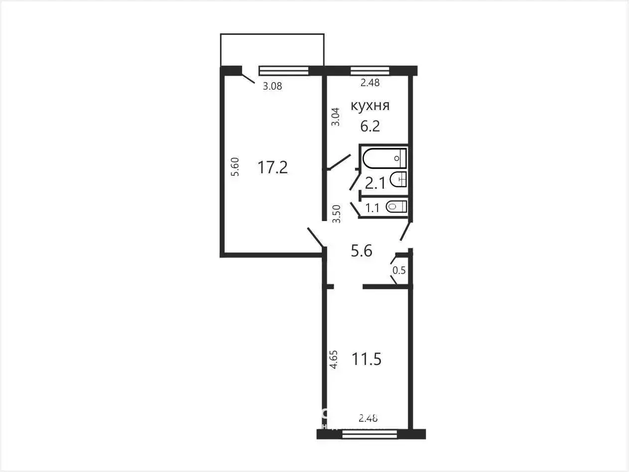
О квартире

Площадь
44.2 м2
общая
28.7 м2
жилая
6.2 м2
кухня
Отдельных комнат
2 комнаты
Санузел
раздельный
Балкон
Балкон
Тип ремонта
С отделкой

О доме

Этаж
5 из 5
Материал стен
Панельный
Год постройки
1966

Описание

В продаже уютная двухкомнатная квартира на Ангарской ул., д. 18, в Заводском районе — готова к проживанию.Функциональная планировка с окнами, выходящими на разные стороны, создаёт приятную атмосферу и обеспечивает хорошее естественное освещение.Дом панельный, построен в 1966 годуКапитальный ремонт дома выполнен в 2005годуКвартира расположена на 5 этаже из 5.Общая площадь — 44,2 м², жилая — 28,7 м², кухня — 6,2 м², высота потолков — 2,61 м. Застеклённый балкон с раздвижными алюминиевыми рамами станет отличным местом для отдыха.В квартире установлены стеклопакеты ПВХ, в прихожей и одной из комнат — вместительные встроенные шкафы-купе, а также современная встроенная кухня с бытовой техникой. Санузел совмещённый, облицован стильной современной плиткой.Район обеспечен чистой водой из подземных артезианских источников.Инфраструктура развита: рядом несколько детских садов, школы, магазины, гипермаркет «МОМО», сервисные центры и спортивно-оздоровительный комплекс «Мандарин».Отличное транспортное сообщение — в шаговой доступности станция метро «Могилевская» и удобный выезд на МКАД.Купить или продать квартиру в Минске - легко и выгодно вместе с агентством недвижимости " Твоя столица"! Получите бесплатную консультацию покупке, продаже и обмену квартиры в Минске у опытных риэлтеров. Для Вас - актуальная база жилья с ценами, фото, планировками и услуги продажи квартир. Проконсультируем по алгоритму сделки, по необходимым документам!, Приходите на бесплатную консультацию риэлтера для покупки. Наш офис находится по адресу - Минск, Кирова, 8Смотреть подробнее Торг. Предложите свою цену. Последние поступления квартир. ТОП-20 ДЕШЕВЫХ КВАРТИРБАЗА ПОКУПАТЕЛЕЙ – узнайте, кто готов купить вашу квартиру прямо сейчас!КАЛЬКУЛЯТОР СТОИМОСТИ ЖИЛЬЯ – онлайн- расчет стоимости вашей квартиры!ПЕРЕЕЗЖАЕМ В НОВОСТРОЙКУ-  программа  обмена старого жилья на новое. 2 сделки в 1 день!ПАРТНЕР-КРЕДИТ  сопровождение кредитования для покупки и обмена «под ключ»ВАШ ВАРИАНТ- проверка квартир перед покупкой и оформление сделки, если вы нашли объект самостоятельно. ООО "Твоя столица", УНП 101136973, лицензия №02240/15 от 17.02.05г.
Агент
10 лет на сайте
Показать почту
Пожаловаться на объявление
Агентство недвижимости
ТВОЯ СТОЛИЦА АГЕНТСТВО НЕДВИЖИМОСТИ

Местоположение

г. Минск, ул. Ангарская, 18/3
Заводской район
Опубликовано: 01.07.2025

Возможно, вам будет интересно

Похожие объекты

На этой улицеВ этом районе
208 490 р.
Цена за м2: 3 308 р.
Заводской район, ул. Ангарская
2-комн. кв
60.4
39.8
9.1 м2
1 этаж из 1
376 441 р.
Цена за м2: 5 333 р.
Заводской район, ул. Ангарская
Могилевская
23 мин
13 мин
4-комн. кв
70.04
53.42
7.4 м2
2 этаж из 5
202 409 р.
Цена за м2: 4 636 р.
Заводской район, ул. Ангарская
Могилевская
8 мин
5 мин
2-комн. кв
45.6
32.4
5.7 м2
2 этаж из 5
257 717 р.
Цена за м2: 4 007 р.
Заводской район, пер. Осенний 1-й
Могилевская
22 мин
12 мин
4-комн. кв
79.5
54.5
12.5 м2
1 этаж из 1
249 030 р.
Цена за м2: 2 351 р.
Заводской район, пер. Зимний 2-й
Могилевская
25 мин
14 мин
3-комн. кв
105.9
54.9
12.4 м2
1 этаж из 2
403 950 р.
Цена за м2: 3 462 р.
Заводской район, ул. Иркутская
3-комн. кв
112.5
62.7
13.6 м2
1 этаж из 2