Подать БЕСПЛАТНО

Купить 2-комнатную квартиру в Минске, ул. Данилы Сердича, д. 17

г. Минск, ул. Данилы Сердича, 17
Показать на карте
Фрунзенский район
Спортивная
10 мин
6 мин
237 158 р.
Цена за м2: 4 900 р.
Код объекта: 1211031
2 комнаты
48.4 м2
4 этаж из 5
Обновлено: 19.11.2025
237 158 р.
Цена за м2: 4 900 р.
Предложить свою цену

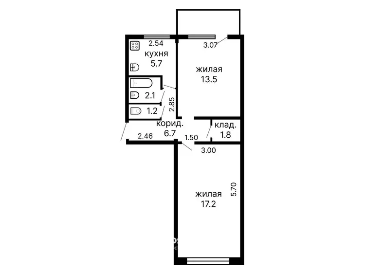
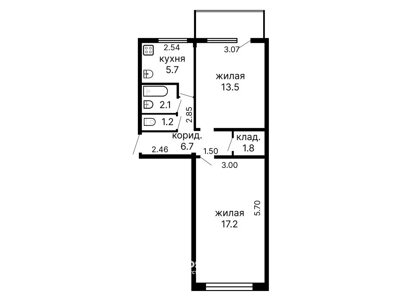
О квартире

Площадь
48.4 м2
общая
36.6 м2
жилая
5.7 м2
кухня
Отдельных комнат
2 комнаты
Санузел
раздельный
Балкон
Балкон

О доме

Этаж
4 из 5
Материал стен
Панельный
Год постройки
1969

Описание

Двухкомнатная квартира на Сердича, 17 — всё нужное находится рядом! Четвёртый этаж пятиэтажного дома. Удачная планировка: 2-е раздельные комнаты на разные стороны, отдельная кухня, раздельный санузел, балкон. Счётчики воды и газа, домофон, оптоволокно, деревянные стеклопакеты. Имеется кладовая и подвал. Локация делает эту квартиру особенно ценной. До метро «Пушкинская» и «Спортивная» — приятная прогулка в десять–пятнадцать минут. Вокруг — зелёные дворы, несколько парков и скверов. Для покупок — ТЦ «Тивали», ТЦ «Скала», ТЦ «Раковский Кирмаш». Район давно обжитой, спокойный, с развитой инфраструктурой: детские сады, школы, поликлиника, отделения почты, банки - все под рукой. Приятный бонус - наличие свободных парковочных мест!Звоните и приходите на просмотр!Двухкомнатная квартира Сердича ул. 17 (Фрунзенский район)Материал стен: панельный.Год постройки: 1969. Этаж: 4/5, балконОбщая площадь: 48.4. Жилая площадь: 36.6. Площадь кухни: 5.7. Высота потолка: 2.5.Смотреть подробнее ТОП-20 ДЕШЕВЫХ КВАРТИРБАЗА ПОКУПАТЕЛЕЙ – узнайте, кто готов купить вашу квартиру прямо сейчас!КАЛЬКУЛЯТОР СТОИМОСТИ ЖИЛЬЯ – онлайн- расчет стоимости вашей квартиры!ПЕРЕЕЗЖАЕМ В НОВОСТРОЙКУ-  программа  обмена старого жилья на новое. 2 сделки в 1 день!ПАРТНЕР-КРЕДИТ  сопровождение кредитования для покупки и обмена «под ключ»ВАШ ВАРИАНТ- проверка квартир перед покупкой и оформление сделки, если вы нашли объект самостоятельно. ООО "Твоя столица", УНП 101136973, лицензия №02240/15 от 17.02.05г.
Агент
10 лет на сайте
Показать почту
Пожаловаться на объявление
Агентство недвижимости
ТВОЯ СТОЛИЦА АГЕНТСТВО НЕДВИЖИМОСТИ

Местоположение

г. Минск, ул. Данилы Сердича, 17
Фрунзенский район
Опубликовано: 19.11.2025

Возможно, вам будет интересно

Похожие объекты

На этой улицеВ этом районе
213 992 р.
Цена за м2: 6 124 р.
Фрунзенский район, ул. Данилы Сердича
Пушкинская
18 мин
10 мин
1-комн. кв
34.6
16.99
5.93 м2
3 этаж из 9
222 969 р.
Цена за м2: 5 680 р.
Фрунзенский район, ул. Данилы Сердича
Пушкинская
17 мин
9 мин
2-комн. кв
39
23.3
6.2 м2
4 этаж из 5
272 196 р.
Цена за м2: 4 750 р.
Фрунзенский район, ул. Данилы Сердича
Пушкинская
18 мин
10 мин
3-комн. кв
56.7
34.1
7.1 м2
2 этаж из 9
361 673 р.
Цена за м2: 4 572 р.
Фрунзенский район, ул. Жудро
Спортивная
16 мин
9 мин
4-комн. кв
81.19
59.69
7.9 м2
1 этаж из 9
115 538 р.
Цена за м2: 1 758 р.
Фрунзенский район, ул. Жудро
Спортивная
7 мин
4 мин
4-комн. кв
65.72
7.7
26.82 м2
4 этаж из 5
185 325 р.
Цена за м2: 5 257 р.
Фрунзенский район, ул. Жудро
Спортивная
13 мин
7 мин
1-комн. кв
34.7
18
7.4 м2
1 этаж из 9