Подать БЕСПЛАТНО

Купить 2-комнатную квартиру в Минске, ул. Гастелло, д. 8

г. Минск, ул. Гастелло, 8
Показать на карте
Центральный район
Молодежная
16 мин
9 мин
506 458 р.
Цена за м2: 6 527 р.
Код объекта: 1159534
2 комнаты
76.7 м2
9 этаж из 10
Обновлено: 13.05.2025
506 458 р.
Цена за м2: 6 527 р.
Предложить свою цену

О квартире

Площадь
76.7 м2
общая
45.3 м2
жилая
10 м2
кухня
Отдельных комнат
2 комнаты
Санузел
Раздельный
Балкон
Балкон
Тип ремонта
Без отделки

О доме

Этаж
9 из 10
Материал стен
Каркасно-блочный
Год постройки
2024

Описание

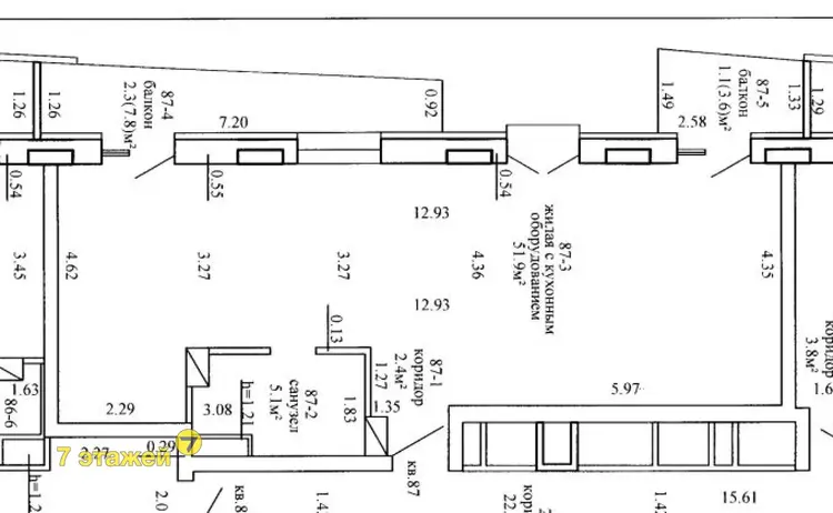
Адрес: г. Минск, ул. Гастелло 8

Количество комнат: 2. Кухня-гостиная, спальня и гардеробная

Тип планировки индивидуальный проект.

Материал дома: каркасно-блочный

Метраж квартиры: общ 76.7 жил. 45.3 м2

Этаж: 9 из 10

В подъезде 1 лифт Otis

Год постройки: 2024

Высота потолков: 2.70 м

Состояние квартиры: строительная отделка от застройщика. Квартира принята специалистами. На полу стяжка, стены оштукатурены, частично разведена электрика и сантехника. Стены в квартире не несущие, что позволяет сделать грамотную перепланировку и превратить двухкомнатную квартиру в трехкомнатную.

Кухня-гостиная: площадью30.3 м2 с выходом на балкон.Площадь позволяет выполнить грамотное зонирование или разделить кухню от жилого пространства.3 окна, одно из них в пол – выход на балкон.

Балкон: просторная территория для вашего отдыха с обзором на город на 270 градусов. С одной части балкона можно встречать рассветы, а в другой - наслаждаться закатами.

Спальня: площадью 15 м2. Правильной формы. Идеальное место для вашего отдыха.

Сан.узел: два. Гостевой площадью 1.6 м2 и совмещенный площадью 4.7 м2. В гостевом санузле установлен унитаз.

Гардеробная: 3.0 м2 с окном. При грамотной перепланировке, гардеробную можно расширить и разместить полноценный кабинет или детскую комнату.

Коридор и прихожая: 17.3 м2. Пространство позволяет грамотно организовать прихожую зону и места для хранения.

Паркинг: на -1 и -2 этажах расположен подземный паркинг с возможностью установки зарядного устройства для электромобилей.

Инфраструктура:

Вы в центре Минска. Причем в лучшей, части. Нет плотной застройки, в шаговой доступности проспект Победителей, Парк Победы, Комсомольское озеро, рядом вся лучшая инфраструктура, кафе, гимназии, магазины, медицинские учреждения – всё, что нужно для комфортной жизни.

Резюме: Всё лучшее уже здесь! Убедитесь в этом лично – звоните.

НатальяАгент
7 лет на сайте
Условия сделки:Чистая продажа
Пожаловаться на объявление
Агентство недвижимости
Квартиры Столицы

Местоположение

г. Минск, ул. Гастелло, 8
Центральный район
Опубликовано: 13.05.2025

Возможно, вам будет интересно

Похожие объекты

На этой улицеВ этом домеВ этом районе
434 065 р.
Цена за м2: 7 352 р.
Центральный район, ул. Гастелло
Молодежная
16 мин
9 мин
2-комн. кв
59.4
51.9
м2
4 этаж из 10
341 693 р.
Цена за м2: 6 886 р.
Центральный район, ул. Гастелло
Октябрьская
35 мин
19 мин
1-комн. кв
50.2
39.4
м2
4 этаж из 12
564 372 р.
Цена за м2: 6 399 р.
Центральный район, ул. Гастелло
Молодежная
16 мин
9 мин
3-комн. кв
88.2
66.2
15 м2
3 этаж из 12
434 065 р.
Цена за м2: 7 352 р.
Центральный район, ул. Гастелло
Молодежная
16 мин
9 мин
2-комн. кв
59.4
51.9
м2
4 этаж из 10
341 693 р.
Цена за м2: 6 886 р.
Центральный район, ул. Гастелло
Октябрьская
35 мин
19 мин
1-комн. кв
50.2
39.4
м2
4 этаж из 12
564 372 р.
Цена за м2: 6 399 р.
Центральный район, ул. Гастелло
Молодежная
16 мин
9 мин
3-комн. кв
88.2
66.2
15 м2
3 этаж из 12
-3 р.
Цена за м2: 11 188 р.
Центральный район, ул. Димитрова
Немига
7 мин
4 мин
2-комн. кв
220
140
40 м2
4 этаж из 5
1 097 470 р.
Цена за м2: 8 683 р.
Центральный район, пр-т Победителей
Фрунзенская
10 мин
6 мин
3-комн. кв
126.4
66
14.7 м2
9 этаж из 19
1 644 222 р.
Цена за м2: 12 651 р.
Центральный район, пр-т Победителей
Фрунзенская
10 мин
6 мин
3-комн. кв
123.6
46
14.3 м2
19 этаж из 19