О квартире
О доме
Описание
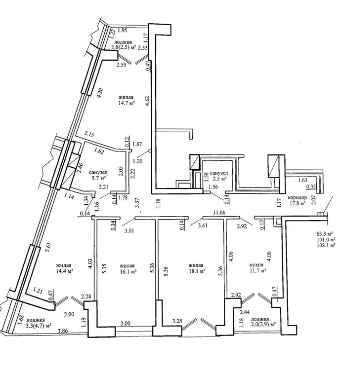
Предлагаем вашему вниманию квартиру площадью по СНБ 82.3 кв.м в доме, построенному по индивидуальному проекту монолитно-кирпичных ЖД в 2004 г. с лоджией 9.3 кв.м, имеющей панорамное остекление, стилизованной и полноценно используемой как летняя терраса.
В квартире сделан ремонт по дизайн-проекту, перепланировка утверждена! В настоящее время с помощью раздвижных перегородок 11 кв.м. жилой площади с эркерными окнами организованы в рабочий кабинет, а вы с легкостью сможете превратить ее в детскую или комнату свободного назначения, что фактически делает квартиру 3-комнатной. Терраса в теплое время года активно используется, добавляя квартире полезной площади.
Отличительная особенность квартиры-уникальная планировка: изолированная прихожая и просторный холл, оснащенные вместительными шкафами-купе, кухня-столовая с, просторная гостиная, спальня и 2 с/у. Бытовая техника и сантехника-ведущих европейских производителей.
Отделка квартиры, окна с тройными стеклопакетами, подоконники, окна и двери выполнены из материалов высокого качества. Напольное покрытие-паркетная доска. Установлен кондиционер и приточная вентиляция с управлением со смартфона, которая позволяет проветривать квартиру не открывая окон.
Интерьер выполнен в скандинавском стиле.
Малоквартирный дом ( на 40 квартир).огороженная территория с видеонаблюдением, детской площадкой, зоной для отдыха, обширной парковкой со шлагбаумом и консьерж сделают ваше проживание в доме комфортным. ТС с собственным штатом специалистов по обслуживанию дома.
Выгодная локация: Комсомольское озеро, Парк Победы и набережная р. Свислочь в шаговой доступности. За 15-20 мин вы прогуляетесь до Большого театра или Троицкого предместья.
Дом находится в достаточном удалении от уличной магистрали, полностью отсутствует уличный шум.
В ближайшей перспективе открытие ст.м." Переспа".
Звоните, ответим на все ваши вопросы и покажем нашу квартиру!
Смотрите еще больше в нашем Telegram канале @kvadratnyjmetr
УП «Квадратный метр»
УНП: 190003285
Лицензия 02240/29_
от 17.02.2005, Министерство юстиции РБ
Договор 262/1 от 19.12.2025





































