О квартире
О доме
Описание
Квартира расположена по факту на 2 этаже (снизу офисы) 5-ти этажного каркасно-блочного жилого дома 2009 года постройки.
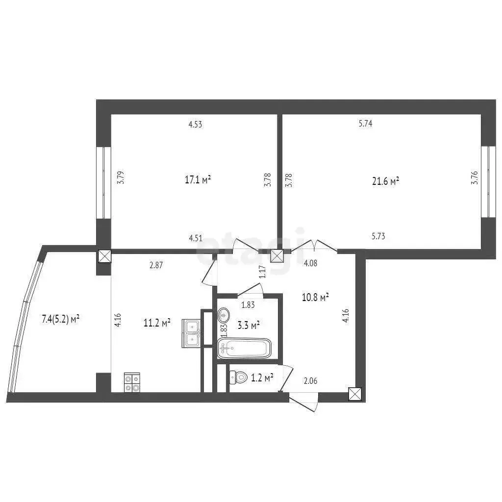
Две просторные жилые комнаты 17,1м2 и 21,6м2, кухня 18.6м2.
В квартире сделан современный качественный ремонт, стены выровнены, оштукатурены и оклеены обоями, и декоративной штукатуркой, потолки окрашены.
На полу уложена паркетная доска, в корридоре и на кухне - плитка.
Заменены окна на новые.
Квартира оборудована индивидуальным газовым котлом, что позволяет в любое время года поддерживать в квартире заданную комфортную температуру и обеспечивает бесперебойную подачу горячей воды, а также экономить на коммуналке.
Квартира не требует никаких финансовых вложений, что дает возможность сразу заселиться и наслаждаться.
Квартира очень светлая, теплая и уютная, окна выходят на две стороны.
Грамотно продуманная планировка.
ЖК расположен в живописной части города, рядом со Слепянской водной системой и Чижовским водохранилищем.
Комплекс состоит из пяти малоэтажных домов, управляется товариществом собственников.
В подъездах и на прилегающей к дому территории всегда чисто и убрано.
Современный двор закрытого типа, благоустроенная огороженная территория, индивидуальная парковка и детская площадка.
До станции метро «Партизанская» - 10 минут на автобусе, автобус ходит часто и чётко по расписанию.
Очень удобный выезд на МКАД. Недалеко от дома находится многофункциональный спортивно-развлекательный комплекс «Чижовка-Арена». А в парке имени Грековой и парке имени 900-летия Минска вы можете прекрасно провести время с семьей.
Мы открыты к диалогу!!! Звоните!!! Приезжайте!!! Смотрите!!! Покупайте!!!
Возможен торг.
Звоните или пишите в мессенджерах Telegram / WhatsApp / Viber
-Приглашаем на просмотр.
-Поможем продать Вашу недвижимость для покупки этой
-Кредит/Ипотека
ООО «ЭТАЖИ юнайтед»
УНП: 193673318
Договор 891/1 от 18.06.2025
Лицензия на оказание риэлтерских услуг №02240/460 МЮ РБ от 03.04.2023



























