Подать БЕСПЛАТНО

Продажа 2-комнатной квартиры в Минске, ул. Кульман, д. 30

г. Минск, ул. Кульман, 30
Показать на карте
Советский район
Площадь Якуба Коласа
17 мин
9 мин
265 052 р.
Цена за м2: 5 235 р.
Код объекта: 1208121
2 комнаты
49 м2
8 этаж из 9
Обновлено: 04.11.2025
265 052 р.
Цена за м2: 5 235 р.
Предложить свою цену

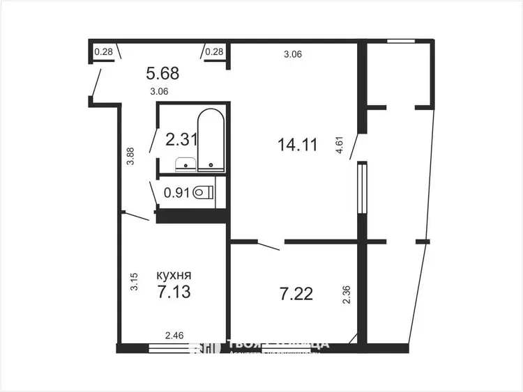
О квартире

Площадь
49 м2
общая
31 м2
жилая
7.1 м2
кухня
Санузел
раздельный
Балкон
Лоджия

О доме

Этаж
8 из 9
Материал стен
Панельный
Год постройки
1972

Описание

В продаже 2 комнатная квартира в центре города.
Квартира с отличной планировкой: две изолированные комнаты (17,01 и 13,86 кв.м.), кухня правильной формы 7,1 кв.м., раздельный санузел, вместительный коридор. Окна комнат выходят на противоположные стороны дома, что обеспечивают хорошее освещение и микроклимат. Площадь квартиры 49 кв.м. Квартира расположена на 8 этаже 9 этажного дома. Из окон открываются панорамные виды. Установлены окна ПВХ, новая входная металлическая дверь и счетчики учета воды.
Три квартиры в тамбуре, порядочные соседи.
Чистый и аккуратный подъезд. Дом после капитального ремонта.

В 2029 планируют открыть станцию метро "Комаровская".
Рядом находятся 3 детских сада, 2 гимназии №15,№30. (с эстетическим и лингвистическим уклоном) ; медицинские учреждения (поликлиника N34); , магазины, торговые центры «Европа», «Паркинг», «Силуэт»; через дорогу - «Комаровский» рынок.
Остановки общественного транспорта с различными маршрутами находятся в 2-х минутах ходьбы от дома. Идеальное транспортное сообщение со всеми районами города, до станции метро «Площадь Якуба Коласа» всего 10 минут пешком.
В шаговой доступности парк «Дружбы Народов»,
Чистая продажа!
Ключи в день сделки!
Гарантия безопасности сделки и полное юридическое сопровождение!
-Поможем продать вашу недвижимость для покупки этой.
Выгодное предложение как для себя, так и для сдачи в аренду.

 

ООО «ЭТАЖИ юнайтед» УНП: 193673318 Договор 2349/1 от 31.10.2025 Лицензия на оказание риэлтерских услуг №02240/460 МЮ РБ от 03.04.2023

ВероникаАгент
2 года на сайте
Условия сделки:продажа
Показать почту
Пожаловаться на объявление
Агентство недвижимости
ООО «ЭТАЖИ юнайтед»

Местоположение

г. Минск, ул. Кульман, 30
Советский район
Опубликовано: 04.11.2025

Возможно, вам будет интересно

Похожие объекты

На этой улицеВ этом домеВ этом районе
265 052 р.
Цена за м2: 6 264 р.
Советский район, ул. Кульман
Площадь Якуба Коласа
16 мин
9 мин
1-комн. кв
41.42
21.33
7.13 м2
7 этаж из 9
256 502 р.
Цена за м2: 6 074 р.
Советский район, ул. Кульман
Площадь Якуба Коласа
17 мин
9 мин
2-комн. кв
41.5
21.5
7.2 м2
8 этаж из 9
256 502 р.
Цена за м2: 6 074 р.
Советский район, ул. Кульман
Площадь Якуба Коласа
17 мин
9 мин
2-комн. кв
41.5
21.5
7.2 м2
8 этаж из 9
707 592 р.
Цена за м2: 11 655 р.
Советский район, ул. Красная
Площадь Якуба Коласа
4 мин
2-комн. кв
60.7
38.3
7.5 м2
6 этаж из 8
642 729 р.
Цена за м2: 4 661 р.
Советский район, ул. Беломорская
Академия наук
11 мин
6 мин
4-комн. кв
137.9
86.6
42.5 м2
6 этаж из 24
1 643 025 р.
Цена за м2: 12 484 р.
Советский район, ул. Максима Богдановича
Площадь Якуба Коласа
14 мин
8 мин
4-комн. кв
131.6
97.9
м2
5 этаж из 9