Подать БЕСПЛАТНО

Купить 2-комнатную квартиру в Минске, ул. Лейтенанта Кижеватова, д. 3/А

г. Минск, ул. Лейтенанта Кижеватова, 3/А
Показать на карте
Октябрьский район
Аэродромная
11 мин
6 мин
300 586 р.
Цена за м2: 5 715 р.
Код объекта: 1208586
2 комнаты
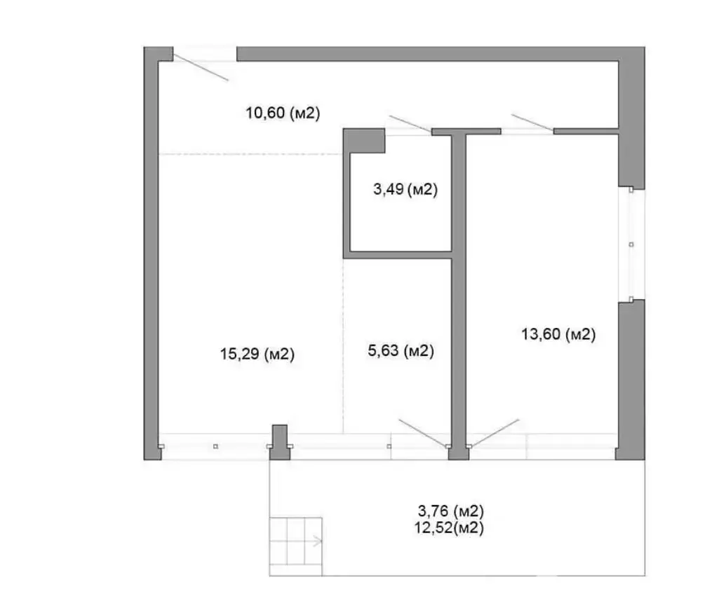
52.6 м2
1 этаж из 20
Обновлено: 05.11.2025
300 586 р.
Цена за м2: 5 715 р.
Предложить свою цену

О квартире

Площадь
52.6 м2
общая
43 м2
жилая
Балкон
Лоджия
Тип ремонта
Без отделки

О доме

Этаж
1 из 20
Год постройки
2020

Описание

Работаем напрямую от застройщика по партнерской программе (без комиссий)!!!

Цены и наличие на 03.11.2025г.

Продадим Вашу квартиру для покупки этой!

Стать владельцем квартиры в Minsk World можно:

1. За собственные средства

2.  Кредит от 6%. Кредит 13,75% от Беларусбанка.

3.  В рассрочку без справок и поручителей (только паспорт!)

     Все дома в комплексе каркасно-блочные.

    Скоростные бесшумные лифты импортного производства. Почти во всех домах есть панорамный лифт.

    Во всех домах просторные фойе с высокими потолками, гостевыми санузлами и стойками для консьержа.

    Высота потолков 2,7 м, а в некоторых домах на верхних этажах 3 м.

Инфраструктура комплекса «Минск Мир»:

   Комплекс «Минск Мир» расположен максимально близко к географическому центру Минска!

    Две станции метро: «Ковальская Слобода», «Аэродромная».

    Отличное транспортное сообщение! Быстро и легко можно добраться как до центра города, так и до МКАД. Широкие улицы между кварталами.

    В каждом квартале современные школа или сад с бассейнами и современным оснащением

    Спортивные площадки, вело парковки и благоустроенные дворы.

    Зеленая парковая зона, международный финансовый центр и крупнейший торговый центр Авиа Молл в центре комплекса в пешей доступности будет вся  инфраструктура Minsk World – взрослая и детская поликлиника, медицинский центр, кафе и магазины, парковки, спортивные залы и фитнес-центры.

Поможем продать Вашу квартиру. Подберем лучший вариант!

 

ООО «ЭТАЖИ юнайтед»

УНП: 193673318

Договор 53/1 от 05.01.2024

Лицензия на оказание риэлтерских услуг №02240/460 МЮ РБ от 03.04.2023 Совершая звонок, вы даете согласие на обработку персональных данных

Ознакомиться с политикой обработки персональных данных ООО «ЭТАЖИ юнайтед» можно здесь.

 

 

ИринаАгент
2 года на сайте
Условия сделки:продажа
Показать почту
Пожаловаться на объявление
Агентство недвижимости
ООО «ЭТАЖИ юнайтед»

Местоположение

г. Минск, ул. Лейтенанта Кижеватова, 3/А
Октябрьский район
Опубликовано: 05.11.2025

Возможно, вам будет интересно

Похожие объекты

На этой улицеВ этом домеВ этом районе
250 739 р.
Цена за м2: 4 869 р.
Октябрьский район, ул. Лейтенанта Кижеватова
Аэродромная
9 мин
5 мин
3-комн. кв
75.5
м2
2 этаж из 25
336 726 р.
Цена за м2: 5 647 р.
Октябрьский район, ул. Лейтенанта Кижеватова
Аэродромная
10 мин
6 мин
3-комн. кв
68.5
м2
1 этаж из 20
261 757 р.
Цена за м2: 5 715 р.
Октябрьский район, ул. Лейтенанта Кижеватова
Аэродромная
15 мин
8 мин
2-комн. кв
52.6
м2
1 этаж из 16
260 509 р.
Цена за м2: 6 154 р.
Октябрьский район, ул. Лейтенанта Кижеватова
Ковальская слобода
24 мин
13 мин
2-комн. кв
48.84
28.9
м2
1 этаж из 20
335 609 р.
Цена за м2: 5 965 р.
Октябрьский район, ул. Лейтенанта Кижеватова
Ковальская слобода
24 мин
13 мин
2-комн. кв
64.92
38.01
м2
1 этаж из 20
300 586 р.
Цена за м2: 5 715 р.
Октябрьский район, ул. Лейтенанта Кижеватова
Аэродромная
11 мин
6 мин
2-комн. кв
52.6
м2
1 этаж из 20
364 600 р.
Цена за м2: 5 410 р.
Октябрьский район, пр-т Мира
Аэродромная
7 мин
4 мин
4-комн. кв
69.4
м2
1 этаж из 25
353 400 р.
Цена за м2: 5 512 р.
Октябрьский район, пр-т Мира
Аэродромная
7 мин
4 мин
3-комн. кв
55.2
м2
1 этаж из 25
272 734 р.
Цена за м2: 5 478 р.
Октябрьский район, ул. Белградская
Аэродромная
8 мин
5 мин
4-комн. кв
69
м2
1 этаж из 25