Подать БЕСПЛАТНО

Купить 2-комнатную квартиру в Минске, ул. Лейтенанта Кижеватова, д. 3/а

г. Минск, ул. Лейтенанта Кижеватова, 3/а
Показать на карте
Октябрьский район
Аэродромная
11 мин
6 мин
376 441 р.
Цена за м2: 8 575 р.
Код объекта: 1213421
2 комнаты
43.9 м2
13 этаж из 20
Обновлено: 04.12.2025
376 441 р.
Цена за м2: 8 575 р.
Предложить свою цену

О квартире

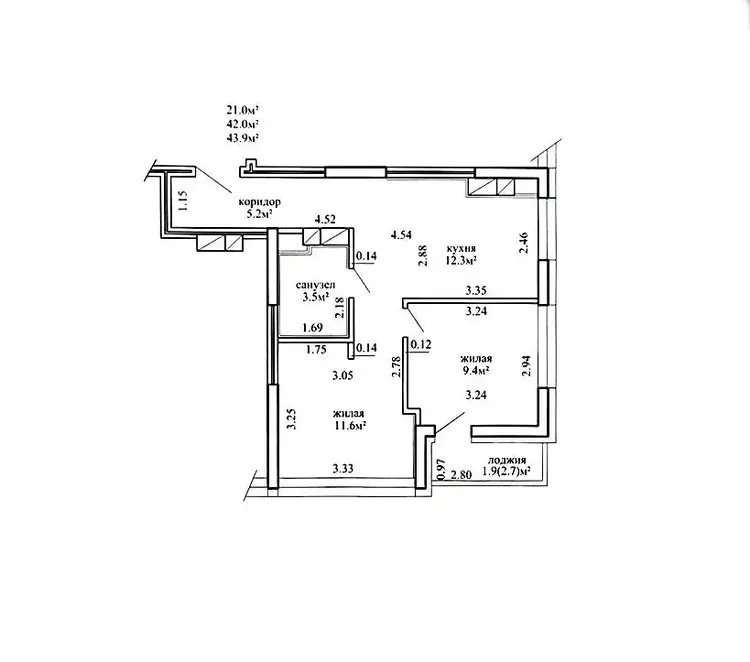
Площадь
43.9 м2
общая
21 м2
жилая
12.3 м2
кухня
Санузел
совмещенный
Балкон
Лоджия
Тип ремонта
Хороший

О доме

Этаж
13 из 20
Год постройки
2020

Описание

Продается уютная двухкомнатная с прекрасным видом из окон!

Площадь квартиры 43,9 м кв указана по СНБ, общая площадь квартиры 42,0 м кв, жилая 21,0 м кв., площадь кухни- 12,3 м кв. Вся планировка соответствует техническому паспорту!

Квартира находится в каркасно-блочном доме 2020г. постройки. 

В доме установлено видеонаблюдение.

В квартире выполнен качественный и современный ремонт, установлена вся необходимая бытовая техника и встроенная мебель, которая останется в подарок новому собственнику. В кухне и ванной уложена плитка производства Италия. На полу во всех комнатах – паркет. Все стены выровнены, на потолке – гипсокартон. Межкомнатные двери скрытого монтажа. Входная дверь металлическая, тяжелая.

Дом расположен в микрорайоне Минск-Мир, который является на сегодняшний день самым крупным развивающимся районом города Минска, с отличным транспортным сообщением благодаря новой ветке метро.

Обеспечим полное юридическое сопровождение и безопасность сделки. Поможем оформить кредит или продать вашу недвижимость для покупки этой квартиры. Звоните! Работаем без выходных!

Лицензия: №02240/362 от 31.07.2018, Министерство юстиции РБ

ОльгаАгент
7 лет на сайте
Условия сделки:продажа
Показать почту
Пожаловаться на объявление
Агентство недвижимости
Фаттория Плюс

Местоположение

г. Минск, ул. Лейтенанта Кижеватова, 3/а
Октябрьский район
Опубликовано: 04.12.2025

Возможно, вам будет интересно

Похожие объекты

На этой улицеВ этом домеВ этом районе
250 739 р.
Цена за м2: 4 869 р.
Октябрьский район, ул. Лейтенанта Кижеватова
Аэродромная
9 мин
5 мин
3-комн. кв
75.5
м2
2 этаж из 25
336 726 р.
Цена за м2: 5 647 р.
Октябрьский район, ул. Лейтенанта Кижеватова
Аэродромная
10 мин
6 мин
3-комн. кв
68.5
м2
1 этаж из 20
261 757 р.
Цена за м2: 5 715 р.
Октябрьский район, ул. Лейтенанта Кижеватова
Аэродромная
15 мин
8 мин
2-комн. кв
52.6
м2
1 этаж из 16
260 509 р.
Цена за м2: 6 154 р.
Октябрьский район, ул. Лейтенанта Кижеватова
Ковальская слобода
24 мин
13 мин
2-комн. кв
48.84
28.9
м2
1 этаж из 20
335 609 р.
Цена за м2: 5 965 р.
Октябрьский район, ул. Лейтенанта Кижеватова
Ковальская слобода
24 мин
13 мин
2-комн. кв
64.92
38.01
м2
1 этаж из 20
300 586 р.
Цена за м2: 5 715 р.
Октябрьский район, ул. Лейтенанта Кижеватова
Аэродромная
11 мин
6 мин
2-комн. кв
52.6
м2
1 этаж из 20
364 600 р.
Цена за м2: 5 410 р.
Октябрьский район, пр-т Мира
Аэродромная
7 мин
4 мин
4-комн. кв
69.4
м2
1 этаж из 25
353 400 р.
Цена за м2: 5 512 р.
Октябрьский район, пр-т Мира
Аэродромная
7 мин
4 мин
3-комн. кв
55.2
м2
1 этаж из 25
272 734 р.
Цена за м2: 5 478 р.
Октябрьский район, ул. Белградская
Аэродромная
8 мин
5 мин
4-комн. кв
69
м2
1 этаж из 25