Подать БЕСПЛАТНО

Продажа 2-комнатной квартиры в Минске, ул. Менделеева, д. 1

г. Минск, ул. Менделеева, 1
Показать на карте
Партизанский район
Тракторный завод
17 мин
9 мин
257 717 р.
Цена за м2: 5 073 р.
Код объекта: 1202572
2 комнаты
50.8 м2
3 этаж из 9
Обновлено: 07.10.2025
257 717 р.
Цена за м2: 5 073 р.
Предложить свою цену

О квартире

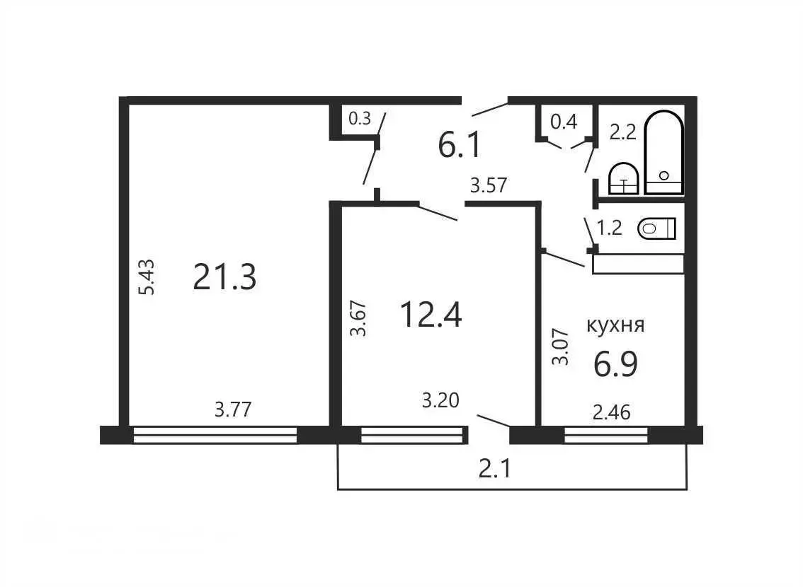
Площадь
50.8 м2
общая
33.7 м2
жилая
6.9 м2
кухня
Отдельных комнат
2 комнаты
Санузел
раздельный
Балкон
Лоджия
Тип ремонта
С отделкой

О доме

Этаж
3 из 9
Материал стен
Кирпичный
Год постройки
1969

Описание

Кирпичный дом после капитального ремонта находится в обжитом районе с устоявшейся развитой инфраструктурой. Квартира на третьем этаже девятиэтажного дома с ремонтом, готова к проживанию. Стеклопакеты. Двойной балкон. Полы-ламинат, плитка. Встроенная кухня. Шкаф-купе. Металлическая входная дверь.Инфраструктура соответствует всем требованиям комфортной жизни: множество магазинов, в том числе магазин Евроопт в самом доме. Парикмахерские, отделение связи. Из учреждений образования: школа № 133, гимназия №5 и три детских сада.    В непосредственной близости Степянская водная система - прекрасное место для прогулок и занятия спортом. Неподалёку от дома Ботанический сад, парк Челюскинцев, сквер Клумова и сквер Содружество. До станции метро Тракторный завод четыре остановки на общественном транспорте.Прямая продажа. Звоните и мы для вас организуем просмотр этой квартиры.      Смотреть подробнее ТОП-20 ДЕШЕВЫХ КВАРТИРБАЗА ПОКУПАТЕЛЕЙ – узнайте, кто готов купить вашу квартиру прямо сейчас!КАЛЬКУЛЯТОР СТОИМОСТИ ЖИЛЬЯ – онлайн- расчет стоимости вашей квартиры!ПЕРЕЕЗЖАЕМ В НОВОСТРОЙКУ-  программа  обмена старого жилья на новое. 2 сделки в 1 день!ПАРТНЕР-КРЕДИТ  сопровождение кредитования для покупки и обмена «под ключ»ВАШ ВАРИАНТ- проверка квартир перед покупкой и оформление сделки, если вы нашли объект самостоятельно. ООО "Твоя столица", УНП 101136973, лицензия №02240/15 от 17.02.05г.
Агент
10 лет на сайте
Показать почту
Пожаловаться на объявление
Агентство недвижимости
ТВОЯ СТОЛИЦА АГЕНТСТВО НЕДВИЖИМОСТИ

Местоположение

г. Минск, ул. Менделеева, 1
Партизанский район
Опубликовано: 07.10.2025

Возможно, вам будет интересно

Похожие объекты

На этой улицеВ этом домеВ этом районе
211 386 р.
Цена за м2: 5 486 р.
Партизанский район, ул. Менделеева
Тракторный завод
20 мин
11 мин
2-комн. кв
41.7
26.29
5.9 м2
2 этаж из 5
-3 р.
Цена за м2: 4 556 р.
Партизанский район, ул. Менделеева
Тракторный завод
19 мин
10 мин
3-комн. кв
63.5
43.5
7.1 м2
8 этаж из 9
228 760 р.
Цена за м2: 5 647 р.
Партизанский район, ул. Менделеева
Тракторный завод
19 мин
10 мин
2-комн. кв
40.5
26.79
6.11 м2
1 этаж из 5
254 822 р.
Цена за м2: 4 900 р.
Партизанский район, ул. Менделеева
Тракторный завод
17 мин
9 мин
2-комн. кв
52
29.8
6.9 м2
2 этаж из 9
173 452 р.
Цена за м2: 5 906 р.
Партизанский район, ул. Менделеева
Тракторный завод
17 мин
10 мин
1-комн. кв
32.8
16.1
7 м2
5 этаж из 9
306 944 р.
Цена за м2: 5 041 р.
Партизанский район, ул. Багратиона
3-комн. кв
66
40.7
10 м2
9 этаж из 9
317 079 р.
Цена за м2: 2 542 р.
Партизанский район, ул. Багратиона
3-комн. кв
124.6
64.1
23.7 м2
1 этаж из 1
304 049 р.
Цена за м2: 5 195 р.
Партизанский район, ул. Уральская
Тракторный завод
25 мин
14 мин
3-комн. кв
56.3
36.5
7.1 м2
1 этаж из 1