О квартире
Площадь
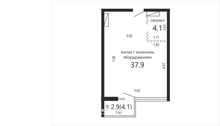
40.8 м2
общая
36.7 м2
жилая
1 м2
кухня
Отдельных комнат
1 комната
Санузел
совмещенный
Балкон
Балкон
Тип ремонта
С отделкой
О доме
Этаж
24 из 25
Материал стен
Каркасно-блочный
Год постройки
2021
Описание
Отличная квартира в современном и перспективном жилом комплексе Minsk World. Средиземноморский квартал, дом Ницца.Квартира расположена на высоком 24-ом этаже в каркасно-блочном доме 2021 года постройки. Прекрасный вид из окон.Большие панорамные окна в пол с усиленными двухкамерными стеклопакетами и замками. Планировка позволяет сделать евродвушку. Установлена входная металлическая дверь.В доме три бесшумных скоростных лифта OTIS. Оригинальная отделка подъезда и мест общего пользования. На первом этаже просторное лобби с местом для консьержа, комнатой матери и ребёнка и холлом для гостей.Дом расположен в восточной части комплекса Минск Мир. Буквально со двора дома, обеспечен выезд на улицу Н. Теслы. По этой улице проложен ряд маршрутов городского транспорта, которые связывают жилой комплекс с самым центром города и соседними районами.Территория квартала организована по принципу двор без машин, поэтому детей можно спокойно отпустить на игровую или спортивную площадку. Припарковать транспортное средство можно будет по периметру квартала. Поэтому в доме предусмотрено два выхода из подъезда – во внутренний двор и к парковке.Внутри квартала - детские площадки для разных возрастов детей. Возле дома много парковочных мест. Вблизи самый большой в стране торгово-развлекательный центр Авиа Молл.Большое количество общественного транспорта и маршрутных такси позволит без проблем добраться в любую точку города. Удобный выезд на второе транспортное кольцо Минска. Станция метро Аэродромная находится в нескольких минутах ходьбы.Прямая продажаОднокомнатная квартира по адресу ул. Н.Теслы, д. 24 (Октябрьский район)Материал стен: каркасно-блочныйГод постройки: 2021Этаж: 24/25, балкон застеклёнПлощадь по СНБ: 43.7 Общая площадь: 40.8 Жилая площадь: 36.7Высота потолка: 2.74Расширенные консультации по покупке, продаже и обмену вашей квартиры на этот объект можно получить в Центральном офисе «Твоя столица по адресу г. Минск, ул. Кирова, 8. Поможем выгодно продать вашу квартиру для покупки этойСмотреть подробнее ТОП-20 ДЕШЕВЫХ КВАРТИРБАЗА ПОКУПАТЕЛЕЙ – узнайте, кто готов купить вашу квартиру прямо сейчас!КАЛЬКУЛЯТОР СТОИМОСТИ ЖИЛЬЯ – онлайн- расчет стоимости вашей квартиры!ПЕРЕЕЗЖАЕМ В НОВОСТРОЙКУ- программа обмена старого жилья на новое. 2 сделки в 1 день!ПАРТНЕР-КРЕДИТ сопровождение кредитования для покупки и обмена «под ключ»ВАШ ВАРИАНТ- проверка квартир перед покупкой и оформление сделки, если вы нашли объект самостоятельно. ООО "Твоя столица", УНП 101136973, лицензия №02240/15 от 17.02.05г.
Агент
10 лет на сайте
Показать почту
Пожаловаться на объявление
Агентство недвижимости
ТВОЯ СТОЛИЦА АГЕНТСТВО НЕДВИЖИМОСТИ
УНП: 101136973 Лицензия: от 17.02.2005 № 47
Договор №: 26.09.2025 №909/13



























