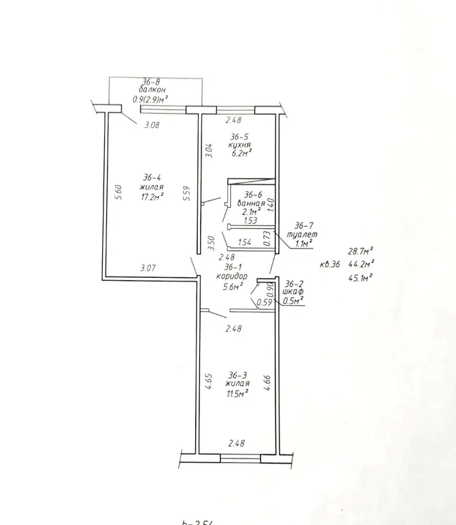
О квартире
Площадь
44 м2
общая
28.7 м2
жилая
6.2 м2
кухня
Отдельных комнат
2 комнаты
Санузел
Раздельный
Балкон
Балкон
Тип ремонта
С отделкой
О доме
Этаж
2 из 5
Материал стен
Панельный
Год постройки
1984
Описание
Собственник
19 дней на сайте
Показать почту
Пожаловаться на объявление





































