О квартире
Площадь
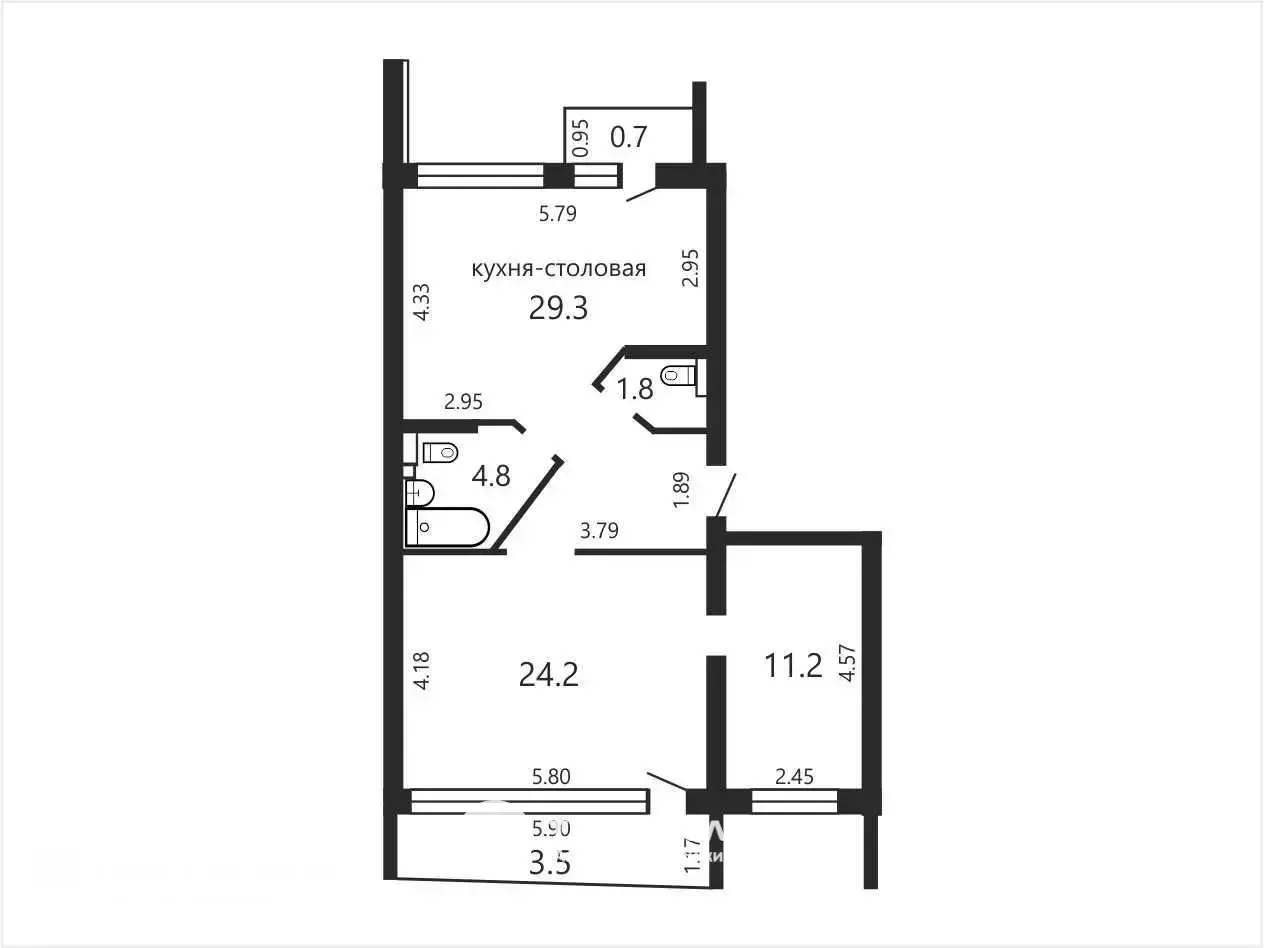
75.5 м2
общая
35.4 м2
жилая
29.3 м2
кухня
Отдельных комнат
1 комната
Санузел
раздельный
Балкон
Лоджия
Тип ремонта
С отделкой
О доме
Этаж
5 из 9
Материал стен
Кирпичный
Год постройки
1980
Описание
Квартира в центре Минска с дизайнерским ремонтомПросторная и светлая 2-комнатная квартира с современным дизайнерским ремонтом, расположенная в самом сердце столицы — идеальный вариант для комфортного проживания или выгодной инвестиции.Ремонт и отделкаВыполнен дизайнерский ремонт с использованием качественных материалов.Напольное покрытие: ламинат и керамическая плитка.Окна и лоджии — ПВХ-стеклопакеты.В кухне-гостиной — венецианская штукатурка на стенах.Санузел облицован современной плиткой.Установлены кондиционеры, встроенные шкафы и кухонный гарнитур.Планировка и характеристикиОбщая площадь по СНБ: 75,5 м²Общая площадь: 71,3 м²Жилая площадь: 35,4 м²Кухня-гостиная: 29,3 м²Высота потолков: 2,62 мЭтаж: 5 из 9Дом: кирпичный, 1980 года постройкиЛоджии: 2, застекленыДом и инфраструктураВ 2021 году проведён капитальный ремонт дома: заменены сантехнические коммуникации и электропроводка.Чистый и аккуратный подъезд.Живописные виды из окон.РасположениеЦентр Минска — в шаговой доступности:река Свислочьпарк им. ГорькогоБелгосциркскверы, бары, рестораныучебные заведения, магазинымедицинские и спортивные центрысалоны красоты, музеи, творческие мастерскиеОтличная транспортная доступность:рядом станции метро «Пролетарская» и «Первомайская»Прямая продажаИдеальное место для жизни, сдачи в аренду или инвестицийКупить или продать квартиру в Минске - легко и выгодно вместе с агентством недвижимости " Твоя столица"! Получите бесплатную консультацию покупке, продаже и обмену квартиры в Минске у опытных риэлтеров. Для Вас - актуальная база жилья с ценами, фото, планировками и услуги продажи квартир. Проконсультируем по алгоритму сделки, по необходимым документам!, Приходите на бесплатную консультацию риэлтера для покупки. Наш офис находится по адресу - Минск, Кирова, 8Смотреть подробнее Торг. Предложите свою цену. Последние поступления квартир. ТОП-20 ДЕШЕВЫХ КВАРТИРБАЗА ПОКУПАТЕЛЕЙ – узнайте, кто готов купить вашу квартиру прямо сейчас!КАЛЬКУЛЯТОР СТОИМОСТИ ЖИЛЬЯ – онлайн- расчет стоимости вашей квартиры!ПЕРЕЕЗЖАЕМ В НОВОСТРОЙКУ- программа обмена старого жилья на новое. 2 сделки в 1 день!ПАРТНЕР-КРЕДИТ сопровождение кредитования для покупки и обмена «под ключ»ВАШ ВАРИАНТ- проверка квартир перед покупкой и оформление сделки, если вы нашли объект самостоятельно. ООО "Твоя столица", УНП 101136973, лицензия №02240/15 от 17.02.05г.
Агент
10 лет на сайте
Показать почту
Пожаловаться на объявление
Агентство недвижимости
ТВОЯ СТОЛИЦА АГЕНТСТВО НЕДВИЖИМОСТИ
УНП: 101136973 Лицензия: от 17.02.2005 № 47
Договор №: 26.06.2025 №542/13










































