Подать БЕСПЛАТНО

ОБЪЕКТ В АРХИВЕ

Продажа 2-комнатной квартиры в Минске, ул. Семенова, д. 24

г. Минск, ул. Семенова, 24
Показать на карте
Ленинский район
Ковальская слобода
26 мин
14 мин
195 960 р.
Цена за м2: 4 579 р.
Код объекта: 1201917
2 комнаты
42.2 м2
4 этаж из 4
Обновлено: 02.10.2025
195 960 р.
Цена за м2: 4 579 р.
Предложить свою цену

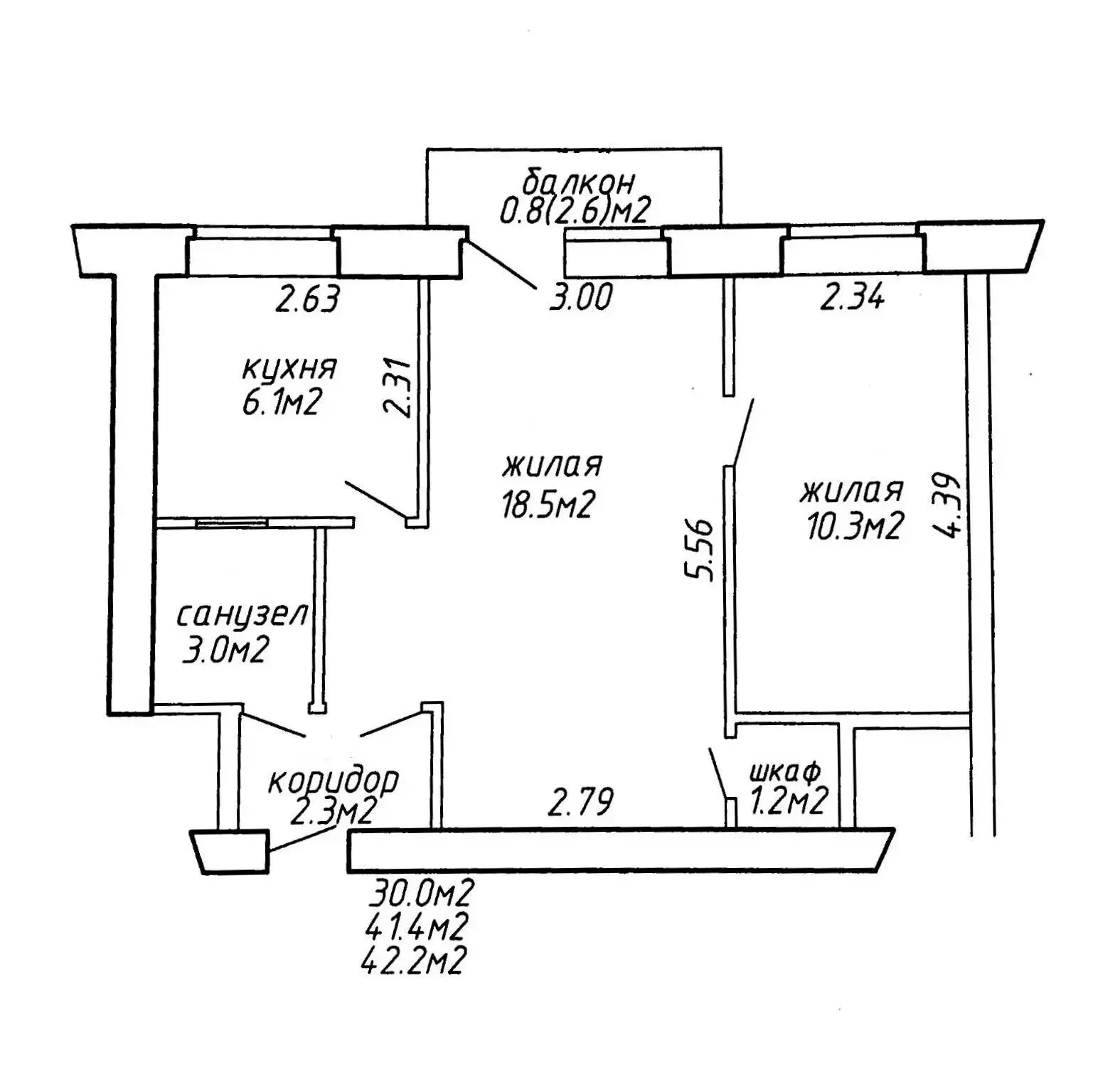
О квартире

Площадь
42.2 м2
общая
18.5 м2
жилая
6.1 м2
кухня
Санузел
совмещенный
Балкон
Балкон

О доме

Этаж
4 из 4
Материал стен
Кирпичный
Год постройки
1955
Год кап. ремонта
2000

Описание

Продажа двухкомнатной квартиры в зелёном районе города по хорошей цене

По ул. Семенова,24

Площадь 42,2/18,5/6,1

 

 

✓Квартира подготовлена для воплощения ваших дизайнерских замыслов без необходимости переделывать чужой ремонт. Вы можете создать интерьер своей мечты с нуля. 

 

✓Тишина и покой: Последний этаж в малоэтажном доме гарантирует уединенность и отсутствие шума от соседей сверху, создает ощущение уюта и камерности в отличие от шумных многоэтажек.

 

✓Высота потолков 2,66 м. Скатная крыша и техэтаж.

 

✓ Кирпичные стены  дома обеспечивают отличную тепло- и звукоизоляцию.

 

✓Идеальная локация: Зеленый, экологичный район с развитой инфраструктурой и прекрасной транспортной доступностью.

 

✓В  доме проведен капитальный ремонт. Вы можете не переживать по поводу предстоящего ремонта в ближайшие годы.

 

Всего 12 минут на общественном транспорте до центра города и около 5 минут на автомобиле.

 

Рядом с домом большое количество парковочных мест, где Вы всегда сможете припарковаться.

 

Через дом расположена большая детская площадка, которая не даст заскучать ни одному ребенку.

 

 Недалеко от дома расположен большой ТЦ "Корона-Сити". Разнообразие магазинов, ресторанов, активностей и многое другое сделают Вашу жизнь в этом районе комфортной и насыщенной.

 

Много зелени и водная система рядом гарантирует чистый воздух и приятные прогулки.

 

Квартира свободна, ключи передадим в день сделки.

 

Поможем с продажей вашей недвижимости для покупки этой.

 

Приезжайте на просмотр!

Гарантия безопасности сделки и полное юридическое сопровождение!

Еще не продали или хотите обменять Вашу недвижимость, мы Вам поможем! Подайте онлайн заявку на нашем сайте или обратитесь к нам по нашему телефону, чтобы получить более подробную информацию.

Частное унитарное предприятие «Дианэст», УНП 190124316, лицензия №02240/54  от  06.06.2005.  Договор № 107/3 от 01.10.2025г

Дианэстагент
9 лет на сайте
Условия сделки:продажа
Показать почту
Пожаловаться на объявление
Агентство недвижимости
Дианэст

Местоположение

г. Минск, ул. Семенова, 24
Ленинский район
Опубликовано: 02.10.2025

Возможно, вам будет интересно

Похожие объекты

На этой улицеВ этом районе
582 826 р.
Цена за м2: 5 153 р.
Ленинский район, ул. Семенова
Ковальская слобода
18 мин
10 мин
4-комн. кв
125.8
76.7
24.1 м2
5 этаж из 12
177 078 р.
Цена за м2: 5 861 р.
Ленинский район, ул. Семенова
1-комн. кв
30.5
16
6.9 м2
1 этаж из 9
356 832 р.
Цена за м2: 8 701 р.
Октябрьский район, ул. Братская
Ковальская слобода
12 мин
7 мин
2-комн. кв
41.6
36
м2
6 этаж из 22
361 991 р.
Цена за м2: 6 211 р.
Октябрьский район, ул. Николы Теслы
Аэродромная
8 мин
5 мин
3-комн. кв
56.8
м2
1 этаж из 25
451 868 р.
Цена за м2: 6 211 р.
Октябрьский район, ул. Николы Теслы
Аэродромная
8 мин
5 мин
4-комн. кв
71.2
м2
1 этаж из 25