Подать БЕСПЛАТНО

Продажа 2-комнатной квартиры в Минске, ул. Скрипникова, д. 19

г. Минск, ул. Скрипникова, 19
Показать на карте
Фрунзенский район
Каменная горка
26 мин
14 мин
326 079 р.
Цена за м2: 6 047 р.
Код объекта: 1206658
2 комнаты
52.3 м2
5 этаж из 9
Обновлено: 26.10.2025
326 079 р.
Цена за м2: 6 047 р.
Предложить свою цену

О квартире

Площадь
52.3 м2
общая
30.1 м2
жилая
9 м2
кухня
Отдельных комнат
2 комнаты
Санузел
раздельный
Балкон
Лоджия застеклена
Тип ремонта
С отделкой

О доме

Этаж
5 из 9
Материал стен
Блок-комнаты
Год постройки
2006

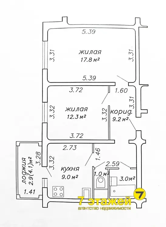
Описание

Продается просторная двухкомнатная квартира, удобная улучшенная планировка. Площадь квартиры по СНБ 55,2 кв.м., общая площадь 52,3 кв.м., жилые комнаты 17,8 кв.м. и 12,3 кв.м , большая кухня 9 кв.м с выходом на застекленную лоджию 4,1 кв.м., коридор 9,2 кв.м. Раздельный санузел 3,0 кв.м и 1 кв.м. - где выполнен новый современный ремонт. Год постройки 2006. Напольное покрытие в комнатах линолеум, на кухне - плитка, санузел - плитка. В квартире остаются встроенные шкафы в комнате и коридоре, встроенная кухонная мебель и плита, мебель в ванной комнате. Окна в квартире выходят во двор, светлая теплая солнечная квартира. Входная металлическая дверь, окна деревянные стеклопакеты. Тамбур на две квартиры, хорошие соседи. Комфортный 5 этаж из 9, красивый вид из окна. Просторный чистый подъезд. Во дворе всегда есть парковочные места. Отлично развита инфраструктура: в пешей доступности расположено все необходимое для жизни - Современные Ясли-сад № 45, 25 и Школа № 23 и др., магазины, супермаркеты Алми, Гиппо, Санта, поликлиника, кафе и др. На расстоянии 400 м находится парк Дививелка, пруд Мазурова и Семейный сквер - отличное место для прогулок и отдыха. До метро Каменная горка - 7 мин на авто и 16 мин на общественном транспорте (до остановки 1 мин), удобный выезд на МКАД. Поможем продать вашу недвижимость для покупки этой квартиры. Консультации и помощь в кредитовании. Полное юридическое сопровождение сделки.
агентАгент
2 года на сайте
Условия сделки:Чистая продажа
Показать почту
Пожаловаться на объявление
Агентство недвижимости
«Агентство недвижимости 7 этажей»

Местоположение

г. Минск, ул. Скрипникова, 19
Фрунзенский район
Опубликовано: 26.10.2025

Возможно, вам будет интересно

Похожие объекты

На этой улицеВ этом районе
515 088 р.
Цена за м2: 4 307 р.
Фрунзенский район, ул. Скрипникова
Каменная горка
24 мин
13 мин
4-комн. кв
118.4
112.3
м2
4 этаж из 9
281 009 р.
Цена за м2: 6 259 р.
Фрунзенский район, ул. Скрипникова
Каменная горка
12 мин
7 мин
1-комн. кв
44.9
17.9
9.2 м2
11 этаж из 19
343 392 р.
Цена за м2: 5 028 р.
Фрунзенский район, ул. Скрипникова
Каменная горка
17 мин
9 мин
3-комн. кв
68.3
40.6
11.3 м2
6 этаж из 9
400 624 р.
Цена за м2: 4 185 р.
Фрунзенский район, ул. Пимена Панченко
3-комн. кв
92.3
48.8
12.3 м2
4 этаж из 9
386 316 р.
Цена за м2: 3 747 р.
Фрунзенский район, ул. Чайлытко
4-комн. кв
99.2
64
10.5 м2
6 этаж из 9
486 186 р.
Цена за м2: 4 239 р.
Фрунзенский район, ул. Максима Горецкого
Каменная горка
24 мин
13 мин
4-комн. кв
114.7
71.3
10.6 м2
9 этаж из 10