О квартире
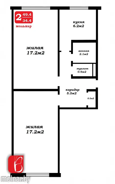
Площадь
49.4 м2
общая
34.4 м2
жилая
6.2 м2
кухня
Отдельных комнат
2 комнаты
Санузел
раздельный
Балкон
Нет
Тип ремонта
С отделкой
О доме
Этаж
1 из 5
Материал стен
Панельный
Год постройки
1967
Описание
Представляем вашему вниманию двухкомнатную квартиру по адресу Уборевича, 160. Это предложение для тех, кто ценит практичность, ищет возможности для реализации собственных дизайнерских идей и хочет получить максимум от своего нового жилья.
О квартире: Ключевые преимущества
• Высокий первый этаж: Обеспечивает удобство доступа и избавляет от необходимости пользоваться лифтом. Это практичное решение для повседневной жизни.
• Окна на обе стороны дома: Данная планировка гарантирует хорошее естественное освещение в течение всего дня и создает ощущение простора. Есть возможность организовать эффективное проветривание.
• Функциональная планировка: Раздельные комнаты и продуманное расположение помещений создают комфортную основу для жизни. Это пространство, которое легко адаптировать под ваши нужды, будь то создание уютной гостиной, рабочего кабинета или комфортной спальни.
• Наличие газа: Обеспечивает удобство и экономичность при приготовлении пищи.
• Состояние и готовность к ремонту: В квартире выполнены важные работы: заменены трубы в санузлах, что является гарантом спокойствия на долгие годы. Напольное покрытие – линолеум на основе ДСП и досок, представляющее собой надежную основу для будущих ремонтных работ.
• Дополнительное пространство: Подвал (6 кв.м.) Квартире принадлежит собственное изолированное помещение в подвале, что является отличным решением для хранения вещей, организации мастерской или создания дополнительного функционального пространства.
Расположение: Всё необходимое рядом
• Близость к Чижовскому водохранилищу: Всего в нескольких минутах ходьбы находится живописное водохранилище. Это прекрасное место для прогулок, отдыха на природе и активного времяпрепровождения.
• Инвестиционный потенциал: Недвижимость в районах с развитой рекреационной инфраструктурой пользуется стабильным спросом. Квартира на Уборевича, 160 может стать выгодным вложением как для собственного проживания, так и для последующей сдачи в аренду.
• Развитая инфраструктура:
• Образовательные учреждения: Школы и детские сады расположены в непосредственной близости.
• Торговые объекты: Включая крупный гипермаркет Green, обеспечивающий удобство покупок.
• Транспортная доступность: Легкий выезд на МКАД для быстрого доступа к различным районам города.
Ваша возможность создать идеальное пространство!
Эта квартира – это чистый лист для воплощения ваших идей. Вы получаете не просто квадратные метры, а основу, которую сможете преобразовать в дом своей мечты, вложив в нее свой вкус и предпочтения.
Основные преимущества:
• Удачное расположение: Сочетание природной зоны и развитой городской инфраструктуры.
• Практичная планировка: Возможности для трансформации и адаптации под личные нужды.
• Высокий инвестиционный потенциал.
• Простор для реализации ремонтных решений.
Поможем вам с продажей вашей недвижимости!
Предлагаем полный спектр услуг:
* Профессиональная оценка и эффективная реклама вашей недвижимости.
* Помощь в получении кредита на выгодных условиях.
* Полное юридическое сопровождение сделки.
* Помощь в использовании материнского капитала, жилищных чеков и других программ.
Ждем вас на бесплатной консультации в нашем офисе по адресу: проспект Победителей, 7а!
Не упустите шанс приобрести эту прекрасную квартиру для вашей семьи! Звоните прямо сейчас!
УП "Мольнар", УНП 101107535, лицензия №02240/11 от 17.02.2005г., договор на оказание риэлтерских услуг №555/1 от 04.11.2025 г.
О квартире: Ключевые преимущества
• Высокий первый этаж: Обеспечивает удобство доступа и избавляет от необходимости пользоваться лифтом. Это практичное решение для повседневной жизни.
• Окна на обе стороны дома: Данная планировка гарантирует хорошее естественное освещение в течение всего дня и создает ощущение простора. Есть возможность организовать эффективное проветривание.
• Функциональная планировка: Раздельные комнаты и продуманное расположение помещений создают комфортную основу для жизни. Это пространство, которое легко адаптировать под ваши нужды, будь то создание уютной гостиной, рабочего кабинета или комфортной спальни.
• Наличие газа: Обеспечивает удобство и экономичность при приготовлении пищи.
• Состояние и готовность к ремонту: В квартире выполнены важные работы: заменены трубы в санузлах, что является гарантом спокойствия на долгие годы. Напольное покрытие – линолеум на основе ДСП и досок, представляющее собой надежную основу для будущих ремонтных работ.
• Дополнительное пространство: Подвал (6 кв.м.) Квартире принадлежит собственное изолированное помещение в подвале, что является отличным решением для хранения вещей, организации мастерской или создания дополнительного функционального пространства.
Расположение: Всё необходимое рядом
• Близость к Чижовскому водохранилищу: Всего в нескольких минутах ходьбы находится живописное водохранилище. Это прекрасное место для прогулок, отдыха на природе и активного времяпрепровождения.
• Инвестиционный потенциал: Недвижимость в районах с развитой рекреационной инфраструктурой пользуется стабильным спросом. Квартира на Уборевича, 160 может стать выгодным вложением как для собственного проживания, так и для последующей сдачи в аренду.
• Развитая инфраструктура:
• Образовательные учреждения: Школы и детские сады расположены в непосредственной близости.
• Торговые объекты: Включая крупный гипермаркет Green, обеспечивающий удобство покупок.
• Транспортная доступность: Легкий выезд на МКАД для быстрого доступа к различным районам города.
Ваша возможность создать идеальное пространство!
Эта квартира – это чистый лист для воплощения ваших идей. Вы получаете не просто квадратные метры, а основу, которую сможете преобразовать в дом своей мечты, вложив в нее свой вкус и предпочтения.
Основные преимущества:
• Удачное расположение: Сочетание природной зоны и развитой городской инфраструктуры.
• Практичная планировка: Возможности для трансформации и адаптации под личные нужды.
• Высокий инвестиционный потенциал.
• Простор для реализации ремонтных решений.
Поможем вам с продажей вашей недвижимости!
Предлагаем полный спектр услуг:
* Профессиональная оценка и эффективная реклама вашей недвижимости.
* Помощь в получении кредита на выгодных условиях.
* Полное юридическое сопровождение сделки.
* Помощь в использовании материнского капитала, жилищных чеков и других программ.
Ждем вас на бесплатной консультации в нашем офисе по адресу: проспект Победителей, 7а!
Не упустите шанс приобрести эту прекрасную квартиру для вашей семьи! Звоните прямо сейчас!
УП "Мольнар", УНП 101107535, лицензия №02240/11 от 17.02.2005г., договор на оказание риэлтерских услуг №555/1 от 04.11.2025 г.
Агент
9 лет на сайте
Показать почту
Пожаловаться на объявление
Агентство недвижимости
Мольнар
УНП: 190730024 Лицензия: от 17.02.2005 № 43
Договор №: №555/1 от 04.11.2025







































