Подать БЕСПЛАТНО

Купить 2-комнатную квартиру в Минске, ул. Воронянского, д. 52

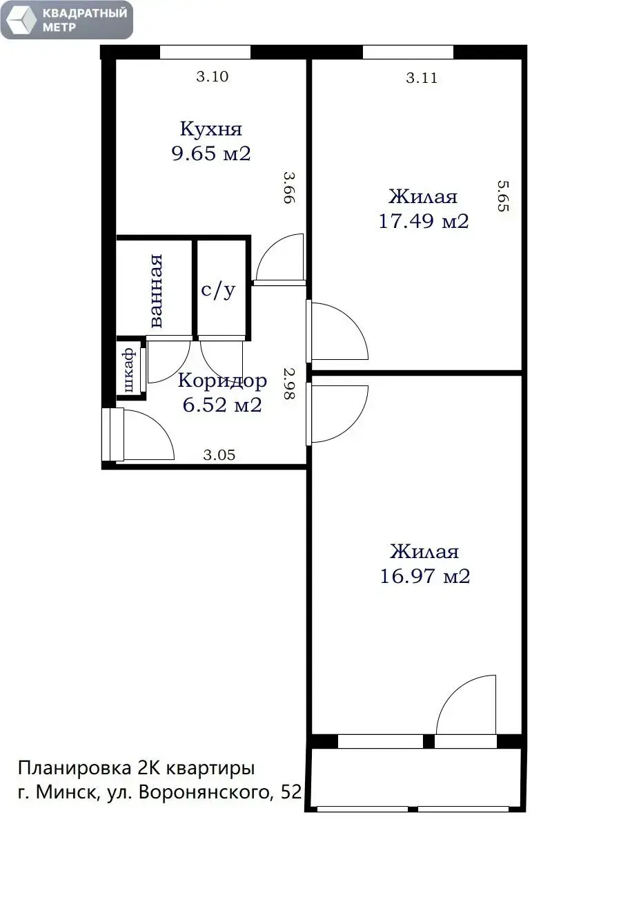
г. Минск, ул. Воронянского, 52
Показать на карте
Октябрьский район
Ковальская слобода
7 мин
4 мин
285 226 р.
Цена за м2: 5 181 р.
Код объекта: 1192137
2 комнаты
54.49 м2
2 этаж из 9
Обновлено: 20.08.2025
285 226 р.
Цена за м2: 5 181 р.
Предложить свою цену

О квартире

Площадь
54.49 м2
общая
34.46 м2
жилая
9.65 м2
кухня
Санузел
раздельный
Балкон
Лоджия

О доме

Этаж
2 из 9
Материал стен
Панельный
Год постройки
1973
Год кап. ремонта
2022

Описание

Рациональная планировка, площадь 54,49 м. кв. Квартира расположена на 2 этаже из 9.  Жилая площадь  -  34,46 м. кв.  Комната 17,49 м. кв. и 16,97 м. кв.  Площадь кухни 9,65 м. кв.,   прихожая – 6,52 м. кв. Достаточно места для дружной семьи.

В прихожей установлена качественная металлическая дверь. Выделено место для оборудования встроенного шкафа. Из жилой комнаты выход на застекленную лоджию,  которую можно использовать как дополнительную зону отдыха и релакса. Комнаты расположены на разные стороны дома, а окна выходят на зеленую парковую территорию Сквера Сеножаны прямо перед вашим окном. Спортивный комплекс БГПУ – для вашего активного отдыха.

Квартира готова для инвестиций! Дом после капитального ремонта. Выполнена замена труб, стояков и счетчиков. Раздельный санузел. В ванной комнате – новая плитка. Выполнены все электротехнические работы. Установлены новые автоматы и розетки с выключателями.

Интеллигентные соседи! Тамбур – на три квартиры!

Локация данного дома – удивительная. С одной стороны, дом в центре района и при этом достаточно удален от шума и пыли города. А с другой стороны хорошее транспортное сообщение. Станция метро Ковальская Слобода всего в 500 метрах от дома. До ближайшей остановки общественного транспорта всего 120 метров. Хорошее транспортное сообщение, которое поможет вам добраться до любой точки города. Автомобилисты всегда смогут найти свободное парковочное место на парковке.

В шаговой доступности два детских сада, школа. А еще поликлиника, много магазинов, банк, аптека, Это отличное предложение для тех, кто ценит уют и комфорт жизни в городе, близость метро и развитую инфраструктуру. Шикарная локация – подходит для инвестиций!

Мебель остается по договоренности.

Чистая продажа! Разумный торг приветствуется!

ОльгаАгент
9 лет на сайте
Условия сделки:продажа
Показать почту
Пожаловаться на объявление
Агентство недвижимости
Квадратный метр

Местоположение

г. Минск, ул. Воронянского, 52
Октябрьский район
Опубликовано: 20.08.2025

Возможно, вам будет интересно

Похожие объекты

На этой улицеВ этом домеВ этом районе
361 673 р.
Цена за м2: 7 792 р.
Октябрьский район, ул. Воронянского
Ковальская слобода
4 мин
1-комн. кв
46.4
34.7
м2
12 этаж из 15
376 441 р.
Цена за м2: 4 861 р.
Октябрьский район, ул. Воронянского
Ковальская слобода
4 мин
3-комн. кв
83.4
54.8
12 м2
13 этаж из 13
448 834 р.
Цена за м2: 4 603 р.
Октябрьский район, ул. Воронянского
Институт Культуры
11 мин
6 мин
3-комн. кв
94.3
54.9
14.2 м2
7 этаж из 11
275 092 р.
Цена за м2: 4 783 р.
Октябрьский район, ул. Воронянского
Ковальская слобода
6 мин
2-комн. кв
55.7
33.9
9.6 м2
1 этаж из 9
608 097 р.
Цена за м2: 5 592 р.
Октябрьский район, ул. Быховская
Ковальская слобода
6 мин
3-комн. кв
119.1
59.4
14.7 м2
6 этаж из 10
361 673 р.
Цена за м2: 7 792 р.
Октябрьский район, ул. Воронянского
Ковальская слобода
4 мин
1-комн. кв
46.4
34.7
м2
12 этаж из 15
390 630 р.
Цена за м2: 6 750 р.
Октябрьский район, ул. Быховская
Ковальская слобода
5 мин
1-комн. кв
57.7
38.1
10 м2
3 этаж из 20