Подать БЕСПЛАТНО

ОБЪЕКТ В АРХИВЕ

Продажа 2-комнатной квартиры в Минске, ул. Захарова, д. 72

г. Минск, ул. Захарова, 72
Показать на карте
Партизанский район
Пролетарская
9 мин
5 мин
281 164 р.
Цена за м2: 5 646 р.
Код объекта: 1235931
2 комнаты
49.8 м2
1 этаж из 9
Обновлено: 28.03.2026
281 164 р.
Цена за м2: 5 646 р.
Предложить свою цену

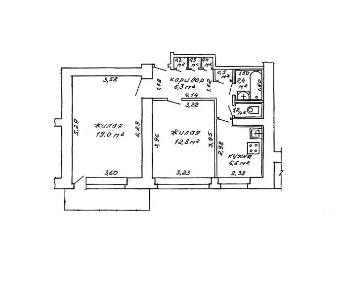
О квартире

Площадь
49.8 м2
общая
31.8 м2
жилая
6.6 м2
кухня
Санузел
раздельный
Балкон
Балкон

О доме

Этаж
1 из 9
Материал стен
Кирпичный
Год постройки
1971

Описание

Двухкомнатная квартира с идеальной планировкой в тихом центре столицы!

В пешей доступности – парк Горького и набережная реки Свислочи, Метро «Пролетарская», метро «Площадь Победы».

Квартира находится в 9-ти этажном кирпичном жилом доме на «очень высоком» 1-м этаже этаже.

Дом после капитального ремонта. Рядом Посольство Республики Литва, с  видеоконтролем прилегающей территории с захватом стороны дома, на которую выходят окна квартиры. Первый этаж на уровне второго.

Общая площадь квартиры по СНБ – 52.34 кв.м., общая площадь – 49.8 кв.м., жилая площадь – 31,8 кв.м., высота потолков - 2.54 м.

Санузел раздельный. На этаже три квартиры, подъезд аккуратный, жильцы уважаемые и доброжелательные.

Стеклопакеты, лоджия застеклена, пол паркет , чистая продажа.

В пешей доступности много магазинов, детские сады, школы, банки, медцентры, кафе/рестораны, кинотеатры/музеи. Парк Горького, зеленая зона Слепянской водной системы – отличное место для прогулок с семьей или пробежек любителям активного образа жизни!

Ещё одно важное преимущество: 10 минут пешком до ст.м. «Пролетарская», 15 минут - до «Площади Победы», вблизи дома остановки общественного транспорта (автобус, троллейбус). В любую точку города можно добраться за максимально короткое время!

Чистая продажа! Показы в удобное для Вас время!

Не упустите возможность стать частью такого уникального места города Минска!

При этом: недвижимость в самом центре Минска – это хорошая инвестиция в будущее!!!  Гарантируем быструю и комфортную сделку.

Поможем продать вашу недвижимость для покупки нашей!

Лицензия: №02240/362 от 31.07.2018, Министерство юстиции РБ

ИринаАгент
7 лет на сайте
Условия сделки:продажа
Показать почту
Пожаловаться на объявление
Агентство недвижимости
Фаттория Плюс

Местоположение

г. Минск, ул. Захарова, 72
Партизанский район
Опубликовано: 28.03.2026

Возможно, вам будет интересно

Похожие объекты

На этой улицеВ этом домеВ этом районе
1 001 136 р.
Цена за м2: 7 325 р.
Партизанский район, ул. Захарова
Площадь Победы
12 мин
7 мин
4-комн. кв
123.2
64.5
30.7 м2
2 этаж из 14
2 115 075 р.
Цена за м2: 13 604 р.
Партизанский район, ул. Захарова
Площадь Победы
7 мин
4 мин
5-комн. кв
176.2
132.4
40.4 м2
3 этаж из 4
676 542 р.
Цена за м2: 11 819 р.
Партизанский район, ул. Захарова
Площадь Победы
8 мин
5 мин
2-комн. кв
76.1
57.3
10.8 м2
5 этаж из 5
281 164 р.
Цена за м2: 5 372 р.
Партизанский район, ул. Захарова
Пролетарская
9 мин
5 мин
2-комн. кв
52.34
31.8
6.6 м2
1 этаж из 9
335 592 р.
Цена за м2: 5 669 р.
Партизанский район, ул. Захарова
Пролетарская
9 мин
5 мин
3-комн. кв
59.2
40.2
6.8 м2
1 этаж из 9
1 001 136 р.
Цена за м2: 7 325 р.
Партизанский район, ул. Захарова
Площадь Победы
12 мин
7 мин
4-комн. кв
123.2
64.5
30.7 м2
2 этаж из 14
2 115 075 р.
Цена за м2: 13 604 р.
Партизанский район, ул. Захарова
Площадь Победы
7 мин
4 мин
5-комн. кв
176.2
132.4
40.4 м2
3 этаж из 4
789 628 р.
Цена за м2: 7 327 р.
Партизанский район, ул. Азгура
Площадь Победы
13 мин
7 мин
4-комн. кв
102.9
59.1
13.3 м2
9 этаж из 9