О квартире
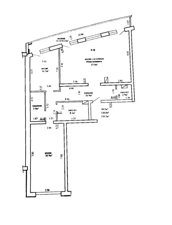
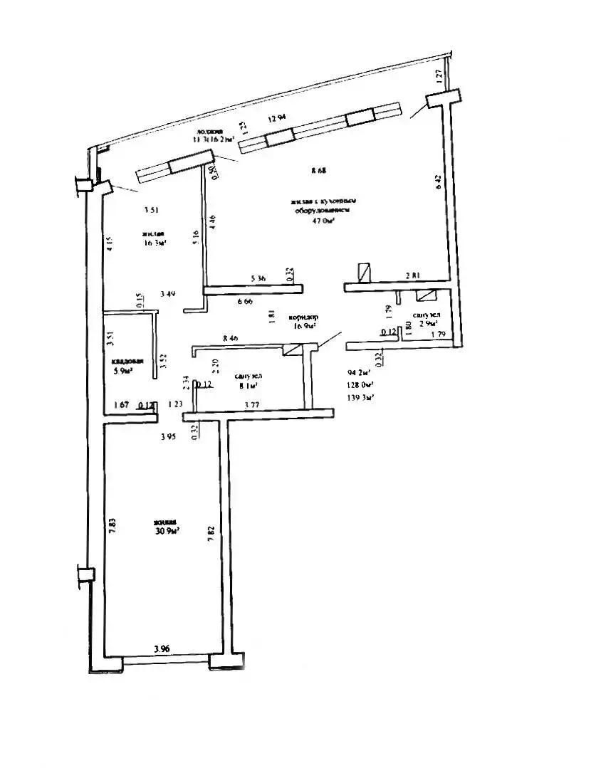
Площадь
139.3 м2
общая
94.2 м2
жилая
Санузел
2 сан.узла
Балкон
Лоджия
О доме
Этаж
13 из 37
Год постройки
2018
Описание
Елена — Агент
7 лет на сайте
Условия сделки:продажа
Показать почту
Пожаловаться на объявление
Агентство недвижимости
Фаттория Плюс
УНП: 193074485 Лицензия: от 31.07.2018 № 159
Договор №: 1671/1 от 2025-11-22














































