О квартире
О доме
Описание
Просторная видовая 3-комнатная квартира с дизайнерским ремонтом в престижном районе Лебяжий!
Мы рады предложить вам редкий шедевр - уникальную квартиру премиум-класса в одном из самых востребованных районов Минска, на проспекте Победителей, 121. Этот уютный уголок расположен на удобном втором этаже современного 5-этажного каркасно-блочного дома, построенного в 2016 году. Здесь вы найдёте идеальные условия для комфортной жизни и отдыха.
Краткие характеристики квартиры:
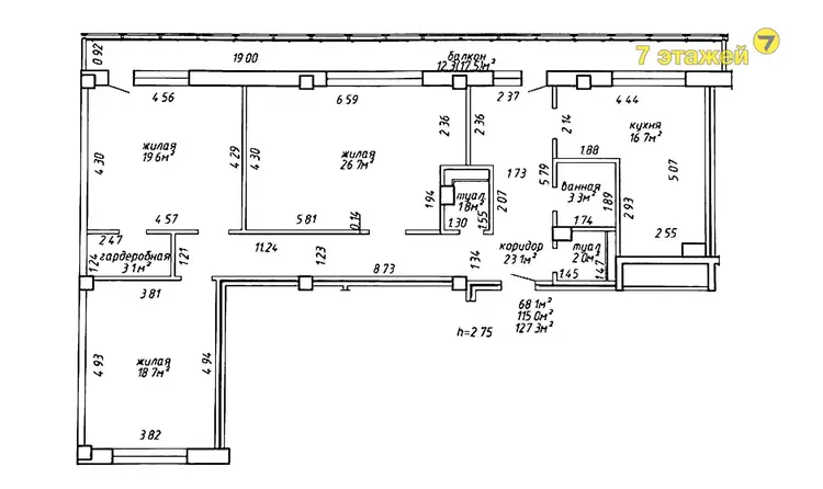
Общая площадь: 126,3 кв.м. (СНБ).
Ремонт: Высококачественная отделка с использованием лучших импортных материалов, включая элегантный ламинат и керамогранит с подогревом на кухне и в санузлах. Декоративная штукатурка на стенах и стильные натяжные потолки с эффектным освещением создают неповторимую атмосферу.
Кухня: Индивидуально спроектированное пространство с встроенной техникой премиум-брендов, таких как BOSCH, MIELE, SHARP, AEG. Все оборудование остаётся при продаже!
Интерьер: Просторная гостиная, объединённая с обеденной зоной и кухней, две уютные спальни, два балкона (один из которых с постирочной) и две гардеробные. Вся обстановка создаёт идеальные условия для вашего комфорта.
Мебель и техника: Квартира предлагается с полной отделкой и мебелью, что делает её идеальным вариантом для тех, кто хочет без лишних хлопот сразу заехать и жить.
Преимущества местоположения:
Живописный район Лебяжий не только радует потрясающими видами, но и обладает отличной инфраструктурой. В шаговой доступности находятся:
Водохранилище «Дрозды» - идеальное место для отдыха на природе.
«Олимпик-Арена» и «Минск-Арена» - для любителей спорта и мероприятий.
Современные фитнес-центры и аквапарк «Лебяжий» - поддержите активный образ жизни.
ТРЦ «Arena-City», а также детские сады и школы для ваших детей.
Уютные велодорожки протяжённостью 27 км для тех, кто ценит активное времяпрепровождение.
Готовы обсудить возможность торга с реальными покупателями!
Дополнительные услуги:
Команда профессионалов готова помочь Вам с продажей вашей недвижимости.
Полное юридическое сопровождение сделки для вашей уверенности.
Не упустите шанс увидеть эту удивительную квартиру своими глазами! Позвоните нам, чтобы согласовать время для просмотра. Мы с радостью ответим на все ваши вопросы. Ваш новый дом уже ждет вас!
ООО «Жилой проспект»
УНП: 193890816
Договор 65/1 от 13.10.2025
Лицензия Министерства юстиции Республики Беларусь № 02240/518 от 15.08.2025г.




















































