Подать БЕСПЛАТНО

Продажа 3-комнатной квартиры в Минске, ул. Янковского, д. 4

г. Минск, ул. Янковского, 4
Показать на карте
Фрунзенский район
371 722 р.
Цена за м2: 4 828 р.
Код объекта: 1226866
3 комнаты
77 м2
2 этаж из 9
Обновлено: 03.02.2026
371 722 р.
Цена за м2: 4 828 р.
Предложить свою цену

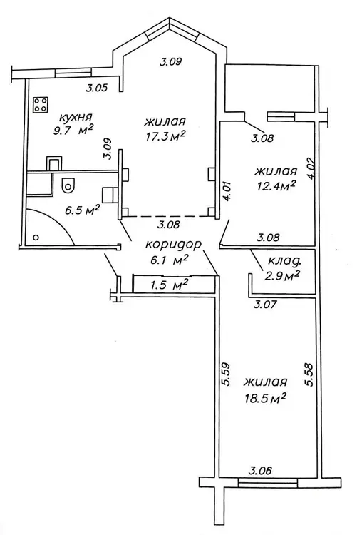
О квартире

Площадь
77 м2
общая
51 м2
жилая
10 м2
кухня
Санузел
раздельный
Балкон
Лоджия
Тип ремонта
Хороший

О доме

Этаж
2 из 9
Материал стен
Панельный
Год постройки
2003

Описание

Продажа просторной 3-комнатной квартиры во Фрунзенском районе

По улице Янковского, 4

Площадь 77/51/10

Светлая квартира с хорошим ремонтом расположена на 2-м этаже 9-этажного дома. В кухонной зоне установлен кухонный гарнитур, выполненный на заказ со всей необходимой техникой. На полах дубовый паркет, потолки комбинированные с зонированным освещением, межкомнатные двери из массива с настоящими витражами. В комнате установлен кондиционер, дающий прохладу летом.

Ванная кухня облицована итальянской плиткой, установлена импортная сантехника и гидромассажная ванна. Накопительный бойлер Ariston всегда обеспечит горячей водой.

В квартире есть вместительная гардеробная, где можно организовать систему хранения. Большая лоджия застеклена и обшита вагонкой.

Развитая инфраструктура: в шаговой доступности детсады, школы, сетевые магазины, лесопарк «Медвежино», церковь, аптеки и банковские отделения. Хорошее транспортное сообщение: в 10 минутах на общественном транспорте от станций метро «Петровщина» и «Каменная Горка». Быстрый выезд на МКАД.

Поможем выгодно продать вашу недвижимость для покупки данного объекта.

Бесплатно проконсультируем, окажем профессиональную помощь в сложных вопросах с недвижимостью, обеспечим юридическое сопровождение сделки и безопасность взаиморасчетов.
Частное унитарное предприятие «Дианэст», УНП 190124316,  лицензия №02240/54  от  06.06.2005.  Договор №22/4 от 02.02.2026

ДианэстАгент
9 лет на сайте
Условия сделки:продажа
Показать почту
Пожаловаться на объявление
Агентство недвижимости
Дианэст

Местоположение

г. Минск, ул. Янковского, 4
Фрунзенский район
Опубликовано: 03.02.2026

Возможно, вам будет интересно

Похожие объекты

На этой улицеВ этом домеВ этом районе
377 445 р.
Цена за м2: 6 349 р.
Фрунзенский район, ул. Янковского
2-комн. кв
62.6
28.4
12.6 м2
2 этаж из 20
428 954 р.
Цена за м2: 5 783 р.
Фрунзенский район, ул. Янковского
3-комн. кв
76.7
39.9
10.5 м2
9 этаж из 10
369 118 р.
Цена за м2: 4 819 р.
Фрунзенский район, ул. Янковского
Петровщина
47 мин
25 мин
3-комн. кв
76.6
46.6
9.4 м2
9 этаж из 9
369 118 р.
Цена за м2: 4 819 р.
Фрунзенский район, ул. Янковского
Петровщина
47 мин
25 мин
3-комн. кв
76.6
46.6
9.4 м2
9 этаж из 9
400 624 р.
Цена за м2: 4 185 р.
Фрунзенский район, ул. Пимена Панченко
3-комн. кв
92.3
48.8
12.3 м2
4 этаж из 9
386 316 р.
Цена за м2: 3 747 р.
Фрунзенский район, ул. Чайлытко
4-комн. кв
99.2
64
10.5 м2
6 этаж из 9
486 186 р.
Цена за м2: 4 239 р.
Фрунзенский район, ул. Максима Горецкого
Каменная горка
24 мин
13 мин
4-комн. кв
114.7
71.3
10.6 м2
9 этаж из 10