О квартире
Площадь
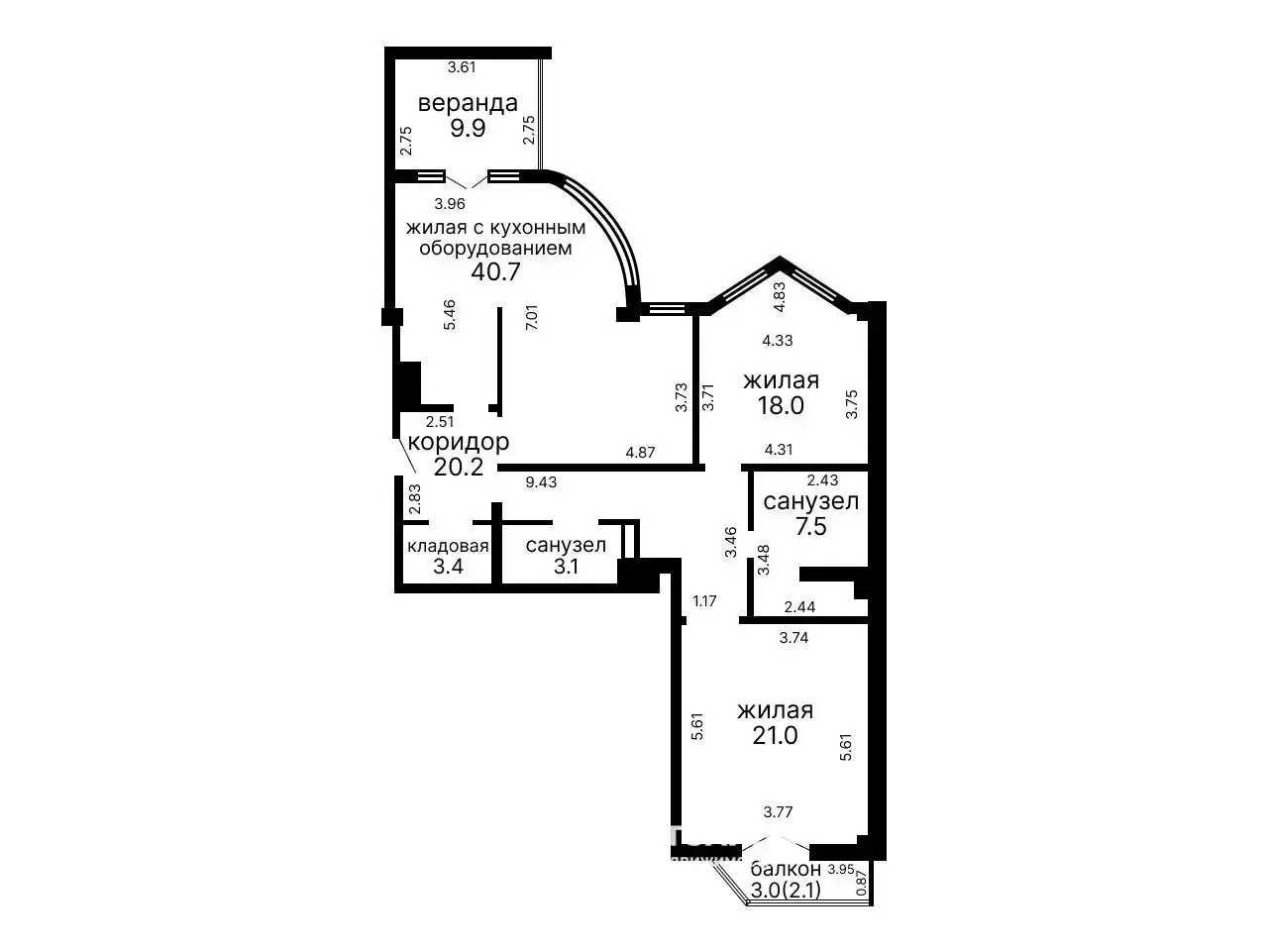
125.9 м2
общая
79.7 м2
жилая
1 м2
кухня
Отдельных комнат
3 комнаты
Санузел
2 сан.узла
Балкон
Балкон
Тип ремонта
С отделкой
О доме
Этаж
4 из 9
Материал стен
Кирпичный
Год постройки
2013
Описание
Эксклюзивное предложение для настоящих ценителей комфорта, качества и современного образа жизни - квартира на Червякова, 55. Уникальная планировка: просторная кухня-гостиная с выходом на веранду, спальня, кабинет, два санузла. Интерьер выполнен в индивидуальном стиле с использованием премиальных материалов. Квартира полностью меблирована качественной мебелью из Германии, каждая зона продумана до мелочей.Изысканный интерьер, индивидуальный стиль.Установлена металлическая входная дверь Lazio, современные межкомнатные двери. Напольное покрытие — паркет и керамическая плитка с подогревом. Потолки комбинированные, с гармоничным освещением.Кухонная зона со встроенной мебелью укомплектована бытовой техникой от ведущих мировых производителей: варочная панель, вытяжка, духовой шкаф, посудомоечная машина, встроенный холодильник Libher, фильтры очистки воды, измельчитель пищевых отходов.Санузлы отделаны плиткой, установлена сантехника Hansgrohe и Villeroy & Boch. Комфортный микроклимат обеспечивает система кондиционирования.Квартира продаётся со всем содержимым, включая элементы декора.Благоустроенная закрытая от машин придомовая территория с велопарковками. В доме оборудован подземный паркинг, есть возможность купить или снять в аренду машино-место. Спуститься в паркинг можно не выходя из подъезда на лифте.Выгодное расположение жилого комплекса. В шаговой доступности гимназии, несколько общеобразовательных школ и детских садов, Минский дворец детей и молодежи, многочисленные объекты сервисного обслуживания и досуга, учебные заведения, торговые, бизнес- и медицинские центры.Удобное транспортное сообщение со всеми районами города.В шаговой доступности от дома находятся такие зоны отдыха, как Киевский сквер, Музейно-парковый комплекс Победа с велодорожками, катерами в летнее время и аттракционами для детей, набережная реки Свислочь и Комсомольское озеро. Живописные виды.Прямая продажа.Звоните прямо сейчас! Мы с радостью ответим на ваши вопросы и организуем просмотр. Эта квартира — идеальный вариант для тех, кто ценит комфорт, стиль и удобство городской жизни.Поможем выгодно продать вашу квартиру для покупки этой. Расширенные консультации по покупке, продаже и обмену вашей квартиры на этот объект можно получить в Центральном офисе «Твоя столица» по адресу г. Минск, ул. Кирова, 8Смотреть подробнее Доступен видеообзор квартиры. ТОП-20 ДЕШЕВЫХ КВАРТИРБАЗА ПОКУПАТЕЛЕЙ – узнайте, кто готов купить вашу квартиру прямо сейчас!КАЛЬКУЛЯТОР СТОИМОСТИ ЖИЛЬЯ – онлайн- расчет стоимости вашей квартиры!ПЕРЕЕЗЖАЕМ В НОВОСТРОЙКУ- программа обмена старого жилья на новое. 2 сделки в 1 день!ПАРТНЕР-КРЕДИТ сопровождение кредитования для покупки и обмена «под ключ»ВАШ ВАРИАНТ- проверка квартир перед покупкой и оформление сделки, если вы нашли объект самостоятельно. ООО "Твоя столица", УНП 101136973, лицензия №02240/15 от 17.02.05г.
Агент
10 лет на сайте
Показать почту
Пожаловаться на объявление
Агентство недвижимости
ТВОЯ СТОЛИЦА АГЕНТСТВО НЕДВИЖИМОСТИ
УНП: 101136973 Лицензия: от 17.02.2005 № 47
Договор №: 22.10.2025 №1020/13

























































