Подать БЕСПЛАТНО

ОБЪЕКТ В АРХИВЕ

Купить 3-комнатную квартиру в Минске, ул. Кунцевщина, д. 6

г. Минск, ул. Кунцевщина, 6
Показать на карте
Фрунзенский район
Каменная горка
5 мин
307 986 р.
Цена за м2: 4 690 р.
Код объекта: 1212533
3 комнаты
65.6 м2
9 этаж из 9
Обновлено: 27.11.2025
307 986 р.
Цена за м2: 4 690 р.
Предложить свою цену

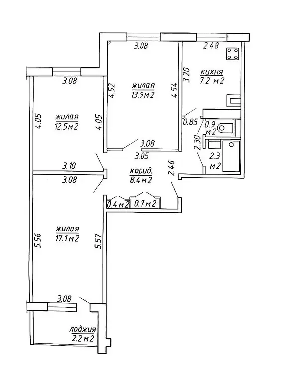
О квартире

Площадь
65.6 м2
общая
43.5 м2
жилая
7.2 м2
кухня
Санузел
раздельный
Балкон
Лоджия

О доме

Этаж
9 из 9
Материал стен
Панельный
Год постройки
1989

Описание

Приглашаем посмотреть теплую 3х комнатную квартиру, закрытую от шума города и расположенную у метро  с хорошими соседями.

Отличная планировка в которой можно реализовать разные сценарии для вашей комфортной жизни. Тамбур на две квартиры. Три отдельных комнаты на разные стороны формируют отличный микроклимат в квартире.

 Данная планировка  при желании позволяет законно объединить кухню и комнату  в помещение более 21м2.  

Прекрасная энергетика. Отсутствие соседей сверху при наличии технического этажа делают Вашу жизнь заметно комфортней.  

Отличное транспортное сообщение и развитая инфраструктура делают данную квартиру одним из лучших предложений. 

В квартире обновлены стены и потолки, Вам осталось подобрать пол и двери на ваш вкус для создания уютной атмосферы.  

Встречайте  новый год в новой квартире!

Поможем продать Вашу квартиру  при необходимости,  проконсультируем по вопросам с недвижимостью.

Общая площадь указана по СНБ.

Лицензия: №02240/362 МЮ РБ, 31.07.2018

Фаттория ПлюсАгент
7 лет на сайте
Условия сделки:продажа
Показать почту
Пожаловаться на объявление
Агентство недвижимости
Фаттория Плюс

Местоположение

г. Минск, ул. Кунцевщина, 6
Фрунзенский район
Опубликовано: 27.11.2025

Возможно, вам будет интересно

Похожие объекты

На этой улицеВ этом районе
439 687 р.
Цена за м2: 5 654 р.
Фрунзенский район, ул. Кунцевщина
Каменная горка
10 мин
6 мин
3-комн. кв
76.73
47.18
10.14 м2
7 этаж из 9
483 975 р.
Цена за м2: 5 982 р.
Фрунзенский район, ул. Кунцевщина
Каменная горка
12 мин
7 мин
4-комн. кв
80.9
54.2
7 м2
9 этаж из 10
566 108 р.
Цена за м2: 5 866 р.
Фрунзенский район, ул. Кунцевщина
Каменная горка
7 мин
4 мин
4-комн. кв
96.5
53.6
10.2 м2
4 этаж из 9
366 357 р.
Цена за м2: 5 723 р.
Фрунзенский район, ул. Притыцкого
Каменная горка
3 мин
3-комн. кв
64.2
37.9
8.8 м2
2 этаж из 12
275 427 р.
Цена за м2: 5 726 р.
Фрунзенский район, ул. Лещинского
Кунцевщина
11 мин
6 мин
1-комн. кв
48.1
11
22.9 м2
4 этаж из 9
431 180 р.
Цена за м2: 5 705 р.
Фрунзенский район, ул. Матусевича
Каменная горка
15 мин
8 мин
3-комн. кв
74
44.3
9.6 м2
7 этаж из 19