Подать БЕСПЛАТНО

Продажа 3-комнатной квартиры в Минске, ул. Леонида Беды, д. 2/б

г. Минск, ул. Леонида Беды, 2/б
Показать на карте
Советский район
Академия наук
16 мин
9 мин
636 764 р.
Цена за м2: 4 908 р.
Код объекта: 1213161
3 комнаты
129.7 м2
2 этаж из 9
Обновлено: 01.12.2025
636 764 р.
Цена за м2: 4 908 р.
Предложить свою цену

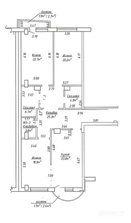
О квартире

Площадь
129.7 м2
общая
61.7 м2
жилая
Санузел
раздельный
Балкон
Балкон
Тип ремонта
Хороший

О доме

Этаж
2 из 9
Год постройки
2010

Описание

Просторная 3-комнатная квартира в престижном районе Минска.

Светлая и уютная 3-комнатная квартира по адресу: ул. Леонида Беды, 2Б — в одном из самых комфортных и зеленых районов города.

Характеристики:

• Площадь по СНБ — 129.7 м2

• Общая площадь — 126.1 м2

• Жилая площадь — 61.7 м2

• Просторная кухня-гостиная — 23.8 м2

• Удобный гардероб

• Два балкона

• Два санузла

• Отличная планировка: четыре изолированные комнаты, идеально подходят для семьи, работы и отдыха.

• Высота потолков 2,7 м.

Квартира расположена в районе с развитой инфраструктурой: рядом школы, детские сады, магазины, ТЦ Рига, кафе, парк Дружбы народов, остановки общественного транспорта и зеленые зоны для прогулок. Рядом строится станция метро.

Прекрасное транспортное сообщение.

Идеальный вариант для тех, кто ценит пространство, комфорт и удобство городской жизни.

Напишите нам в удобный для Вас мессенджер: 
Viber | Telegram | WhatsApp 
Ответим на Ваши вопросы, предоставим всю необходимую информацию. 
УНП 193734126 220034, г. Минск, ул. Платонова, дом 1Б, кабинет 7, 7 этаж. 
ООО «СидНеА» организация и проведение торгов, конкурсов.
Договор № 143/1 от 05.11.2025 г.

Торговая площадка СидНеАЮридическое лицо
год на сайте
Условия сделки:продажа
Показать почту
Пожаловаться на объявление

Местоположение

г. Минск, ул. Леонида Беды, 2/б
Советский район
Опубликовано: 01.12.2025

Возможно, вам будет интересно

Похожие объекты

На этой улицеВ этом районе
752 882 р.
Цена за м2: 4 337 р.
Советский район, ул. Леонида Беды
Академия наук
25 мин
14 мин
5-комн. кв
166.9
98.3
10.2 м2
3 этаж из 10
1 013 495 р.
Цена за м2: 6 666 р.
Советский район, ул. Леонида Беды
Академия наук
16 мин
9 мин
4-комн. кв
152
89.2
20.4 м2
4 этаж из 17
862 919 р.
Цена за м2: 8 363 р.
Советский район, ул. Леонида Беды
Академия наук
24 мин
13 мин
3-комн. кв
96.6
69.4
м2
6 этаж из 19
694 968 р.
Цена за м2: 2 130 р.
Советский район, ул. Можайского
5-комн. кв
310
124.5
24.8 м2
1 этаж из 3
810 506 р.
Цена за м2: 7 422 р.
Советский район, ул. Гало
Академия наук
23 мин
13 мин
3-комн. кв
109.2
64.8
13 м2
3 этаж из 10
419 877 р.
Цена за м2: 5 045 р.
Советский район, ул. Некрасова
Академия наук
20 мин
11 мин
4-комн. кв
80.36
49.09
9.12 м2
1 этаж из 12