Подать БЕСПЛАТНО

Продажа 3-комнатной квартиры в Минске, ул. Ольшевского, д. 1/1

г. Минск, ул. Ольшевского, 1/1
Показать на карте
Фрунзенский район
Пушкинская
9 мин
5 мин
331 200 р.
Цена за м2: 5 003 р.
120 000 $
1 813 $/м2
Код объекта: 1237649
3 комнаты
66.2 м2
5 этаж из 5
Обновлено: 09.04.2026
331 200 р.
Цена за м2: 5 003 р.
120 000 $
1 813 $/м2
Предложить свою цену

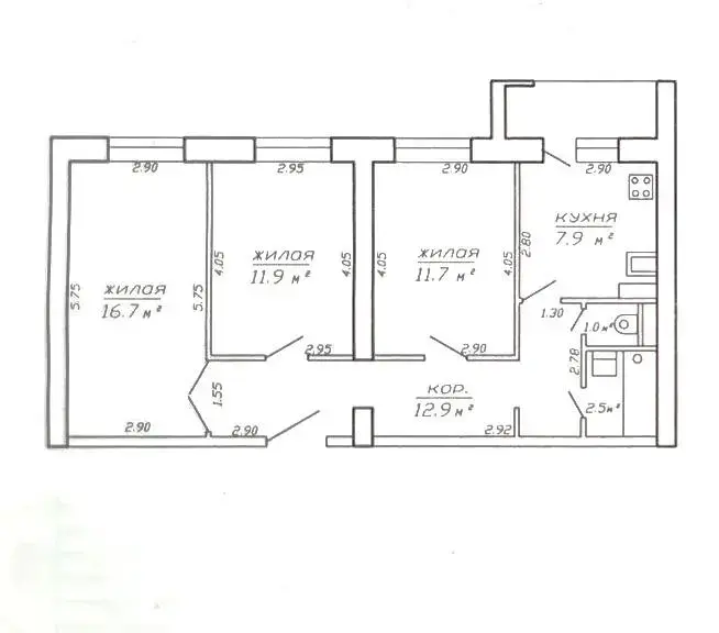
О квартире

Площадь
66.2 м2
общая
40.3 м2
жилая
7.9 м2
кухня
Санузел
совмещенный
Балкон
Лоджия

О доме

Этаж
5 из 5
Материал стен
Кирпичный
Год постройки
1966
Год кап. ремонта
2003

Описание

3-ёх комнатная квартира возле метро Пушкинская.

 

Прекрасная квартира с двумя большими отдельными комнатами и и просторной кухней гостиной с выходом на лоджию.

Общая площадь указана по СНБ.

Место хорошее как для жизни, так и для выгодной сдачи в аренду.

5 минут пешком до станции метро Пушкинская.

На окнах установлены двухкамерные стеклопакеты ПВХ.

 Большая и удобная прихожая 12.9 м2. Есть шкаф купе.

Подъезд чистый и аккуратный.

Дом кирпичный, а это значит, что в любое время года будет комфортная температура в квартире.

 

В шаговой доступности от дома находятся:

 

метро Пушкинская

Пару детских садов

Несколько средних школ

Гимназии №19 и №32

Детская и взрослая поликлиники

Остановки общественного транспорта

Множества продуктовых магазинов

Кафе, рестораны, пиццерии

Салоны красоты

Отделения различных банков и почты

Звоните и приходите на просмотр.

 

Помогу выгодно продать вашу недвижимость в кратчайшие сроки и по выгодной цене.

 

 

ООО «ЭТАЖИ юнайтед»

УНП: 193673318

Договор 771/1 от 08.04.2026

Лицензия на оказание риэлтерских услуг №02240/460 МЮ РБ от 03.04.2023

ОльгаАгентство
2 года на сайте
Условия сделки:продажа
Показать почту
Пожаловаться на объявление
Агентство недвижимости
ООО «ЭТАЖИ юнайтед»

Местоположение

г. Минск, ул. Ольшевского, 1/1
Фрунзенский район
Опубликовано: 09.04.2026

Возможно, вам будет интересно

Похожие объекты

На этой улицеВ этом районе
284 280 р.
Цена за м2: 7 327 р.
103 000 $
2 655 $/м2
Фрунзенский район, ул. Ольшевского
Пушкинская
8 мин
4 мин
1-комн. кв
38.8
15.7
9.2 м2
15 этаж из 15
206 724 р.
Цена за м2: 7 008 р.
74 900 $
2 539 $/м2
Фрунзенский район, ул. Ольшевского
Пушкинская
6 мин
1-комн. кв
29.5
18.93
5.4 м2
5 этаж из 5
162 840 р.
Цена за м2: 5 462 р.
59 000 $
1 979 $/м2
Фрунзенский район, ул. Ольшевского
Пушкинская
7 мин
4 мин
1-комн. кв
29.8
19.5
5.2 м2
5 этаж из 5
675 651 р.
Цена за м2: 6 449 р.
225 000 $
2 336 $/м2
Фрунзенский район, ул. Скрыганова
Молодежная
8 мин
4 мин
3-комн. кв
96.3
55.3
14.3 м2
9 этаж из 13
372 788 р.
Цена за м2: 6 955 р.
127 000 $
2 520 $/м2
Фрунзенский район, ул. Скрыганова
Молодежная
6 мин
1-комн. кв
50.4
21.8
12.4 м2
1 этаж из 10
524 400 р.
Цена за м2: 6 937 р.
190 000 $
2 513 $/м2
Фрунзенский район, ул. Скрыганова
Молодежная
7 мин
4 мин
3-комн. кв
75.6
34.5
14.5 м2
7 этаж из 15