О квартире
О доме
Описание
Просторная трехкомнатная квартира в одном из самых престижных районов г. Минска – ЖК «Олимпик Парк». Квартиры в ЖК «Олимпик парк» - это вариант премиум жилья, ориентированный на тех, кто ценит комфорт, приватность и живописные виды. Уникальное расположение ЖК «Олимпик Парк» позволяет совмещать удобство мегаполиса с преимуществами загородной жизни. Это премиальный жилой комплекс в микрорайоне Лебяжий, недалеко от природного заказника «Лебяжий и водохранилища Дрозды. Закрытая территория комплекса имеет огороженную и охраняемую территорию с видеонаблюдением, въезд осуществляется через шлагбаум, дворы закрыты для автомобилей.
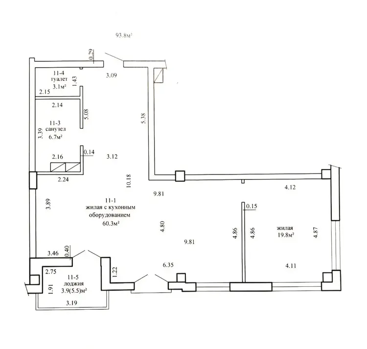
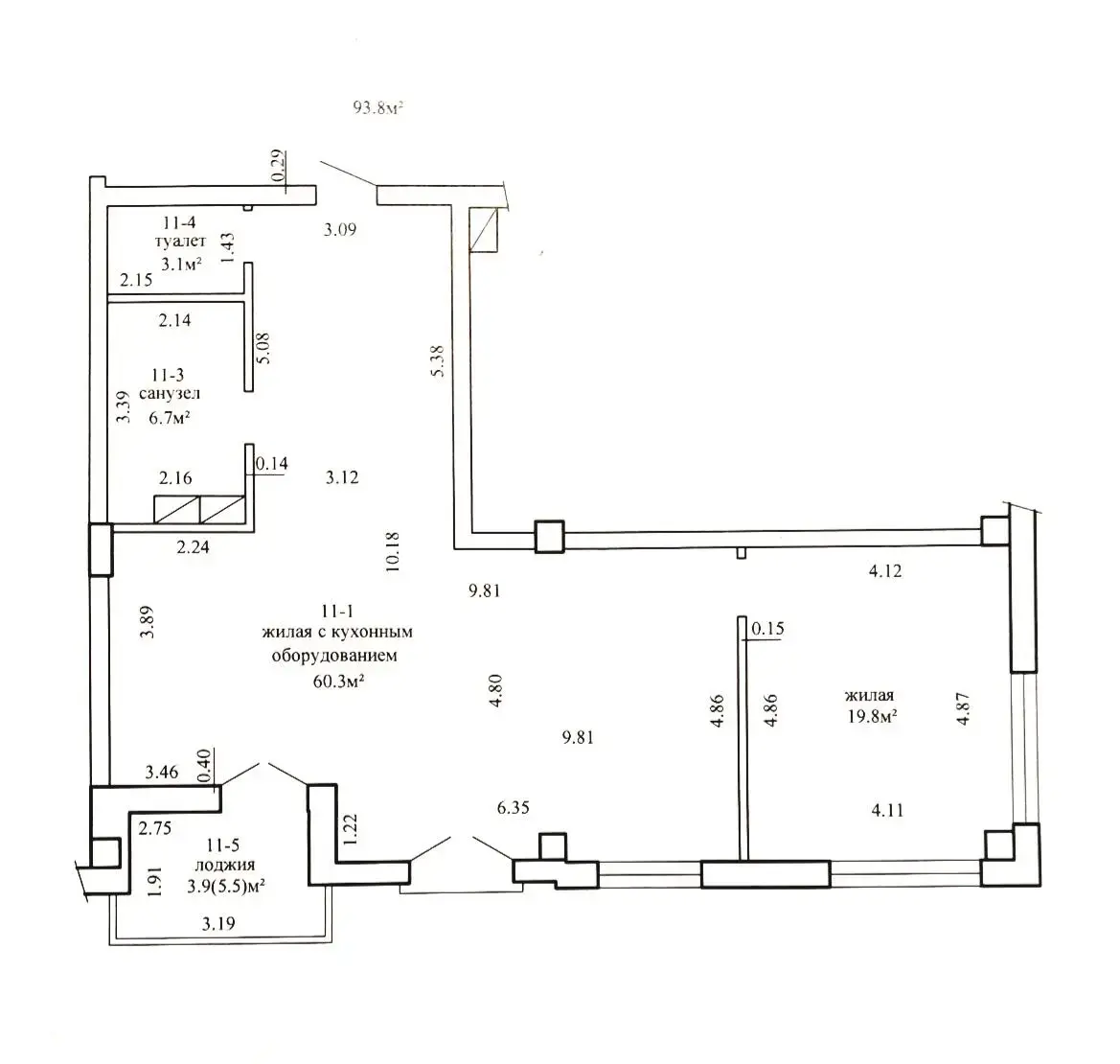
Дом повышенной комфортности, площадка оборудована колясочной и местом для хранения велосипедов, просторные холлы, видеонаблюдение, высокие потолки, бесшумный лифт. Квартира свободной планировки под чистовую отделку, что позволит новому владельцу сделать дизайнерский ремонт по своему вкусу. Застройщиком качественно выполнено ряд необходимых работ в квартире: стяжка полов, штукатурка, проложена проводка. Площадь квартиры по СНБ 93,8 м.кв. с лоджией, мастер-спальней и раздельным санузлом. Панорамные окна, а также панорамное остекление лоджии обеспечивают большое количество естественного света, высокий потолок 3,5м. предает квартире ощущение комфортного пространства. Достойным бонусом к продаваемой квартире будет просторная (7,7м.кв.) кладовая, которая позволит хранить там часть необходимых вещей.
Район с достаточно развитой инфраструктурой, в шаговой доступности есть все, что необходимо для комфортной жизни: «Олимпик-Арена», «Минск-Арена», "Falcon сlub", «Футбольный манеж», аквапарк «Лебяжий», СПА «Ривьера», велодорожка - 27 км, ТРЦ «Arena-City», «Минское море», множество кафе и ресторанов, парикмахерских, фитнес-центров, салонов красоты. Отличное транспортное сообщение. До центра - 15 минут на авто. В перспективе планируется строительство путепровода соединяющего улицы Колесникова и Ратомской. Удобный выезд на МКАД.
Чистая продажа, быстрый выход на сделку. Звоните и приходите на осмотр, согласуем удобное для Вас время!
Необходимо продать свою недвижимость для покупки этой квартиры, свяжитесь с нашим специалистом. Мы решим Ваш жилищный вопрос на самых выгодных для Вас условиях!
Частное унитарное предприятие «Дианэст», УНП 190124316, лицензия №02240/54 от 06.06.2005. Договор № 176 /4 от 05.11.2025г.










































