О квартире
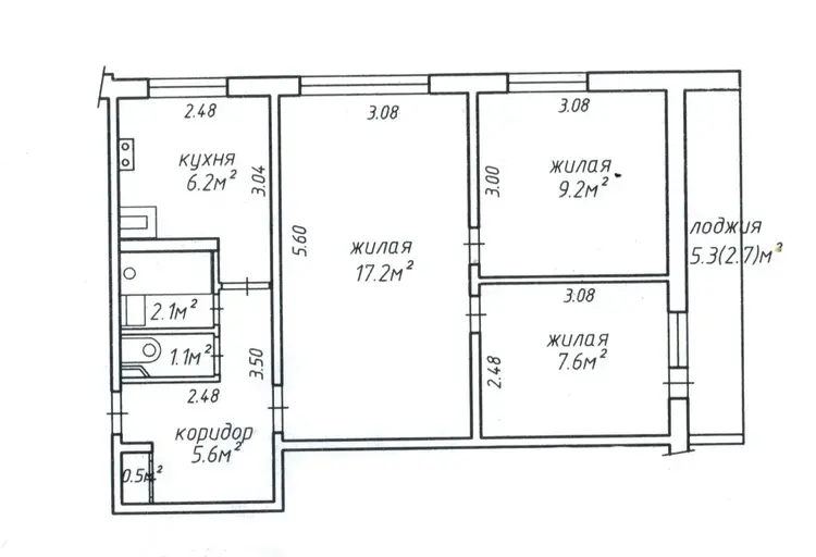
Площадь
49.5 м2
общая
34 м2
жилая
6.2 м2
кухня
Санузел
раздельный
Балкон
Лоджия
О доме
Этаж
1 из 5
Материал стен
Панельный
Год постройки
1970
Год кап. ремонта
2024
Описание
Юлия — Агент
3 года на сайте
Условия сделки:продажа
Показать почту
Пожаловаться на объявление
Агентство недвижимости
"Минское городское агентство по государственной регистрации и земельному кадастру"
УНП: 100211473
Договор №: 263/6 от 2025-12-10





































