Подать БЕСПЛАТНО

ОБЪЕКТ В АРХИВЕ

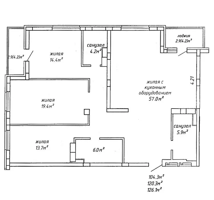
Продажа 4-комнатной квартиры в Минске, пер. Горный, д. 8

г. Минск, пер. Горный, 8
Показать на карте
Советский район
Площадь Якуба Коласа
10 мин
5 мин
894 438 р.
Цена за м2: 7 076 р.
Код объекта: 1224174
4 комнаты
126.4 м2
12 этаж из 12
Обновлено: 23.01.2026
894 438 р.
Цена за м2: 7 076 р.
Предложить свою цену

О квартире

Площадь
126.4 м2
общая
120 м2
жилая
Санузел
2 сан.узла
Балкон
Лоджия

О доме

Этаж
12 из 12
Материал стен
Монолитный
Год постройки
2019

Описание

Квартира в центре столицы, в доме Премиум класса

Предложение квартир ограничено!

Выгодные условия к приобретению: возможность использования кредитных средств от10%! Рассрочка /бонусная цена на машино-места. Без дополнительных платежей услуг Агентства Недвижимости.

Технические характеристики дома: Монолитный каркас с заполнением керамическими блоками. Свобода планировки – в границе квартир преимущественно без несущих стен. От застройщика возведены основные межкомнатные стены и сан. узлы – без потери квадратных метров! Полная разводка электрики, оптоволокно, видеодомофон. В отделке вестибюля, лестниц и коридоров использованы Итальянская плитка Cottodeste, декоративная штукатурка Oikos, художественная ковка.
Дворовая территория: детская и спортивная площадка с уличными тренажерами. 
Подземный отапливаемый паркинг на 80 машино-мест, 19 гостевых наземных стоянок. Предусмотрена зарядка электромобилей.
При покупке квартиры – специальное ценовое предложение с выбором машино- места!
Безопасность: Видеонаблюдение внутри и снаружи, IP- домофон с видеосвязью.  Круглосуточно работает консьерж. Действующее Товарищество собственников.
Будем рады пригласить вас на просмотр.                     

Поможем выгодно продать вашу недвижимость для покупки этой квартиры.

ИринаАгент
8 лет на сайте
Условия сделки:продажа
Показать почту
Пожаловаться на объявление
Агентство недвижимости
Мариэлт

Местоположение

г. Минск, пер. Горный, 8
Советский район
Опубликовано: 23.01.2026

Возможно, вам будет интересно

Похожие объекты

На этой улицеВ этом домеВ этом районе
274 559 р.
Цена за м2: 4 676 р.
Советский район, пер. Горный
Площадь Якуба Коласа
9 мин
5 мин
3-комн. кв
57.5
40.9
5.7 м2
5 этаж из 5
596 528 р.
Цена за м2: 7 076 р.
Советский район, пер. Горный
Площадь Якуба Коласа
10 мин
5 мин
2-комн. кв
84.3
66
м2
12 этаж из 12
493 900 р.
Цена за м2: 6 284 р.
Советский район, пер. Горный
Площадь Якуба Коласа
10 мин
5 мин
2-комн. кв
78.6
66
м2
10 этаж из 12
596 528 р.
Цена за м2: 7 076 р.
Советский район, пер. Горный
Площадь Якуба Коласа
10 мин
5 мин
2-комн. кв
84.3
66
м2
12 этаж из 12
493 900 р.
Цена за м2: 6 284 р.
Советский район, пер. Горный
Площадь Якуба Коласа
10 мин
5 мин
2-комн. кв
78.6
66
м2
10 этаж из 12
770 915 р.
Цена за м2: 6 227 р.
Советский район, пер. Горный
Площадь Якуба Коласа
10 мин
5 мин
3-комн. кв
123.8
110
м2
9 этаж из 12
382 118 р.
Цена за м2: 6 162 р.
Советский район, ул. Золотая Горка
Площадь Якуба Коласа
5 мин
3-комн. кв
62.09
42
7.76 м2
6 этаж из 9
254 717 р.
Цена за м2: 5 624 р.
Советский район, ул. Золотая Горка
Площадь Якуба Коласа
6 мин
2-комн. кв
45.3
32.8
5.8 м2
3 этаж из 5
503 829 р.
Цена за м2: 6 266 р.
Первомайский район, ул. Сурганова
Академия наук
7 мин
4 мин
2-комн. кв
79.5
67.7
м2
6 этаж из 19