Подать БЕСПЛАТНО

Купить 4-комнатную квартиру в Минске, пр-т Мира, д. 18

г. Минск, пр-т Мира, 18
Показать на карте
Октябрьский район
Аэродромная
7 мин
4 мин
359 597 р.
Цена за м2: 5 029 р.
Код объекта: 1213575
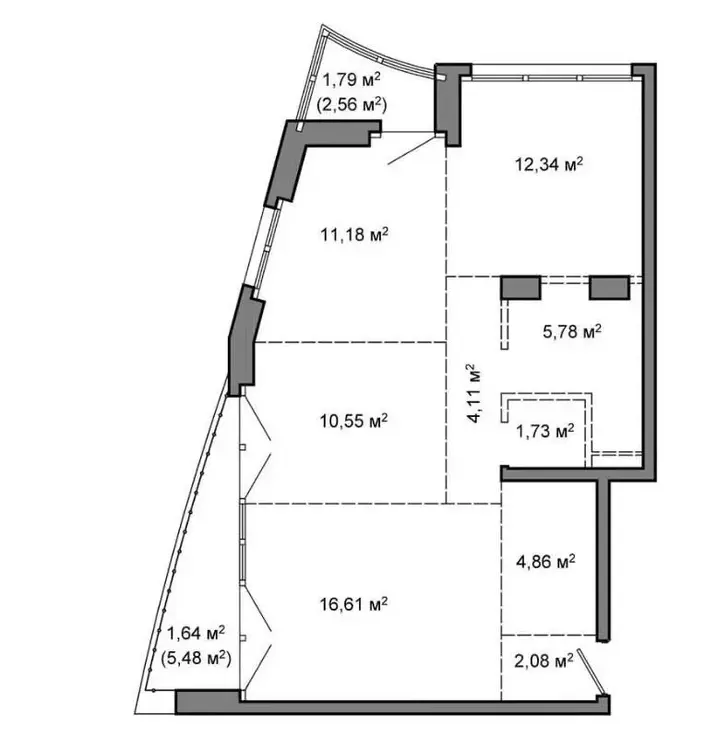
4 комнаты
71.5 м2
2 этаж из 25
Обновлено: 04.12.2025
359 597 р.
Цена за м2: 5 029 р.
Предложить свою цену

О квартире

Площадь
71.5 м2
общая
62 м2
жилая
Балкон
Лоджия
Тип ремонта
Без отделки

О доме

Этаж
2 из 25
Год постройки
2021

Описание

Работаем напрямую от застройщика по партнерской программе (без комиссий)!!! 

Кредит от 6%. Расчет рассрочки. Выгодная рассрочка!

Продадим Вашу квартиру для покупки этой!

Акция, скидки 3%.

Цены и наличие актуальны на 01.12.2025.

Стать владельцем недвижимости в Minsk World можно:   

    За собственные средства.

    В рассрочку без справок и поручителей (только паспорт!).

     Все дома в комплексе каркасно-блочные, от 10 до 25 этажей.   

    Скоростные бесшумные лифты импортного производства.

    Почти во всех домах есть панорамный лифт. 

    Во всех домах просторные фойе с высокими потолками, гостевыми санузлами и стойками для консьержа   

    Высота потолков 2,7 м, а в некоторых домах на верхних этажах 3 м.

Инфраструктура комплекса «Минск Мир»:   

    Комплекс «Минск Мир» расположен максимально близко к географическому центру Минска!   

    Две станции метро: «Ковальская Слобода», «Аэродромная».

    Отличное транспортное сообщение!

    Быстро и легко можно добраться как до центра города, так и до МКАД.

    Широкие улицы между кварталами.  

    В каждом квартале современные школа или сад с бассейнами и современным оснащением.   

    Спортивные площадки, велопарковки и благоустроенные дворы.   

    Зеленая парковая зона, международный финансовый центр и крупнейший торговый центр Авиа Молл в центре комплекса.

    В пешей доступности будет вся собственная инфраструктура Minsk World – взрослая и детская поликлиника, медицинский центр, кафе и магазины, парковки, спортивные залы и фитнес-центры.   

Поможем продать вашу квартиру. Подберем лучший вариант! 

Подробную информацию уточняйте по телефону.

ООО «ЭТАЖИ юнайтед»

УНП: 193673318

Договор 53/1 от 05.01.2024

Лицензия на оказание риэлтерских услуг №02240/460 МЮ РБ от 03.04.2023 Совершая звонок, вы даете согласие на обработку персональных данных

Ознакомиться с политикой обработки персональных данных ООО «ЭТАЖИ юнайтед» можно здесь.

ИринаАгент
2 года на сайте
Условия сделки:продажа
Показать почту
Пожаловаться на объявление
Агентство недвижимости
ООО «ЭТАЖИ юнайтед»

Местоположение

г. Минск, пр-т Мира, 18
Октябрьский район
Опубликовано: 04.12.2025

Возможно, вам будет интересно

Похожие объекты

На этой улицеВ этом домеВ этом районе
372 898 р.
Цена за м2: 5 550 р.
Октябрьский район, пр-т Мира
Аэродромная
7 мин
4 мин
4-комн. кв
69.4
м2
1 этаж из 25
361 443 р.
Цена за м2: 5 654 р.
Октябрьский район, пр-т Мира
Аэродромная
7 мин
4 мин
3-комн. кв
55.2
м2
1 этаж из 25
423 393 р.
Цена за м2: 5 550 р.
Октябрьский район, пр-т Мира
Аэродромная
7 мин
4 мин
4-комн. кв
71.2
м2
1 этаж из 25
372 898 р.
Цена за м2: 5 550 р.
Октябрьский район, пр-т Мира
Аэродромная
7 мин
4 мин
4-комн. кв
69.4
м2
1 этаж из 25
361 443 р.
Цена за м2: 5 654 р.
Октябрьский район, пр-т Мира
Аэродромная
7 мин
4 мин
3-комн. кв
55.2
м2
1 этаж из 25

Фотографии отсутствуют

272 630 р.
Цена за м2: 5 654 р.
Октябрьский район, пр-т Мира
Аэродромная
7 мин
4 мин
3-комн. кв
55.6
м2
1 этаж из 25
372 898 р.
Цена за м2: 5 550 р.
Октябрьский район, пр-т Мира
Аэродромная
7 мин
4 мин
4-комн. кв
69.4
м2
1 этаж из 25
361 443 р.
Цена за м2: 5 654 р.
Октябрьский район, пр-т Мира
Аэродромная
7 мин
4 мин
3-комн. кв
55.2
м2
1 этаж из 25
278 941 р.
Цена за м2: 5 619 р.
Октябрьский район, ул. Белградская
Аэродромная
8 мин
5 мин
4-комн. кв
69
м2
1 этаж из 25