Подать БЕСПЛАТНО

Продажа 4-комнатной квартиры в Минске, ул. Академика Купревича, д. 16

г. Минск, ул. Академика Купревича, 16
Показать на карте
Первомайский район
Уручье
23 мин
13 мин
431 459 р.
Цена за м2: 3 951 р.
Код объекта: 1210450
4 комнаты
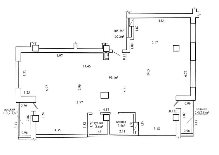
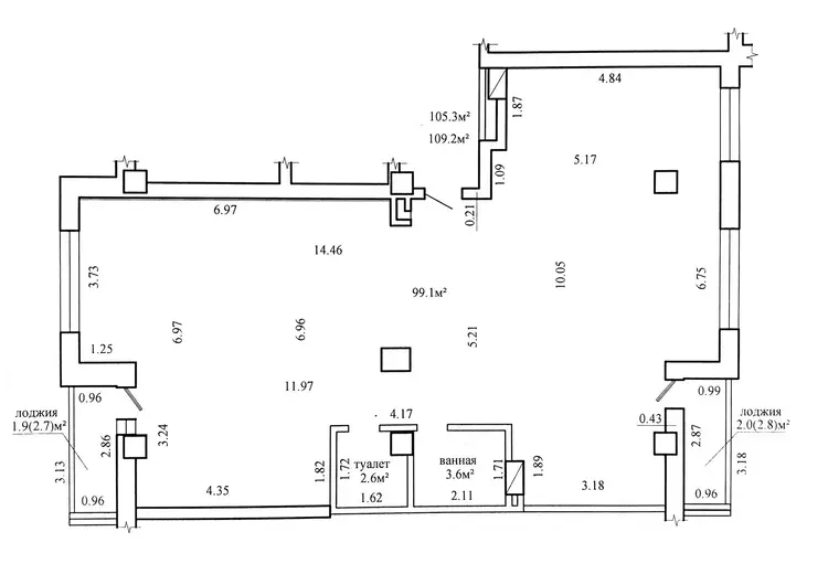
109.2 м2
1 этаж из 16
Обновлено: 15.11.2025
431 459 р.
Цена за м2: 3 951 р.
Предложить свою цену

О квартире

Площадь
109.2 м2
общая
Санузел
раздельный
Балкон
Лоджия
Тип ремонта
Без отделки

О доме

Этаж
1 из 16
Год постройки
2023

Описание

Продается просторная 4-комнатная квартира со свободной планировкой! В квартире всего несколько колонн, что позволит сделать планировку под себя! Квартира располагается на 1 этаже 16-ти этажного дома, что позволяет, при необходимости, вывести ее из жилого фонда и использовать как коммерческий объект. Есть возможность организовать отдельный вход. Окна выходят на разные стороны дома. 

 

  Во дворе расположилась современная детская площадка, красивый пруд с утками. В шаговой доступности паркинг, школа и детский сад, что делает этот район идеальным для семей с детьми.

 

   Всего в 5 минутах пешком находится автобусная остановка ДС «Уручье-3», откуда за 6 минут можно доехать до станции метро «Уручье» и быстро добраться в любую точку города. Удобный выезд на МКАД. 

  

  Отличное место для тихой и комфортной жизни в мегаполисе!
 

Агент
3 года на сайте
Условия сделки:продажа
Показать почту
Пожаловаться на объявление
Агентство недвижимости
«Алькор»

Местоположение

г. Минск, ул. Академика Купревича, 16
Первомайский район
Опубликовано: 15.11.2025

Возможно, вам будет интересно

Похожие объекты

На этой улицеВ этом домеВ этом районе
354 723 р.
Цена за м2: 4 088 р.
Первомайский район, ул. Академика Купревича
Уручье
23 мин
13 мин
3-комн. кв
85.7
79.5
м2
15 этаж из 16
333 006 р.
Цена за м2: 3 909 р.
Первомайский район, ул. Академика Купревича
Уручье
23 мин
13 мин
3-комн. кв
85.2
81
м2
10 этаж из 16
341 693 р.
Цена за м2: 4 068 р.
Первомайский район, ул. Академика Купревича
Уручье
23 мин
13 мин
3-комн. кв
84
73.6
м2
9 этаж из 16
354 723 р.
Цена за м2: 4 088 р.
Первомайский район, ул. Академика Купревича
Уручье
23 мин
13 мин
3-комн. кв
85.7
79.5
м2
15 этаж из 16
333 006 р.
Цена за м2: 3 909 р.
Первомайский район, ул. Академика Купревича
Уручье
23 мин
13 мин
3-комн. кв
85.2
81
м2
10 этаж из 16
341 693 р.
Цена за м2: 4 068 р.
Первомайский район, ул. Академика Купревича
Уручье
23 мин
13 мин
3-комн. кв
84
73.6
м2
9 этаж из 16
694 968 р.
Цена за м2: 5 004 р.
Первомайский район, пр-т Независимости
Уручье
3 мин
4-комн. кв
146.4
87.8
10.9 м2
10 этаж из 10
318 527 р.
Цена за м2: 7 239 р.
Первомайский район, пр-т Независимости
Уручье
2 мин
1-комн. кв
44.1
19.6
11 м2
9 этаж из 12
723 925 р.
Цена за м2: 6 240 р.
Первомайский район, пр-т Независимости
Уручье
4 мин
3-комн. кв
116.6
88.4
15.6 м2
11 этаж из 12