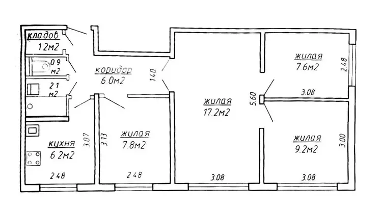
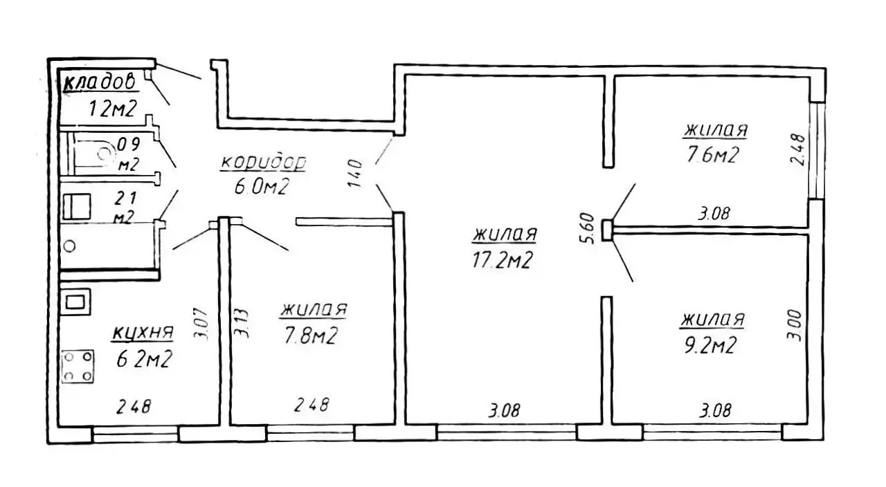
О квартире
Площадь
58.2 м2
общая
41.8 м2
жилая
6.2 м2
кухня
Санузел
раздельный
О доме
Этаж
1 из 5
Материал стен
Панельный
Год постройки
1967
Описание
Фаттория Плюс — Агент
7 лет на сайте
Условия сделки:продажа
Показать почту
Пожаловаться на объявление
Агентство недвижимости
Фаттория Плюс
УНП: 193074485 Лицензия: от 31.07.2018 № 159
Договор №: 1661/1 от 2025-11-20



































