Подать БЕСПЛАТНО

Продажа 4-комнатной квартиры в Минске, ул. Лейтенанта Кижеватова, д. 3/Г

г. Минск, ул. Лейтенанта Кижеватова, 3/Г
Показать на карте
Октябрьский район
Аэродромная
9 мин
5 мин
387 756 р.
Цена за м2: 5 595 р.
Код объекта: 1215848
4 комнаты
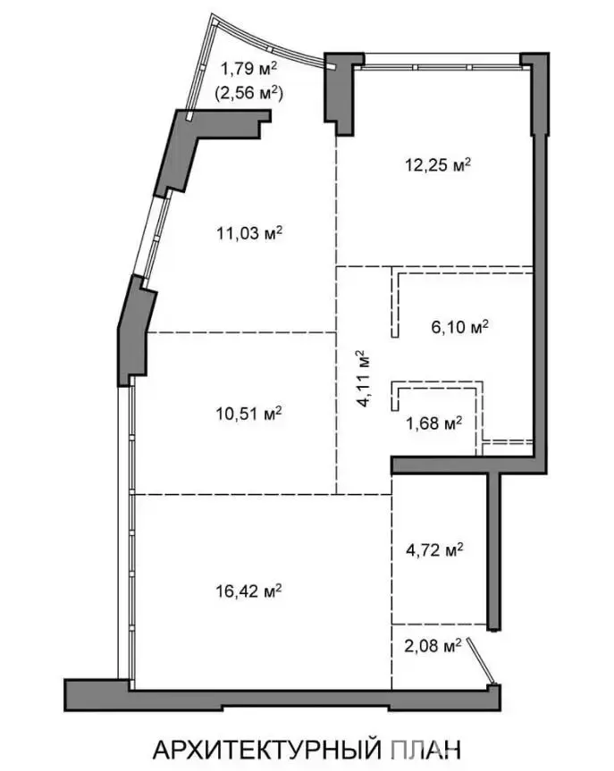
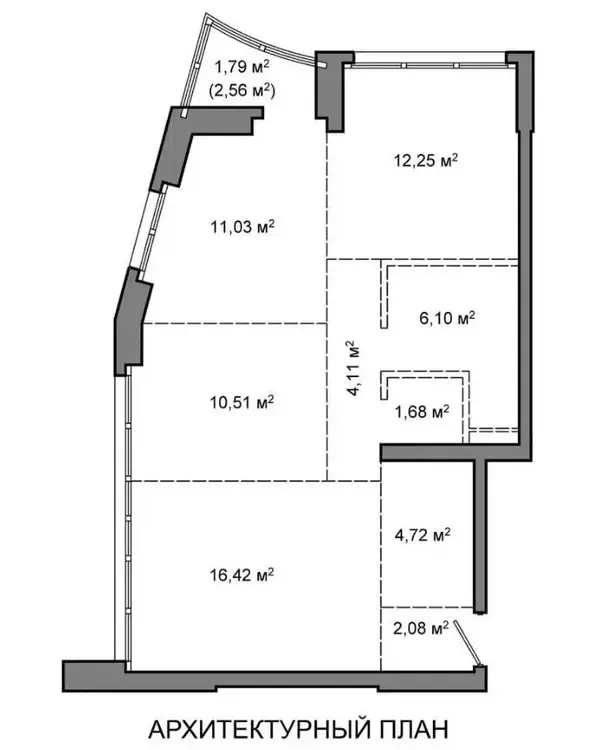
69.3 м2
1 этаж из 25
Обновлено: 18.12.2025
387 756 р.
Цена за м2: 5 595 р.
Предложить свою цену

О квартире

Площадь
69.3 м2
общая
59 м2
жилая
Балкон
Лоджия
Тип ремонта
Без отделки

О доме

Этаж
1 из 25
Год постройки
2021

Описание

Работаем напрямую от застройщика по партнерской программе (без комиссий)!!!

Цены и наличие на 17.12.2025г.

Продадим Вашу квартиру для покупки этой!

Стать владельцем квартиры в Minsk World можно:

1. За собственные средства

2.  Кредит от 6%.

3.  В рассрочку без справок и поручителей (только паспорт!)

     Все дома в комплексе каркасно-блочные.

    Скоростные бесшумные лифты импортного производства. Почти во всех домах есть панорамный лифт.

    Во всех домах просторные фойе с высокими потолками, гостевыми санузлами и стойками для консьержа.

    Высота потолков 2,7 м, а в некоторых домах на верхних этажах 3 м.

Инфраструктура комплекса «Минск Мир»:

   Комплекс «Минск Мир» расположен максимально близко к географическому центру Минска!

    Две станции метро: «Ковальская Слобода», «Аэродромная».

    Отличное транспортное сообщение! Быстро и легко можно добраться как до центра города, так и до МКАД. Широкие улицы между кварталами.

    В каждом квартале современные школа или сад с бассейнами и современным оснащением

    Спортивные площадки, вело парковки и благоустроенные дворы.

    Зеленая парковая зона, международный финансовый центр и крупнейший торговый центр Авиа Молл в центре комплекса в пешей доступности будет вся  инфраструктура Minsk World – взрослая и детская поликлиника, медицинский центр, кафе и магазины, парковки, спортивные залы и фитнес-центры.

Поможем продать Вашу квартиру. Подберем лучший вариант!

 

ООО «ЭТАЖИ юнайтед»

УНП: 193673318

Договор 53/1 от 05.01.2024

Лицензия на оказание риэлтерских услуг №02240/460 МЮ РБ от 03.04.2023 Совершая звонок, вы даете согласие на обработку персональных данных

Ознакомиться с политикой обработки персональных данных ООО «ЭТАЖИ юнайтед» можно здесь.

 

 

ИринаАгент
2 года на сайте
Условия сделки:продажа
Показать почту
Пожаловаться на объявление
Агентство недвижимости
ООО «ЭТАЖИ юнайтед»

Местоположение

г. Минск, ул. Лейтенанта Кижеватова, 3/Г
Октябрьский район
Опубликовано: 18.12.2025

Возможно, вам будет интересно

Похожие объекты

На этой улицеВ этом домеВ этом районе
255 241 р.
Цена за м2: 4 974 р.
Октябрьский район, ул. Лейтенанта Кижеватова
Аэродромная
9 мин
5 мин
3-комн. кв
75.5
м2
2 этаж из 25
342 773 р.
Цена за м2: 5 768 р.
Октябрьский район, ул. Лейтенанта Кижеватова
Аэродромная
10 мин
6 мин
3-комн. кв
68.5
м2
1 этаж из 20
266 457 р.
Цена за м2: 5 837 р.
Октябрьский район, ул. Лейтенанта Кижеватова
Аэродромная
15 мин
8 мин
2-комн. кв
52.6
м2
1 этаж из 16
255 241 р.
Цена за м2: 4 974 р.
Октябрьский район, ул. Лейтенанта Кижеватова
Аэродромная
9 мин
5 мин
3-комн. кв
75.5
м2
2 этаж из 25
334 470 р.
Цена за м2: 5 740 р.
Октябрьский район, ул. Лейтенанта Кижеватова
Ковальская слобода
14 мин
8 мин
4-комн. кв
67.51
50.21
м2
1 этаж из 25
313 517 р.
Цена за м2: 5 077 р.
Октябрьский район, ул. Лейтенанта Кижеватова
Ковальская слобода
14 мин
8 мин
3-комн. кв
73.92
43.62
м2
2 этаж из 25
371 148 р.
Цена за м2: 5 526 р.
Октябрьский район, пр-т Мира
Аэродромная
7 мин
4 мин
4-комн. кв
69.4
м2
1 этаж из 25
359 746 р.
Цена за м2: 5 630 р.
Октябрьский район, пр-т Мира
Аэродромная
7 мин
4 мин
3-комн. кв
55.2
м2
1 этаж из 25
277 632 р.
Цена за м2: 5 595 р.
Октябрьский район, ул. Белградская
Аэродромная
8 мин
5 мин
4-комн. кв
69
м2
1 этаж из 25