Подать БЕСПЛАТНО

ОБЪЕКТ В АРХИВЕ

Продажа 4-комнатной квартиры в Минске, ул. Нововиленская, д. 67

г. Минск, ул. Нововиленская, 67
Показать на карте
Центральный район
964 704 р.
Цена за м2: 8 623 р.
Код объекта: 1195377
4 комнаты
111.87 м2
1 этаж из 4
Обновлено: 03.09.2025
964 704 р.
Цена за м2: 8 623 р.
Предложить свою цену

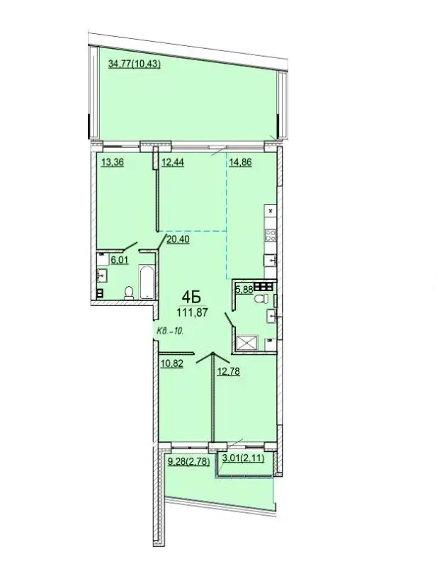
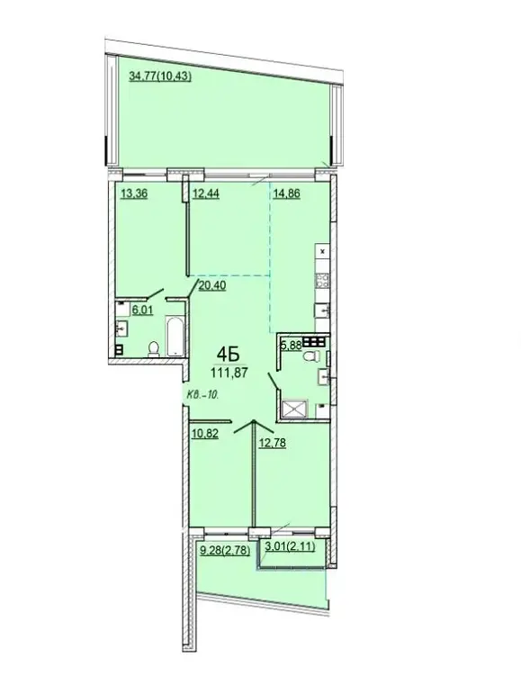
О квартире

Площадь
111.87 м2
общая
98 м2
жилая
Балкон
Лоджия
Тип ремонта
Без отделки

О доме

Этаж
1 из 4
Год постройки
2025

Описание

ЖК «Левада» - жилой комплекс класса комфорт, строится  в Центральном районе столицы — на берегу реки Свислочь вдоль улицы Нововиленская. 

 

«Левада» разместится вдали от шумных проспектов, в окружении природно-парковых зон: поблизости  находятся парк Победы,  водохранилище Дрозды и Комсомольское озеро.

 

Дом 10.1 и 10.2 срок сдачи – 3 квартал 2025 год.

 

Базовые характеристики:

 

- Каркасно-блочный дом;

- 4 этажа в доме;

- Скоростные лифты Otis, на которых можно спуститься к кладовкам и в паркинг.

- Поземный паркинг;

- Высокие потолки - 2,7 м.;

- На минус первом этаже разместятся кладовые помещения;

 

Квартиры предлагаются с качественной черновой отделкой;

- Выполняется стяжка пола и штукатурка стен;

- Устанавливаются оконные блоки из ПВХ-профиля с заполнением двухкамерным стеклопакетом;

- остекление лоджий;

- Входная металлическая дверь, из сантехпосуды – унитаз;

- Разводка электрики с установкой розеток и выключателей, подводка оптоволокна;

- Установка счетчиков воды, тепла и электроэнергии.

 

Собственная инфраструктура и дворовая территория включает:

 

- Закрытая территория;

- Ландшафтный двор;

- Функциональные площадки для детей разных возрастов.

 

Цена и наличие актуально на 27.08.2025г.

 

Договор 631/1 от 22.01.2024г.

 

 

ООО «ЭТАЖИ юнайтед»

УНП: 193673318

Лицензия на оказание риэлтерских услуг №02240/460 МЮ РБ от 03.04.2023 Совершая звонок, вы даете согласие на обработку персональных данных

Ознакомиться с политикой обработки персональных данных ООО «ЭТАЖИ юнайтед» можно здесь.

Иринаагент
2 года на сайте
Условия сделки:продажа
Показать почту
Пожаловаться на объявление
Агентство недвижимости
ООО «ЭТАЖИ юнайтед»

Местоположение

г. Минск, ул. Нововиленская, 67
Центральный район
Опубликовано: 03.09.2025

Возможно, вам будет интересно

Похожие объекты

На этой улицеВ этом домеВ этом районе
579 852 р.
Цена за м2: 9 098 р.
Центральный район, ул. Нововиленская
3-комн. кв
62.1
42.1
м2
9 этаж из 9
788 004 р.
Цена за м2: 5 601 р.
Центральный район, ул. Нововиленская
4-комн. кв
137.5
69.9
17.1 м2
8 этаж из 8
770 162 р.
Цена за м2: 6 831 р.
Центральный район, ул. Нововиленская
4-комн. кв
109.7
60.8
12.4 м2
10 этаж из 11
1 219 473 р.
Цена за м2: 8 921 р.
Центральный район, ул. Нововиленская
4-комн. кв
136.7
71.45
м2
1 этаж из 4
740 426 р.
Цена за м2: 9 768 р.
Центральный район, Старовиленский тр-т
Немига
24 мин
13 мин
2-комн. кв
75.8
37.2
15.6 м2
3 этаж из 8
594 720 р.
Цена за м2: 4 091 р.
Центральный район, Долгиновский тр-т
4-комн. кв
138.1
96.9
12.5 м2
6 этаж из 8
579 852 р.
Цена за м2: 9 098 р.
Центральный район, ул. Нововиленская
3-комн. кв
62.1
42.1
м2
9 этаж из 9