Подать БЕСПЛАТНО

Продажа 4-комнатной квартиры в Минске, ул. Парниковая, д. 32

г. Минск, ул. Парниковая, 32
Показать на карте
Партизанский район
Восток
24 мин
13 мин
868 710 р.
Цена за м2: 5 563 р.
Код объекта: 695526
4 комнаты
190.5 м2
3 этаж из 4
Обновлено: 20.08.2020
868 710 р.
Цена за м2: 5 563 р.
Предложить свою цену

О квартире

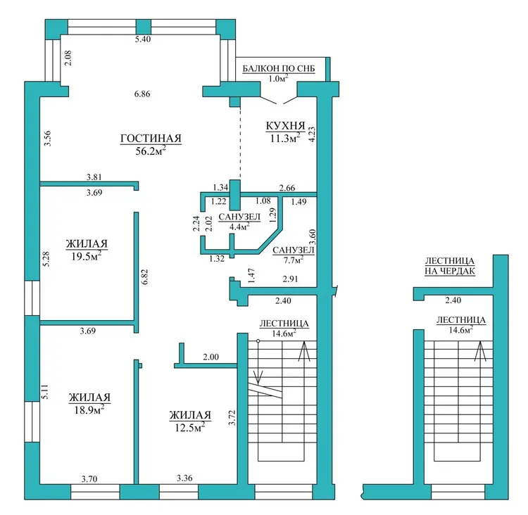
Площадь
190.5 м2
общая
129.2 м2
жилая
11.8 м2
кухня
Отдельных комнат
4 комнаты
Санузел
2 сан.узла
Балкон
Тип ремонта
С отделкой

О доме

Этаж
3 из 4
Материал стен
Каркасно-блочный
Год постройки
2000

Описание

Современная, стильная двухуровневая квартира в доме клубного типа с огороженной территорией.В квартире сделан дизайнерский ремонт. Квартира полностью меблирована и оснащена всей необходимой техникой.Установлена индивидуальная система отопления. Камин.Высота потолков на первом этаже 3 метра, на втором 2,67 что добавляет еще больше пространства и легкости.Встроенная кухня оборудована всей необходимой импортной бытовой техникой.Три просторных санузла. Один из них с окнами - это добавляет особую изюминку и дает дополнительное естественное освещение.По всей квартире проведено оптоволокно.Рядом с домом находится парк, сосновый лесной массив, Слепянская водная система, Национальная библиотека, ТЦ Дана Молл, метро. В подземном паркинге квартире принадлежит машиноместо. Квартира идеально подойдет для тех, кто хочет отдохнуть от городской суеты и насладиться тишиной.Прямая продажа. Поможем выгодно продать вашу квартиру для покупки этой.Консультация по кредиту.Расширенные консультации по покупке, продаже и обмену вашей недвижимости можно получить в офисе Центральном , расположенном в Бизнес-центре Kiroff по адресу Минск, улица Кирова, 8.Записывайтесь на просмотр и всё увидите сами !Смотреть подробнее Торг. Предложите свою цену. Доступен видеообзор квартиры. ТОП-20 ДЕШЕВЫХ КВАРТИРБАЗА ПОКУПАТЕЛЕЙ – узнайте, кто готов купить вашу квартиру прямо сейчас!КАЛЬКУЛЯТОР СТОИМОСТИ ЖИЛЬЯ – онлайн- расчет стоимости вашей квартиры!ПЕРЕЕЗЖАЕМ В НОВОСТРОЙКУ-  программа  обмена старого жилья на новое. 2 сделки в 1 день!ПАРТНЕР-КРЕДИТ  сопровождение кредитования для покупки и обмена «под ключ»ВАШ ВАРИАНТ- проверка квартир перед покупкой и оформление сделки, если вы нашли объект самостоятельно. ООО "Твоя столица", УНП 101136973, лицензия №02240/15 от 17.02.05г.
Агент
10 лет на сайте
Показать почту
Пожаловаться на объявление
Агентство недвижимости
ТВОЯ СТОЛИЦА АГЕНТСТВО НЕДВИЖИМОСТИ

Местоположение

г. Минск, ул. Парниковая, 32
Партизанский район
Опубликовано: 20.08.2020

Возможно, вам будет интересно

Похожие объекты

На этой улицеВ этом районе
341 693 р.
Цена за м2: 5 875 р.
Первомайский район, ул. Парниковая
Московская
8 мин
5 мин
3-комн. кв
69
43.6
9 м2
3 этаж из 9
807 900 р.
Цена за м2: 6 153 р.
Партизанский район, ул. Парниковая
Московская
18 мин
10 мин
4-комн. кв
131.3
103.4
11.3 м2
2 этаж из 3
868 710 р.
Цена за м2: 6 616 р.
Партизанский район, ул. Парниковая
Московская
18 мин
10 мин
3-комн. кв
131.3
103.4
11.3 м2
2 этаж из 3
651 533 р.
Цена за м2: 6 370 р.
Первомайский район, ул. Петра Мстиславца
Восток
5 мин
4-комн. кв
135.9
100
20 м2
3 этаж из 25
728 228 р.
Цена за м2: 5 062 р.
Первомайский район, ул. Петра Мстиславца
Восток
5 мин
4-комн. кв
122.9
100
20 м2
3 этаж из 20
2 055 947 р.
Цена за м2: 16 448 р.
Первомайский район, ул. Петра Мстиславца
Восток
7 мин
4 мин
3-комн. кв
125.7
116.1
м2
10 этаж из 10